お客様の声(工事例)

ご利用頂いたお客様の口コミ・レビューを「お客様の声」として掲載しております。
全てのご感想を掲載しておりますので、エクスショップの評判としてご参考ください。
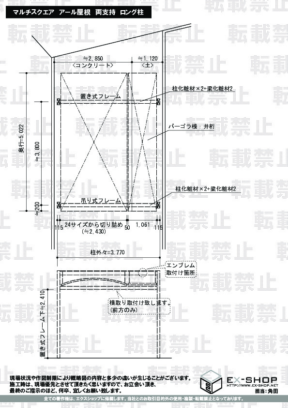
正式お見積りと一緒に提出させて頂いております「工事概略図面」もご覧頂けます。
商品や設置場所のご検討にお役立てください。

毎日更新 安心と信頼の工事実績
声の掲載数
181,285
商品工事数
225,552
(2026年02月23日現在)

神奈川県横浜市都筑区 のLIXIL リクシル(トステム)カーポート施工例(マルチスクエア アール屋根 両支持 ロング柱+(吊り式)柱化粧材(吊り式)×2+梁化粧カバー(吊り式)×2(色:イタリアンウォールナット)+マルチスクエアEエンブレム スパニッシュA+(置き式)柱化粧材(置き式)×2+梁化粧カバー(置き式)×2(色:イタリアンウォールナット))

お客様の感想 評価: 5つ星のうち

細かい注文に対しても丁寧に対応してもらいありがとうございます。現場作業も丁寧でした。

エクスショップ担当者より

こだわりのカーポートがお客様のご希望に沿う形で完成致しましたこと、スタッフ一同、大変嬉しく思っております。施工士ならびに弊社スタッフへのお褒めのお言葉、誠に有難うございます。今後も絶えず企業努力を続け、更にお客様にご満足いただけるサービスを目指すよう、努めてまいります。この度のご利用、誠に有難うございました。また機会がございましたら、ぜひエクスショップをご利用頂けますよう、宜しくお願い致します。

この工事例についてのお問い合わせ

下のフォームの全項目にご入力の上、確認画面へ進んでください。
(※お客様にご入力いただいた情報は、SSLにて暗号化され、安全に送信されます。)

お名前
(ふりがな)
せい めい
ご住所 都道府県:
メールアドレス

メールアドレスを持っていない([email protected]が自動入力されます)

お電話番号
お問い合わせ内容

上の「お問い合わせフォーム」に必要事項を全て入力されましたら、
次の入力内容の確認ページへと進んでください。

確認画面へ進む

第三者への転売等を目的とする建設関連業者様からの施工のご依頼は、申し訳ありませんがお断りしております(※商品のみのご購入には対応しております)。

エクスショップが選ばれる7つの理由

高価な買い物だから、工事が必要な商品だから、ネットを介した購入だから、工事実績豊富で価格面も安心!のエクスショップが選ばれています。

25年連続NO.1エクステリアネット販売実績2000〜2024

  • 極限価格 割引率最大69%+α OFF!!
  • 現場調査&お見積り工事開始まですべて無料! 仕様変更による再見積りももちろん無料!
  • 全国対応 地域密着 1,613店 お近くの当社提携施工店が工事対応します!
  • メーカー取り扱い商品点数 豊富な10,000商品
  • 掲載中の施工実績&お客様の声 180,000件の実績!!
  • 商品&施工、安心のダブル保証! 商品2年施工10年
  • お客様情報をあらゆる面から守ります 安心セキュリティ

ページトップへ