お客様の声(工事例)

ご利用頂いたお客様の口コミ・レビューを「お客様の声」として掲載しております。
全てのご感想を掲載しておりますので、エクスショップの評判としてご参考ください。
正式お見積りと一緒に提出させて頂いております「工事概略図面」もご覧頂けます。
商品や設置場所のご検討にお役立てください。

毎日更新 安心と信頼の工事実績
声の掲載数
178,172
商品工事数
221,522
(2025年11月27日現在)

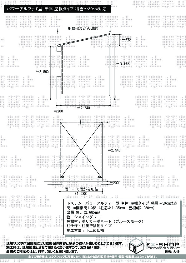
大阪府豊中市おおさかふ とよなかし のLIXIL リクシル(トステム)バルコニー・ベランダ屋根施工例(パワーアルファ F型 単体 屋根タイプ 積雪〜30cm対応)

大阪府豊中市のLIXIL リクシル(トステム)のバルコニー・ベランダ屋根 パワーアルファ F型 単体 屋根タイプ 積雪〜30cm対応 施工例

(写真No:5035051)

パワーアルファ F型 単体 屋根タイプ 積雪〜30cm対応

カラー シャイングレー
サイズ 屋根幅 2,320mm 出幅 2,685mm
柱仕様 柱奥行移動タイプ
屋根材 熱線吸収アクアポリカーボネート(ライトブルー)
工事方法 地域密着あんしん施工

お客様の感想 評価: 5つ星のうち

都合により、2回施工を中断し、その際の謝罪連絡は勿論丁寧でありましたが、中断になった2回目の施工士さん訪問日は、あくまで施工士さんとの予定であり、決定日の連絡がなかったこと。施工後の振り込み確認の連絡をくれた方の対応は、施工後の写真はメールでも可、アンケートもFAX可の説明も後からで、とても不愉快でした。郵送の場合は、切手不要の封筒を同封してあることが多い為、無いことにも驚きました。商品に対する不満はなく、満足しています。

エクスショップ担当者より

この度は、パワーアルファ F型の施工をご依頼頂きまして、誠に有り難うございます。部材不足などのため、施工を中断することになり、お客様にご迷惑をおかけ致しましたこと、誠に申し訳なく存じております。また、ご訪問日の連絡や、アンケート回答方法のご説明が至らず、ご不快な思いをされましたこと、重ねてお詫び申し上げます。お寄せ頂きましたご意見を真摯に受け止め、社員一丸となって、安心してご利用頂けるエクスショプを目指し努力して参りたいと存じます。この度は、誠に申し訳ございませんでした。

この工事例についてのお問い合わせ

下のフォームの全項目にご入力の上、確認画面へ進んでください。
(※お客様にご入力いただいた情報は、セコムSSLにて暗号化され、安全に送信されます。)

お名前
(ふりがな)
せい めい
ご住所 都道府県:
メールアドレス

メールアドレスを持っていない(info@ex-shop.netが自動入力されます)

お電話番号
お問い合わせ内容

上の「お問い合わせフォーム」に必要事項を全て入力されましたら、
次の入力内容の確認ページへと進んでください。

確認画面へ進む

第三者への転売等を目的とする建設関連業者様からの施工のご依頼は、申し訳ありませんがお断りしております(※商品のみのご購入には対応しております)。

エクスショップが選ばれる7つの理由

高価な買い物だから、工事が必要な商品だから、ネットを介した購入だから、工事実績豊富で価格面も安心!のエクスショップが選ばれています。

25年連続NO.1エクステリアネット販売実績2000〜2024

  • 極限価格 割引率最大69%+α OFF!!
  • 現場調査&お見積り工事開始まですべて無料! 仕様変更による再見積りももちろん無料!
  • 全国対応 地域密着 1,613店 お近くの当社提携施工店が工事対応します!
  • メーカー取り扱い商品点数 豊富な10,000商品
  • 掲載中の施工実績&お客様の声 170,000件の実績!!
  • 商品&施工、安心のダブル保証! 商品2年施工10年
  • お客様情報をあらゆる面から守ります 安心セキュリティ

ページトップへ