お客様の声(工事例)

ご利用頂いたお客様の口コミ・レビューを「お客様の声」として掲載しております。
全てのご感想を掲載しておりますので、エクスショップの評判としてご参考ください。
正式お見積りと一緒に提出させて頂いております「工事概略図面」もご覧頂けます。
商品や設置場所のご検討にお役立てください。

毎日更新 安心と信頼の工事実績
声の掲載数
178,233
商品工事数
221,593
(2025年12月19日現在)

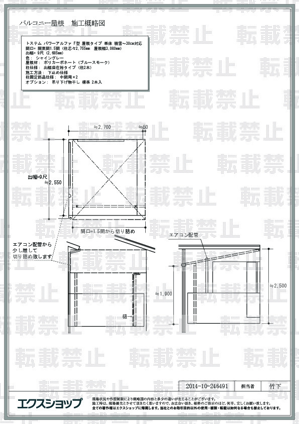
京都府京都市きょうとふ きょうとし のLIXIL リクシル(トステム)バルコニー・ベランダ屋根施工例(パワーアルファ F型 屋根タイプ 単体 積雪〜30cm対応)

京都府京都市のLIXIL リクシル(トステム)のバルコニー・ベランダ屋根 パワーアルファ F型 屋根タイプ 単体 積雪〜30cm対応 施工例

(写真No:24649121)

パワーアルファ F型 屋根タイプ 単体 積雪〜30cm対応

カラー シャイングレー
サイズ 屋根幅 3,080mm 出幅 2,685mm
柱仕様 出幅自在桁タイプ(柱2本)
屋根材 ポリカーボネート(ブルースモーク)
工事方法 メーカー責任施工

お客様の感想 評価: 5つ星のうち5 5

価格が安かったので、いろんな面で心配でしたが、見積もりにこられた方も、担当の方も、施工に来られた方も皆さん気さくでこちらの要望に答えて下さってストレスなく終われました。ありがとうございました。

エクスショップ担当者より

弊社はネット販売の利点を活かし、お求めやすい価格で、ご要望に沿った施工を目指しておりますので、このようなお言葉を頂き、大変光栄に存じます。出幅自在桁タイプのパワーアルファ F型 屋根タイプは、バルコニーの出幅より広い屋根が雨や強い紫外線を遮り、快適にご使用頂けるものと存じます。視界を遮らないフラットタイプでございますので、圧迫感もなく快適にお過ごし頂けるものと存じます。これからもお客様の笑顔の為に、エクスショップは日々精進して参ります。また機会がございましたら、是非弊社にご用命ください。この度はご利用、誠に有り難うございました。

この工事例についてのお問い合わせ

下のフォームの全項目にご入力の上、確認画面へ進んでください。
(※お客様にご入力いただいた情報は、セコムSSLにて暗号化され、安全に送信されます。)

お名前
(ふりがな)
せい めい
ご住所 都道府県:
メールアドレス

メールアドレスを持っていない(info@ex-shop.netが自動入力されます)

お電話番号
お問い合わせ内容

上の「お問い合わせフォーム」に必要事項を全て入力されましたら、
次の入力内容の確認ページへと進んでください。

確認画面へ進む

第三者への転売等を目的とする建設関連業者様からの施工のご依頼は、申し訳ありませんがお断りしております(※商品のみのご購入には対応しております)。

エクスショップが選ばれる7つの理由

高価な買い物だから、工事が必要な商品だから、ネットを介した購入だから、工事実績豊富で価格面も安心!のエクスショップが選ばれています。

25年連続NO.1エクステリアネット販売実績2000〜2024

  • 極限価格 割引率最大69%+α OFF!!
  • 現場調査&お見積り工事開始まですべて無料! 仕様変更による再見積りももちろん無料!
  • 全国対応 地域密着 1,613店 お近くの当社提携施工店が工事対応します!
  • メーカー取り扱い商品点数 豊富な10,000商品
  • 掲載中の施工実績&お客様の声 170,000件の実績!!
  • 商品&施工、安心のダブル保証! 商品2年施工10年
  • お客様情報をあらゆる面から守ります 安心セキュリティ

ページトップへ