お客様の声(工事例)

ご利用頂いたお客様の口コミ・レビューを「お客様の声」として掲載しております。
全てのご感想を掲載しておりますので、エクスショップの評判としてご参考ください。
正式お見積りと一緒に提出させて頂いております「工事概略図面」もご覧頂けます。
商品や設置場所のご検討にお役立てください。

毎日更新 安心と信頼の工事実績
声の掲載数
178,233
商品工事数
221,593
(2025年12月31日現在)

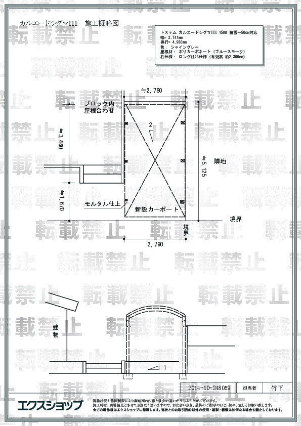
宮城県仙台市みやぎけん せんだいし のLIXIL リクシル(トステム)カーポート施工例(カルエードシグマIII 1500 積雪〜50cm対応)

宮城県仙台市のLIXIL リクシル(トステム)のカーポート カルエードシグマIII 1500 積雪〜50cm対応 施工例

(写真No:24805921)

カルエードシグマIII 1500 積雪〜50cm対応

カラー シャイングレー
サイズ 幅 2,741mm 奥行 4,980mm
屋根高等 ロング柱23仕様(有効高 約2,300mm)
屋根材等 ポリカーボネート(ブルースモーク)
工事方法 メーカー責任施工

お客様の感想 評価: 5つ星のうち3 3

ホームセンターで現物確認後見積もり確認が的確に説明を頂けた。

エクスショップ担当者より

この度はカルエードシグマIII 1500の施工をご依頼頂き、誠に有り難うございました。4本の柱がポリカーボネート(ブルースモーク)の屋根を支えるカーポートは、寒さ厳しい冬もしっかりと耐え抜く安心感のあるお仕上がりでございますね。春は花粉、夏は強い日差しからもお車をお守り致しますので、季節を問わず快適にご使用頂けるものと存じます。これからも全てのお客様に安心してご利用頂けるショップを目指し精進して参りますので、次回エクステリアをご検討の際も弊社にご用命頂けますと幸いでございます。またのご利用を心よりお待ち申し上げております。

この工事例についてのお問い合わせ

下のフォームの全項目にご入力の上、確認画面へ進んでください。
(※お客様にご入力いただいた情報は、セコムSSLにて暗号化され、安全に送信されます。)

お名前
(ふりがな)
せい めい
ご住所 都道府県:
メールアドレス

メールアドレスを持っていない(info@ex-shop.netが自動入力されます)

お電話番号
お問い合わせ内容

上の「お問い合わせフォーム」に必要事項を全て入力されましたら、
次の入力内容の確認ページへと進んでください。

確認画面へ進む

第三者への転売等を目的とする建設関連業者様からの施工のご依頼は、申し訳ありませんがお断りしております(※商品のみのご購入には対応しております)。

エクスショップが選ばれる7つの理由

高価な買い物だから、工事が必要な商品だから、ネットを介した購入だから、工事実績豊富で価格面も安心!のエクスショップが選ばれています。

25年連続NO.1エクステリアネット販売実績2000〜2024

  • 極限価格 割引率最大69%+α OFF!!
  • 現場調査&お見積り工事開始まですべて無料! 仕様変更による再見積りももちろん無料!
  • 全国対応 地域密着 1,613店 お近くの当社提携施工店が工事対応します!
  • メーカー取り扱い商品点数 豊富な10,000商品
  • 掲載中の施工実績&お客様の声 170,000件の実績!!
  • 商品&施工、安心のダブル保証! 商品2年施工10年
  • お客様情報をあらゆる面から守ります 安心セキュリティ

ページトップへ