バイク・自転車を雨風から保護
お家の収納能力をアップ
ガレージの保全・防犯にカーポートと合わせて
お庭に機能的スペースを作り出します
防犯、お家のドレスアップはこれで決まり
ガレージ商品とコンビで高級感を演出
各取扱メーカーの会社名、ロゴ及び商品名等は各社の商標または登録商標です。
日 | 月 | 火 | 水 | 木 | 金 | 土 |
---|---|---|---|---|---|---|
1 | 2 | 3 | 4 | |||
5 | 6 | 7 | 8 | 9 | 10 | 11 |
12 | 13 | 14 | 15 | 16 | 17 | 18 |
19 | 20 | 21 | 22 | 23 | 24 | 25 |
26 | 27 | 28 | 29 | 30 | 31 |
日 | 月 | 火 | 水 | 木 | 金 | 土 |
---|---|---|---|---|---|---|
1 | ||||||
2 | 3 | 4 | 5 | 6 | 7 | 8 |
9 | 10 | 11 | 12 | 13 | 14 | 15 |
16 | 17 | 18 | 19 | 20 | 21 | 22 |
23 | 24 | 25 | 26 | 27 | 28 | 29 |
30 |
…休業日(現場調査・工事は一部対応)
【受付時間】9:30 - 17:30(営業日)
【受付時間】9:30 - 17:30(営業日)
オペレーションスタッフ
エクステリアプランナー有資格者の私たちにお任せください。
ショップ責任者
神(じん)
エクステリア プランナー
有資格者61名
1/3
木附
枡田
重富
吉澤
吉野
小東
池本
山田
佐藤
白崎
新西
伊野
次田
浅川
南
西山
小林
梨田
長谷川
藤田
阿重田
村上
植松
内田
久田
小野
平戸
中島
長石
水口
榮
山崎
清水
室谷
安田
水谷
酒井
神吉
日下部
山中
深田
田中
板持
西田
一氏
水田
岡本
坂本
中嶋
岩野
伊藤
上中
高山
竹本
犬井
佐伯
谷川
原
丸山
北
塚田
松本
島田
森
梅田
松山
山本
小林
倉地
山根
中原
河野
村上
土井
岩破
南
井上
三ツ股
小田
依藤
永禮
林
加藤
石藤
駒井
末吉
山本
芦野
樽井
野上
岡田
木村
池田
西村
藤澤
達川
奥原
那須
上内
森下
小西
1/3
今週のPick Upページ
ご利用頂いたお客様の口コミ・レビューを「お客様の声」として掲載しております。
全てのご感想を掲載しておりますので、エクスショップの評判としてご参考ください。
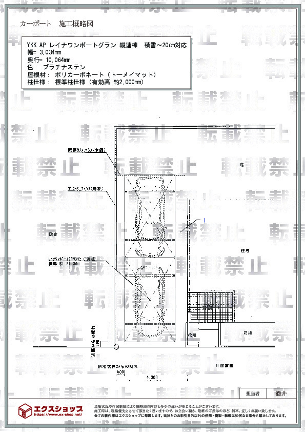
正式お見積りと一緒に提出させて頂いております「工事概略図面」もご覧頂けます。
商品や設置場所のご検討にお役立てください。
(写真No:22954926)
(カーポート)
カラー | プラチナステン |
---|---|
サイズ | 幅 3,034mm 奥行 10,064mm |
屋根高等 | 標準柱仕様(有効高 約2,000mm) |
屋根材等 | ポリカーボネート(トーメイマット) |
工事方法 | 地域密着あんしん施工 |
対応も良く安心して取引が出来ました。有難うございました。
この度は、レイナワンポートグラン 縦連棟の施工ご依頼を頂き誠に有り難うございます。顔の見えないネット販売ではございますが、お客様にご満足頂ける様、日々精進しておりますので、この様なお言葉を頂戴でき大変嬉しく存じます。両側支柱のしっかりとした安定感と、清々しい爽やかな印象が素敵でございますね。快適にご利用頂ければ幸いでございます。今後も日々精進して参りますので、又機会がございましたら是非エクスショップをご利用下さいますよう、宜しくお願い致します。
当サイトは以下のセキュリティ機能や保護認定等を備えています。安心してお申し込みください
当サイトは256ビットSSL暗号化に対応しています。入力した個人情報は暗号化して送られますので、安心してご利用ください。
当社はJADMAの正会員です。同協会は法律で位置づけられた団体で、消費者の利益保護と業界の健全な発展の為に活動しています。
こちらの工事に使用しているエクステリア
アリュース 600タイプ 4本柱 縦連棟セット(2台用)
工事費・税込
406,000円〜
総合平均評価(星5つ評価)
5
商品レビュー数
1件
アリュース 600タイプ 4本柱 縦連棟セット(2台用)は車2台の縦列駐車が可能な両側支持スタイルのカーポートです。屋根を左右計8本の柱で支えた丈夫な仕様で、基準風速Vo=34m/s・耐積雪性能20cmを確保しています。サイドパネルや物干しといったオプションもご用意。
この商品の詳細へ
無料お見積り・現場調査・ご注文もこちら
関連するお客様の声
5つ星のうち5
福岡県M.Y. 様回答日:2024年2月
15年前、新築の時に現地調査をお願いしておりましたが、外構計画の変更のため、お願いできませんでした。この度、子供が成人し、車も増えたので駐車場を広げたため、あらためてお願いしたところです。屋根の高さ、長さとも納得しております。また、工事も一日半と非常に早くて驚きました。
5つ星のうち5
岐阜県N.H. 様回答日:2024年2月
降雹被害による既存カーポート(30年経過)の屋根材損傷がきっかけです。設置前の高さが2mでしたが、今回2.35mにしたのは正解でした。降雹被害は自宅の雨樋・屋根にも及んだため、その施工後(約半年)まで待っていただきました。ありがとうございました。
5つ星のうち4
福岡県T.N. 様回答日:2023年7月
(きっかけ)自宅を建替えし、新たにカーポートと境界フェンスが必要になったため(感想など)エクスショップは価格はリーズナブルで、施工もしっかりしていると思います。ただ、今回は私の現場の特性などもあり、施工士とショップ担当とのやり取りで正確性に欠ける面が少しあった。
5つ星のうち5
愛知県Y.N. 様回答日:2023年1月
他社との相見積もりなどで価格が安かったので決めさせていただきました。価格が安いので少し不安なところもありましたが保証がついていたので安心して依頼させていただきました。実際の施工では細かい要望も聞いていただき安心してお任せできましたので、次回も是非とも利用したいと思います。また知り合いなどにも自信をもっておすすめしたいと思います。
5つ星のうち5
茨城県K.H. 様回答日:2023年1月
雨や紫外線から車を守る為にカーポートを検討しておりました。現在冬ですが、朝のフロントガラスが凍ることもなく、快適に通勤出来るようになりました。エクスショップさんは価格が安く魅力的でした、実際に現地にて施工していただいた方達も感じも良く、黙々と作業をしていただき、かなり好印象でした。
5つ星のうち5
愛知県A.M. 様回答日:2025年9月
ずっとカーポートが付けたかったけど、どうしてもいるものではなかったので後回しになっていた。年々猛暑が続いていた事がきっかけです。暑い日に乗った最初の車内の温度が低く感じられて、つけて良かったと思った。小雨の時の車の汚れが防げるといいなと思っています。
5つ星のうち5
長野県N.Y. 様回答日:2025年4月
友人の話を聞いて購入を考えました。初めてのマイホームということもあり、また積雪も多い地域であったことから、カーポートをつけたいと考えていました。今回購入したことで車に積もった雪を降ろすことなく快適に乗車できそうなので大変助かります。購入してよかったです。ありがとうございました。
5つ星のうち5
宮城県S.I. 様回答日:2025年4月
商品をご購入頂いたきっかけ⇒新たな車を購入したので3基目のカーポートを作りたかったから。設置前(工事前)と比較して便利・快適になった点⇒ 雨に濡れないで車に乗り降りできるようになったこと、急な降雨等の場合の洗濯もの干し場に便利。エクスショップご利用のご感想⇒ご対応が早く 誠実 特に施工者の方の対応が素晴らしかった。
関連するブログ記事
関連するよくあるご質問
カーポートの設置と一緒に土間コンクリートを打設できますか?
【商品カテゴリ >カーポート】(ご質問No.707)
既存のカーポート屋根材の張り替えの依頼はできますか?
【商品カテゴリ >カーポート】(ご質問No.21)
以前購入したカーポートの部品のみを追加で購入する事は可能ですか?
【商品カテゴリ >カーポート】(ご質問No.48)
ワイドタイプのカーポートですが、横幅の切り詰めは可能ですか?
【商品カテゴリ >カーポート】(ご質問No.69)
カーポートって何ですか?
【商品カテゴリ >カーポート】(ご質問No.28910)
既存のカーポートの柱の高さを桁上げする事は可能ですか?
【商品カテゴリ >カーポート】(ご質問No.43)
既存のカーポートをいったん解体し、再度組み立てることは可能ですか?
【商品カテゴリ >カーポート】(ご質問No.46)
四国化成のFリードカーポート収納庫付きタイプは取り扱ってますか?
【商品カテゴリ >カーポート】(ご質問No.74)
既存カーポートの支柱を流用して、増設、縦列2台用のカーポートを設置することは可能ですか?
【商品カテゴリ >カーポート】(ご質問No.84)
四国化成のマイポートneoの取り扱いはありますか?
【商品カテゴリ >カーポート】(ご質問No.88)