お客様の声(工事例)

ご利用頂いたお客様の口コミ・レビューを「お客様の声」として掲載しております。
全てのご感想を掲載しておりますので、エクスショップの評判としてご参考ください。
正式お見積りと一緒に提出させて頂いております「工事概略図面」もご覧頂けます。
商品や設置場所のご検討にお役立てください。

毎日更新 安心と信頼の工事実績
声の掲載数
179,043
商品工事数
222,637
(2026年01月27日現在)

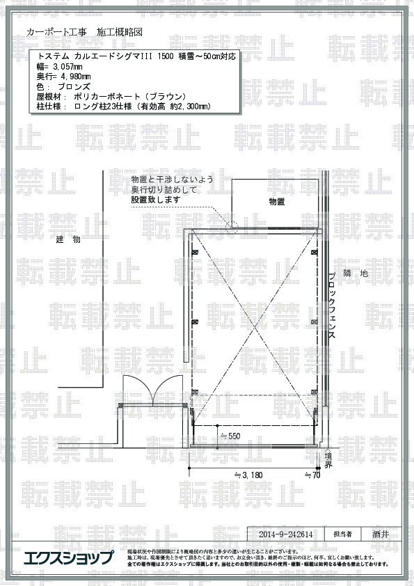
東京都八王子市とうきょうと はちおうじし のLIXIL リクシル(トステム)カーポート施工例(カルエードシグマIII 1500 落雪後枠 積雪〜50cm対応)

東京都八王子市のLIXIL リクシル(トステム)のカーポート カルエードシグマIII 1500 落雪後枠 積雪〜50cm対応 施工例

(写真No:24261429)

カルエードシグマIII 1500 落雪後枠 積雪〜50cm対応

カラー ブロンズ
サイズ 幅 3,057mm 奥行 4,980mm
屋根高等 ロング柱23仕様(有効高 約2,300mm)
屋根材等 ポリカーボネート(ブラウン)
工事方法 地域密着あんしん施工

お客様の感想 評価: 5つ星のうち5 5

メールのやり取りがスムースで、時間のロスがなくて助かりました。また、地元施工をお願いしましたが、丁寧に工事をしていただきました。二日で終わるのか少々不安でしたが、二日目は三人がかりで無事完了しました。ありがとうございました。

エクスショップ担当者より

インターネット販売店と致しましては、日々、メールやお電話にて、お客様にご満足頂ける対応を求め、試行錯誤を繰り返しておりますので、このような温かいお言葉は何よりの励みとなっております。ブロンズのカーポートがお住まいの外観と見事に調和しており、シックなお仕上がりでございますね。しっかりとした安定感で、大切なお車をお守りするパートナーとし、末永くご利用頂ければ幸いでございます。今後も変わらず、お客様のご満足の為に精進して参りたいと存じますので、また何かございましたら、お気軽にエクスショップまでご連絡ください。この度のご利用、誠に有り難うございました。

この工事例についてのお問い合わせ

下のフォームの全項目にご入力の上、確認画面へ進んでください。
(※お客様にご入力いただいた情報は、セコムSSLにて暗号化され、安全に送信されます。)

お名前
(ふりがな)
せい めい
ご住所 都道府県:
メールアドレス

メールアドレスを持っていない(info@ex-shop.netが自動入力されます)

お電話番号
お問い合わせ内容

上の「お問い合わせフォーム」に必要事項を全て入力されましたら、
次の入力内容の確認ページへと進んでください。

確認画面へ進む

第三者への転売等を目的とする建設関連業者様からの施工のご依頼は、申し訳ありませんがお断りしております(※商品のみのご購入には対応しております)。

エクスショップが選ばれる7つの理由

高価な買い物だから、工事が必要な商品だから、ネットを介した購入だから、工事実績豊富で価格面も安心!のエクスショップが選ばれています。

25年連続NO.1エクステリアネット販売実績2000〜2024

  • 極限価格 割引率最大69%+α OFF!!
  • 現場調査&お見積り工事開始まですべて無料! 仕様変更による再見積りももちろん無料!
  • 全国対応 地域密着 1,613店 お近くの当社提携施工店が工事対応します!
  • メーカー取り扱い商品点数 豊富な10,000商品
  • 掲載中の施工実績&お客様の声 170,000件の実績!!
  • 商品&施工、安心のダブル保証! 商品2年施工10年
  • お客様情報をあらゆる面から守ります 安心セキュリティ

ページトップへ