各取扱メーカーの会社名、ロゴ及び商品名等は各社の商標または登録商標です。
| 日 | 月 | 火 | 水 | 木 | 金 | 土 |
|---|---|---|---|---|---|---|
| 1 | ||||||
| 2 | 3 | 4 | 5 | 6 | 7 | 8 |
| 9 | 10 | 11 | 12 | 13 | 14 | 15 |
| 16 | 17 | 18 | 19 | 20 | 21 | 22 |
| 23 | 24 | 25 | 26 | 27 | 28 | 29 |
| 30 |
| 日 | 月 | 火 | 水 | 木 | 金 | 土 |
|---|---|---|---|---|---|---|
| 1 | 2 | 3 | 4 | 5 | 6 | |
| 7 | 8 | 9 | 10 | 11 | 12 | 13 |
| 14 | 15 | 16 | 17 | 18 | 19 | 20 |
| 21 | 22 | 23 | 24 | 25 | 26 | 27 |
| 28 | 29 | 30 | 31 |
…休業日(現場調査・工事は一部対応)
![]()
【受付時間】9:30 - 17:30(営業日)
![]()
【受付時間】9:30 - 17:30(営業日)
オペレーションスタッフ
エクステリアプランナー有資格者の私たちにお任せください。
ショップ責任者
神(じん)
エクステリア プランナー
有資格者61名
1/3
1/3
今週のPick Upページ
![]()
ご利用頂いたお客様の口コミ・レビューを「お客様の声」として掲載しております。
全てのご感想を掲載しておりますので、エクスショップの評判としてご参考ください。
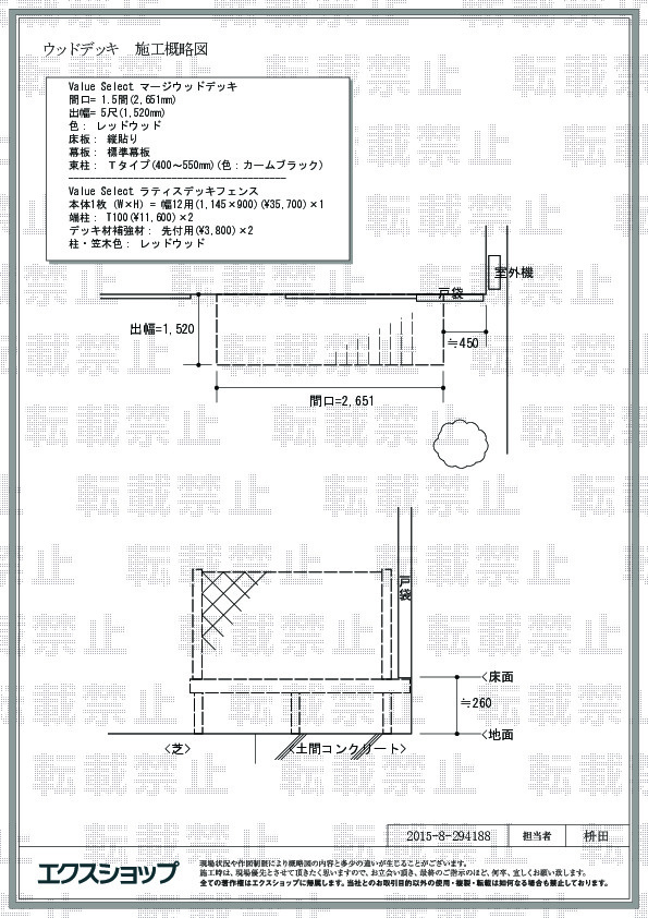
正式お見積りと一緒に提出させて頂いております「工事概略図面」もご覧頂けます。
商品や設置場所のご検討にお役立てください。
(写真No:29418828)
前回も家のフェンスを施工いただき満足しておりましたので、今回もお願いしました。今回ウッドデッキの施工をしていただき、家から庭への上り下りがスムーズに出来るようになり庭が有効活用できるようになり満足しています。
前回のフェンスの施工にご満足のお言葉をお寄せ頂きまして、誠に有り難うございます。ご満足頂け、繰り返しご利用してくださるお客さまの存在は、私どもにとりまして、何よりの励みになります。マージウッドデッキは、ウッドデッキの一流メーカーと弊社が共同で開発したオリジナル商品でございます。お手頃な価格ではございますが、機能性・耐久性に優れておりますので、ご家族の憩いの場として、永くご愛用頂けるものと存じます。今後益々精進して参りますので、また機会がございましたら、是非弊社をご用命頂きますよう、宜しくお願い致します。
当サイトは以下のセキュリティ機能や保護認定等を備えています。安心してお申し込みください
当サイトは256ビットSSL暗号化に対応しています。入力した個人情報は暗号化して送られますので、安心してご利用ください。
当社はJADMAの正会員です。同協会は法律で位置づけられた団体で、消費者の利益保護と業界の健全な発展の為に活動しています。
こちらの工事に使用しているエクステリア
![]()
マージウッドデッキ

工事費・税込
69,700円〜
商品レビュー数
1512件
マージウッドデッキは色あせ・変色の少ないエクスショップオリジナルブランドの人工木デッキです。オプションとして転落防止・目隠しに効果的なフェンス、お庭とウッドデッキをスムーズにつなぐステップが設置可能です。床板、束柱はそれぞれ2種類のカラーから選択いただけます。
この商品の詳細へ
無料お見積り・現場調査・ご注文もこちら