お客様の声(工事例)

ご利用頂いたお客様の口コミ・レビューを「お客様の声」として掲載しております。
全てのご感想を掲載しておりますので、エクスショップの評判としてご参考ください。
正式お見積りと一緒に提出させて頂いております「工事概略図面」もご覧頂けます。
商品や設置場所のご検討にお役立てください。

毎日更新 安心と信頼の工事実績
声の掲載数
180,564
商品工事数
224,618
(2026年02月10日現在)

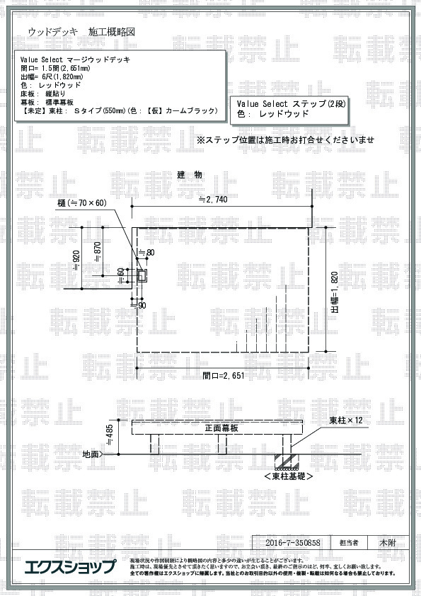
茨城県那珂郡 東海村いばらきけん なかぐん とうかいむら のValue Selectウッドデッキ施工例(マージウッドデッキ+ステップ(2段))

茨城県那珂郡東海村のValue Selectのウッドデッキ マージウッドデッキ+ステップ(2段) 施工例

(写真No:35085837)

マージウッドデッキ+ステップ(2段)

カラー レッドウッド
サイズ 間口 2,651mm 出幅 1,820mm
工事方法 地域密着あんしん施工

お客様の感想 評価: 5つ星のうち5 5

家が新築だったので、それに合わせて購入させて頂きました。家全体の見映えも良くなりました。ショップと施工会社共丁寧な対応で、満足です。

エクスショップ担当者より

マージウッドデッキの施工をご依頼頂き、『家全体の見映えも良くなりました』とのお言葉を頂きましたこと、大変嬉しく存じます。お部屋とお庭をつなぐウッドデッキが完成したことにより、お庭に出る機会も増えるのではないかと存じます。今後も、常に、お客様のご希望にかなった完成を目指し努力して参ります。また機会がございましたら、是非エクスショップにご用命頂きますよう、宜しくお願い致します。

この工事例についてのお問い合わせ

下のフォームの全項目にご入力の上、確認画面へ進んでください。
(※お客様にご入力いただいた情報は、SSLにて暗号化され、安全に送信されます。)

お名前
(ふりがな)
せい めい
ご住所 都道府県:
メールアドレス

メールアドレスを持っていない([email protected]が自動入力されます)

お電話番号
お問い合わせ内容

上の「お問い合わせフォーム」に必要事項を全て入力されましたら、
次の入力内容の確認ページへと進んでください。

確認画面へ進む

第三者への転売等を目的とする建設関連業者様からの施工のご依頼は、申し訳ありませんがお断りしております(※商品のみのご購入には対応しております)。

エクスショップが選ばれる7つの理由

高価な買い物だから、工事が必要な商品だから、ネットを介した購入だから、工事実績豊富で価格面も安心!のエクスショップが選ばれています。

25年連続NO.1エクステリアネット販売実績2000〜2024

  • 極限価格 割引率最大69%+α OFF!!
  • 現場調査&お見積り工事開始まですべて無料! 仕様変更による再見積りももちろん無料!
  • 全国対応 地域密着 1,613店 お近くの当社提携施工店が工事対応します!
  • メーカー取り扱い商品点数 豊富な10,000商品
  • 掲載中の施工実績&お客様の声 170,000件の実績!!
  • 商品&施工、安心のダブル保証! 商品2年施工10年
  • お客様情報をあらゆる面から守ります 安心セキュリティ

ページトップへ