各取扱メーカーの会社名、ロゴ及び商品名等は各社の商標または登録商標です。
| 日 | 月 | 火 | 水 | 木 | 金 | 土 |
|---|---|---|---|---|---|---|
| 1 | ||||||
| 2 | 3 | 4 | 5 | 6 | 7 | 8 |
| 9 | 10 | 11 | 12 | 13 | 14 | 15 |
| 16 | 17 | 18 | 19 | 20 | 21 | 22 |
| 23 | 24 | 25 | 26 | 27 | 28 | 29 |
| 30 |
| 日 | 月 | 火 | 水 | 木 | 金 | 土 |
|---|---|---|---|---|---|---|
| 1 | 2 | 3 | 4 | 5 | 6 | |
| 7 | 8 | 9 | 10 | 11 | 12 | 13 |
| 14 | 15 | 16 | 17 | 18 | 19 | 20 |
| 21 | 22 | 23 | 24 | 25 | 26 | 27 |
| 28 | 29 | 30 | 31 |
…休業日(現場調査・工事は一部対応)
![]()
【受付時間】9:30 - 17:30(営業日)
![]()
【受付時間】9:30 - 17:30(営業日)
オペレーションスタッフ
エクステリアプランナー有資格者の私たちにお任せください。
ショップ責任者
神(じん)
エクステリア プランナー
有資格者61名
1/3
1/3
今週のPick Upページ
![]()
ご利用頂いたお客様の口コミ・レビューを「お客様の声」として掲載しております。
全てのご感想を掲載しておりますので、エクスショップの評判としてご参考ください。
正式お見積りと一緒に提出させて頂いております「工事概略図面」もご覧頂けます。
商品や設置場所のご検討にお役立てください。
(写真No:5098251)
(写真No:5098251)
(写真No:5098251)
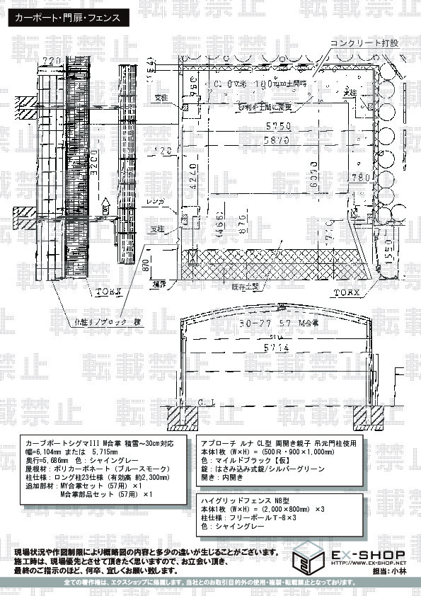
(フェンス・柵・塀、門扉、カーポート)
| カラー | シャイングレー |
|---|---|
| サイズ | 幅 6,104mm 奥行 5,686mm |
| 屋根高等 | ロング柱23仕様(有効高 約2,300mm) |
| 屋根材等 | 熱線吸収アクアポリカーボネート(ブルースモーク) |
| 工事方法 | 地域密着あんしん施工 |
価格的には他店より圧倒的に安いことは間違いないのですが、営業・現調・施工との連帯感がまったくないのとトータル的に現調査ミス・発注ミス・施工ミスとことごとくミスが続いた事にもがっかりでした。また営業側はメールの返信は早いのですが、土日祝が休業ということで連絡がつきにくいことはネット販売をする販売店としては時代にあっていない。施工者自身の人柄はよいのですが、外で使用するものとは言え引き渡すまでは、丁寧な取り扱いとクオリティの高い作業を望みます。
この度は、カーブポートシグマIIIM合掌、アプローチルナCL型、ハイグリッドフェンスN8型の三点同時施工をご依頼頂き、誠に有難うございます。弊社をご信頼してご用命くださったにも関らず、このようなお声を頂戴することとなり誠に申し訳なく存じております。休日対応につきましては、ご要望も頂いておりますので、前向きに検討していきたいと存じます。その他、もっと効率よくお客様にご不便をおかけすることがない方法を開発していく所存でございます。今後、メーカー担当とも協議を重ね、スムーズな連携を図り、お客様をご迷惑をおかけすることのない様、努めてまいります。貴重なご意見、誠にありがとうございました。また何かございましたら、どのような点でも結構ですので、エクスショップまでご連絡頂けますよう、宜しくお願い申し上げます。
当サイトは以下のセキュリティ機能や保護認定等を備えています。安心してお申し込みください
当サイトは256ビットSSL暗号化に対応しています。入力した個人情報は暗号化して送られますので、安心してご利用ください。
当社はJADMAの正会員です。同協会は法律で位置づけられた団体で、消費者の利益保護と業界の健全な発展の為に活動しています。
こちらの工事に使用しているエクステリア
![]()
ハイグリッドフェンスN8型

工事費・税込
50,100円〜
商品レビュー数
181件
強くて軽やかなスチールワイヤー製のフェンス、ハイグリッドシリーズ。T字接続やY字接続も可能ですので、敷地を仕切るのにとても便利です。スタンダードなスタイルに、色は豊富な5色をご用意。外観を損ねることなく、ご自由に設置していただけます。※柱はアルミ形材で算出しています。
この商品の詳細へ
無料お見積り・現場調査・ご注文もこちら
こちらの工事に使用しているエクステリア
![]()
アプローチ ルナ CL型 親子開き

工事費・税込
169,100円〜
商品レビュー数
5件
扉の間口方向と設置する角度が自由に設定できるので、あらゆる間口に合わせて門扉を取り付けが可能。こちらのCL型は伝統的な剣先のデザインで、欧風の住宅にマッチすること間違いなし!
この商品の詳細へ
無料お見積り・現場調査・ご注文もこちら
こちらの工事に使用しているエクステリア
![]()
ネスカ R 1台用 M合掌(ラウンドスタイル)

工事費・税込
289,600円〜
商品レビュー数
36件
ネスカ R 1台用 M合掌(ラウンドスタイル)はアールタイプの屋根が特徴的な並列駐車が出来る2台用カーポートです。6タイプの屋根材に5色の本体カラー仕様で展開しており、ご自宅に合うスタイルに。耐風性能は基準風速Vo=40m/s、耐積雪性能は20cm相当を確保。
この商品の詳細へ
無料お見積り・現場調査・ご注文もこちら