お客様の声(工事例)

ご利用頂いたお客様の口コミ・レビューを「お客様の声」として掲載しております。
全てのご感想を掲載しておりますので、エクスショップの評判としてご参考ください。
正式お見積りと一緒に提出させて頂いております「工事概略図面」もご覧頂けます。
商品や設置場所のご検討にお役立てください。

毎日更新 安心と信頼の工事実績
声の掲載数
178,233
商品工事数
221,593
(2025年12月24日現在)

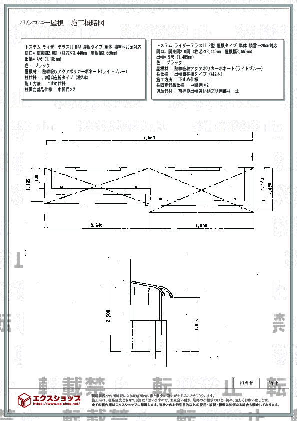
神奈川県横浜市かながわけん よこはまし のバルコニー・ベランダ屋根施工例(パワーアルファ RB型 屋根タイプ 単体 積雪〜20cm対応)

神奈川県横浜市ののバルコニー・ベランダ屋根 パワーアルファ RB型 屋根タイプ 単体 積雪〜20cm対応 施工例

(写真No:21042922)

パワーアルファ RB型 屋根タイプ 単体 積雪〜20cm対応

カラー ブラック
サイズ 屋根幅 3,840mm 出幅 1,485mm
柱仕様 柱奥行移動タイプ(柱2本)
屋根材 熱線吸収アクアポリカーボネート(ライトブルー)
工事方法 メーカー責任施工

神奈川県横浜市ののバルコニー・ベランダ屋根 パワーアルファ RB型 屋根タイプ 単体 積雪〜20cm対応 施工例

(写真No:21042922)

パワーアルファ RB型 屋根タイプ 単体 積雪〜20cm対応

カラー ブラック
サイズ 屋根幅 3,840mm 出幅 1,185mm
柱仕様 柱奥行移動タイプ(柱2本)
屋根材 熱線吸収アクアポリカーボネート(ライトブルー)
工事方法 メーカー責任施工

お客様の感想 評価: 5つ星のうち5 5

今回は施工日がなかなか決まらず(こちらの都合で一度変更したのが原因ですが)申し入れから実際に施工するまで三か月を要してしまいました。ご担当の方にはいろいろとご迷惑を掛けたとおもっています。メールのやり取りが中心ではありましたが確認の電話を何度も頂き無事に終わりホットしています。工事に来た方も熱心な職人気質の人で安心して任せることができ頼んで良かったと思いました。

エクスショップ担当者より

この度は、エクスショップをご利用くださいまして、誠に有り難うございます。今回施工までにお時間を頂戴し、お客様をお待たせしてしまい、誠に申し訳ございませんでした。にもかかわらず、このようなお言葉を頂きまして、申し訳ない思いとともに、大変嬉しく存じます。お客様にご満足して頂くことを第一に考えておりますので、このようなお言葉を頂きますことが、施工士はもとより、私どもにとりましても何よりの励みになります。今後も、お客様を意識し、親切・丁寧な対応を心掛け100%ご満足頂けるよう努めて参りますので、また機会がございましたら、ぜひエクスショップにご用命くださいますよう、宜しくお願い致します。

この工事例についてのお問い合わせ

下のフォームの全項目にご入力の上、確認画面へ進んでください。
(※お客様にご入力いただいた情報は、セコムSSLにて暗号化され、安全に送信されます。)

お名前
(ふりがな)
せい めい
ご住所 都道府県:
メールアドレス

メールアドレスを持っていない(info@ex-shop.netが自動入力されます)

お電話番号
お問い合わせ内容

上の「お問い合わせフォーム」に必要事項を全て入力されましたら、
次の入力内容の確認ページへと進んでください。

確認画面へ進む

第三者への転売等を目的とする建設関連業者様からの施工のご依頼は、申し訳ありませんがお断りしております(※商品のみのご購入には対応しております)。

エクスショップが選ばれる7つの理由

高価な買い物だから、工事が必要な商品だから、ネットを介した購入だから、工事実績豊富で価格面も安心!のエクスショップが選ばれています。

25年連続NO.1エクステリアネット販売実績2000〜2024

  • 極限価格 割引率最大69%+α OFF!!
  • 現場調査&お見積り工事開始まですべて無料! 仕様変更による再見積りももちろん無料!
  • 全国対応 地域密着 1,613店 お近くの当社提携施工店が工事対応します!
  • メーカー取り扱い商品点数 豊富な10,000商品
  • 掲載中の施工実績&お客様の声 170,000件の実績!!
  • 商品&施工、安心のダブル保証! 商品2年施工10年
  • お客様情報をあらゆる面から守ります 安心セキュリティ

ページトップへ