各取扱メーカーの会社名、ロゴ及び商品名等は各社の商標または登録商標です。
| 日 | 月 | 火 | 水 | 木 | 金 | 土 |
|---|---|---|---|---|---|---|
| 1 | 2 | 3 | 4 | 5 | 6 | |
| 7 | 8 | 9 | 10 | 11 | 12 | 13 |
| 14 | 15 | 16 | 17 | 18 | 19 | 20 |
| 21 | 22 | 23 | 24 | 25 | 26 | 27 |
| 28 | 29 | 30 | 31 |
| 日 | 月 | 火 | 水 | 木 | 金 | 土 |
|---|---|---|---|---|---|---|
| 1 | 2 | 3 | ||||
| 4 | 5 | 6 | 7 | 8 | 9 | 10 |
| 11 | 12 | 13 | 14 | 15 | 16 | 17 |
| 18 | 19 | 20 | 21 | 22 | 23 | 24 |
| 25 | 26 | 27 | 28 | 29 | 30 | 31 |
…休業日(現場調査・工事は一部対応)
![]()
【受付時間】9:30 - 17:30(営業日)
![]()
【受付時間】9:30 - 17:30(営業日)
オペレーションスタッフ
エクステリアプランナー有資格者の私たちにお任せください。
ショップ責任者
神(じん)
エクステリア プランナー
有資格者61名
1/3
1/3
今週のPick Upページ
![]()
ご利用頂いたお客様の口コミ・レビューを「お客様の声」として掲載しております。
全てのご感想を掲載しておりますので、エクスショップの評判としてご参考ください。
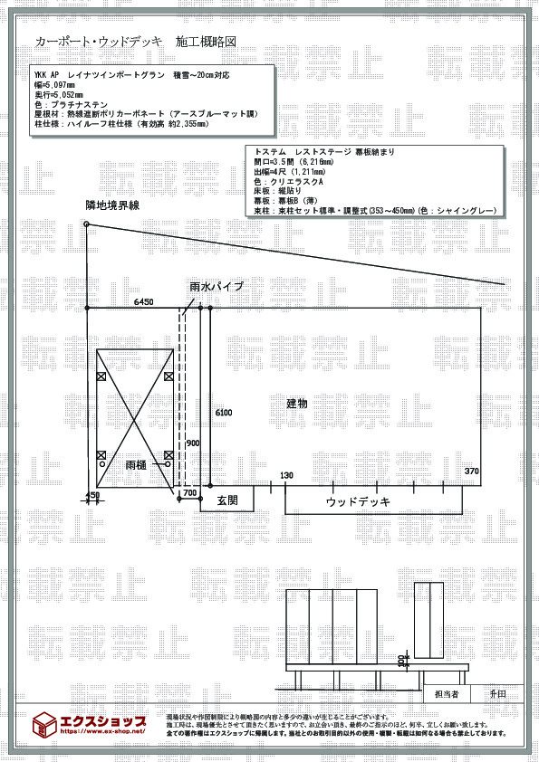
正式お見積りと一緒に提出させて頂いております「工事概略図面」もご覧頂けます。
商品や設置場所のご検討にお役立てください。
(写真No:21280723)
(写真No:21280723)
(ウッドデッキ、カーポート)
| カラー | プラチナステン |
|---|---|
| サイズ | 幅 5,097mm 奥行 5,052mm |
| 屋根高等 | ハイルーフ柱仕様(有効高 約2,355mm) |
| 屋根材等 | 熱線遮断ポリカーボネート(アースブルーマット調) |
| 工事方法 | 地域密着あんしん施工 |
会社の対応、施工業者様の対応等、とても感じが良く、気持ち良かったです。出来栄えも素晴らしいです。
この度はレイナツインポートグラン及びレストステージ 幕板納まりの施工をご依頼頂き、誠に有り難うございました。お客様にご満足して頂くことを第一に考えておりますので、このようなお言葉を頂きますことが、施工士はもとより、私どもにとりましても何よりの励みになります。アーチ状のお屋根がお車をしっかり包み込むカーポートが、雨や埃、紫外線だけでなく、太陽の熱も遮断致しますので、季節を問わず快適お過ごし頂けるものと存じます。横幅の広いウッドデッキも綺麗に納まり、ご家族皆様でおくつろぎ頂ける憩いの空間の完成でございますね。これからも、エクステリアの施工を通じて、豊かな暮らしのお手伝いが出来たらと考えております。また機会がございましたら、是非エクスショップにご用命頂きますよう宜しくお願い致します。
当サイトは以下のセキュリティ機能や保護認定等を備えています。安心してお申し込みください
当サイトは256ビットSSL暗号化に対応しています。入力した個人情報は暗号化して送られますので、安心してご利用ください。
当社はJADMAの正会員です。同協会は法律で位置づけられた団体で、消費者の利益保護と業界の健全な発展の為に活動しています。
こちらの工事に使用しているエクステリア
![]()
レストステージ 幕板納まり

工事費・税込
114,300円〜
商品レビュー数
125件
レストステージ 幕板納まりは小口部・側面部が幕板で囲まれた人工木デッキです。芯材部には100%リサイクル素材の木粉と樹脂が使用されており、湿気による腐食やシロアリによる食害に困りません。カラーは他のLIXIL製品との相性が良い3種類のクリエカラーをご用意。
この商品の詳細へ
無料お見積り・現場調査・ご注文もこちら
こちらの工事に使用しているエクステリア
![]()
アリュース 600タイプ 2台用

工事費・税込
215,900円〜
商品レビュー数
110件
アリュース 600タイプ 2台用は継ぎ目のない大きなアール屋根が特徴的な両側支持タイプの2台用カーポートです。柱・梁には水での急速冷却により高強度化(T6処理)したアルミニウム合金を用いており、基準風速Vo=40m/s・耐積雪性能20cmを確保しています。
この商品の詳細へ
無料お見積り・現場調査・ご注文もこちら