各取扱メーカーの会社名、ロゴ及び商品名等は各社の商標または登録商標です。
| 日 | 月 | 火 | 水 | 木 | 金 | 土 |
|---|---|---|---|---|---|---|
| 1 | 2 | 3 | 4 | 5 | 6 | |
| 7 | 8 | 9 | 10 | 11 | 12 | 13 |
| 14 | 15 | 16 | 17 | 18 | 19 | 20 |
| 21 | 22 | 23 | 24 | 25 | 26 | 27 |
| 28 | 29 | 30 | 31 |
| 日 | 月 | 火 | 水 | 木 | 金 | 土 |
|---|---|---|---|---|---|---|
| 1 | 2 | 3 | ||||
| 4 | 5 | 6 | 7 | 8 | 9 | 10 |
| 11 | 12 | 13 | 14 | 15 | 16 | 17 |
| 18 | 19 | 20 | 21 | 22 | 23 | 24 |
| 25 | 26 | 27 | 28 | 29 | 30 | 31 |
…休業日(現場調査・工事は一部対応)
![]()
【受付時間】9:30 - 17:30(営業日)
![]()
【受付時間】9:30 - 17:30(営業日)
オペレーションスタッフ
エクステリアプランナー有資格者の私たちにお任せください。
ショップ責任者
神(じん)
エクステリア プランナー
有資格者61名
1/3
1/3
今週のPick Upページ
![]()
ご利用頂いたお客様の口コミ・レビューを「お客様の声」として掲載しております。
全てのご感想を掲載しておりますので、エクスショップの評判としてご参考ください。
正式お見積りと一緒に提出させて頂いております「工事概略図面」もご覧頂けます。
商品や設置場所のご検討にお役立てください。
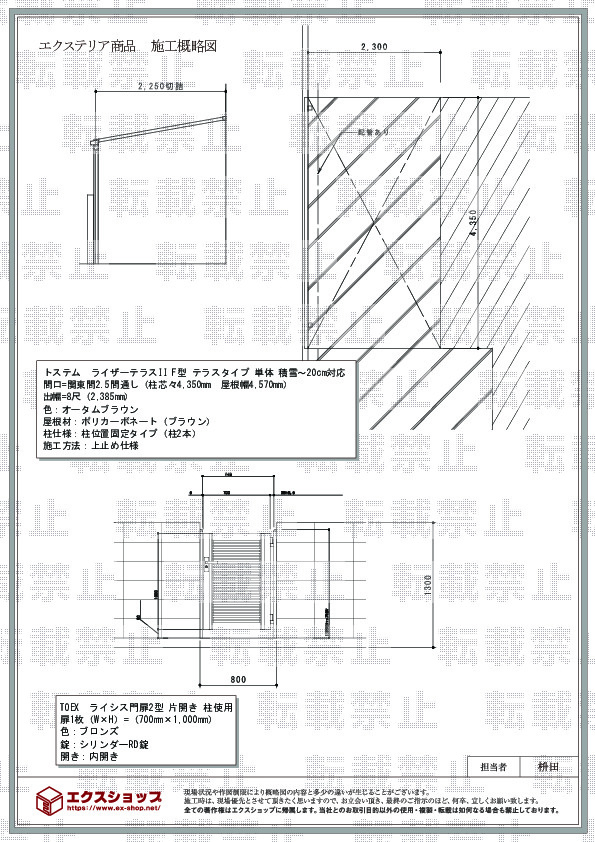
(写真No:21649523)
(門扉、テラス屋根)
| カラー | ブロンズ |
|---|---|
| サイズ | 幅 700mm 高さ 1,000mm |
| 工事方法 | 地域密着あんしん施工 |
(写真No:21649523)
(門扉、テラス屋根)
| カラー | オータムブラウン |
|---|---|
| サイズ | 屋根幅 4,570mm 出幅 2,385mm |
| 柱仕様 | 柱位置固定タイプ(柱2本) |
| 屋根材 | ポリカーボネート(ブラウン) |
| 工事方法 | 地域密着あんしん施工 |
時間がかかりましたが、満足のいく工事でした。また、機会がありましたら、よろしくお願いします。
この度は、テラス屋根と門扉の施工をご依頼頂きまして、誠に有り難うございます。お客様のお住まいを、より素敵にするお手伝いが出来ます事は、私どもにとりましても何よりの喜びでございます。お気に召して頂き、永くご愛用頂ければ幸いでございます。お顔の見えないネット販売ではございますが、今後も、お客様に最大限ご満足頂けるエクスショップを目指し努力して参ります。また機会がございましたら、是非エクスショップにご用命くださいますよう、宜しくお願い致します。
当サイトは以下のセキュリティ機能や保護認定等を備えています。安心してお申し込みください
当サイトは256ビットSSL暗号化に対応しています。入力した個人情報は暗号化して送られますので、安心してご利用ください。
当社はJADMAの正会員です。同協会は法律で位置づけられた団体で、消費者の利益保護と業界の健全な発展の為に活動しています。
こちらの工事に使用しているエクステリア
![]()
開き門扉AB TR1型 片開き 柱使用

工事費・税込
84,600円〜
商品レビュー数
11件
片開きは扉1枚のみで開閉するのが特徴です。スペースをとらないため、開口部が狭い勝手口や通用門などに設置することができます。また、比較的安価で設置可能であり、お財布にも優しいです。門扉ABTR1型は約15mmのスリットがある縦格子の門扉です。
この商品の詳細へ
無料お見積り・現場調査・ご注文もこちら
こちらの工事に使用しているエクステリア
![]()
スピーネ F型 テラスタイプ 単体

工事費・税込
86,100円〜
商品レビュー数
611件
LIXILの新テラス屋根スピーネ。見た目もスッキリ、モダンなシンプル住宅に最適。広い地域に対応ができる積雪〜20cmタイプです。定番の吊り下げの物干しから壁付けの物干しまで洗濯物干し場に最適なテラスです。
この商品の詳細へ
無料お見積り・現場調査・ご注文もこちら