各取扱メーカーの会社名、ロゴ及び商品名等は各社の商標または登録商標です。
| 日 | 月 | 火 | 水 | 木 | 金 | 土 |
|---|---|---|---|---|---|---|
| 1 | ||||||
| 2 | 3 | 4 | 5 | 6 | 7 | 8 |
| 9 | 10 | 11 | 12 | 13 | 14 | 15 |
| 16 | 17 | 18 | 19 | 20 | 21 | 22 |
| 23 | 24 | 25 | 26 | 27 | 28 | 29 |
| 30 |
| 日 | 月 | 火 | 水 | 木 | 金 | 土 |
|---|---|---|---|---|---|---|
| 1 | 2 | 3 | 4 | 5 | 6 | |
| 7 | 8 | 9 | 10 | 11 | 12 | 13 |
| 14 | 15 | 16 | 17 | 18 | 19 | 20 |
| 21 | 22 | 23 | 24 | 25 | 26 | 27 |
| 28 | 29 | 30 | 31 |
…休業日(現場調査・工事は一部対応)
![]()
【受付時間】9:30 - 17:30(営業日)
![]()
【受付時間】9:30 - 17:30(営業日)
オペレーションスタッフ
エクステリアプランナー有資格者の私たちにお任せください。
ショップ責任者
神(じん)
エクステリア プランナー
有資格者61名
1/3
1/3
今週のPick Upページ
![]()
ご利用頂いたお客様の口コミ・レビューを「お客様の声」として掲載しております。
全てのご感想を掲載しておりますので、エクスショップの評判としてご参考ください。
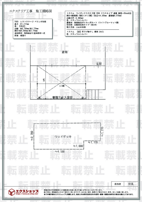
正式お見積りと一緒に提出させて頂いております「工事概略図面」もご覧頂けます。
商品や設置場所のご検討にお役立てください。
(写真No:22337724)
(写真No:22337724)
(ウッドデッキ、テラス屋根)
| カラー | ナチュラルシルバー |
|---|---|
| サイズ | 屋根幅 4,570mm 出幅 2,685mm |
| 柱仕様 | 出幅自在桁タイプ(柱3本) |
| 屋根材 | 熱線吸収ポリカーボネート(ライトブルーマット調) |
| 工事方法 | 地域密着あんしん施工 |
見積もりから工事まで、日数が空き過ぎたのは残念だった。エクスショップ担当者は、電話での対応は素早くて良かった。施工担当者は、とても感じが良く、イケメン過ぎる職人だった!丁寧に作業をしてくれたが、デッキを完全に固定してなかったために、再度固定し直すことになったのは残念だった。テラスとデッキ共に価格以上に満足している。
再度、エクスショップをご利用頂き誠に有り難うございます。せっかくご依頼頂いたにもかかわらず、お時間を頂戴しご迷惑をおかけ致しましたこと、誠に申し訳ございませんでした。また、ウッドデッキにつきましては、再度施工にお時間を頂戴致しましたこと、重ねてお詫び申し上げます。お仕上がりにつきましては、ご満足頂け施工士も担当スタッフも大変喜んでおります。今後、お客様にすべての面でご満足頂ける様、日々精進して参りますので、また機会がございましたら是非エクスショップをご利用下さいますよう、宜しくお願い致します。
当サイトは以下のセキュリティ機能や保護認定等を備えています。安心してお申し込みください
当サイトは256ビットSSL暗号化に対応しています。入力した個人情報は暗号化して送られますので、安心してご利用ください。
当社はJADMAの正会員です。同協会は法律で位置づけられた団体で、消費者の利益保護と業界の健全な発展の為に活動しています。
こちらの工事に使用しているエクステリア
![]()
レストステージ 幕板納まり

工事費・税込
114,300円〜
商品レビュー数
125件
レストステージ 幕板納まりは小口部・側面部が幕板で囲まれた人工木デッキです。芯材部には100%リサイクル素材の木粉と樹脂が使用されており、湿気による腐食やシロアリによる食害に困りません。カラーは他のLIXIL製品との相性が良い3種類のクリエカラーをご用意。
この商品の詳細へ
無料お見積り・現場調査・ご注文もこちら
こちらの工事に使用しているエクステリア
![]()
スピーネ R型 テラスタイプ 単体

工事費・税込
88,100円〜
商品レビュー数
332件
LIXILの新テラス屋根スピーネ。広い地域に対応ができる積雪〜20cmタイプです。緩やかなカーブでどんなご自宅にでもマッチングいたします。
この商品の詳細へ
無料お見積り・現場調査・ご注文もこちら