各取扱メーカーの会社名、ロゴ及び商品名等は各社の商標または登録商標です。
| 日 | 月 | 火 | 水 | 木 | 金 | 土 |
|---|---|---|---|---|---|---|
| 1 | ||||||
| 2 | 3 | 4 | 5 | 6 | 7 | 8 |
| 9 | 10 | 11 | 12 | 13 | 14 | 15 |
| 16 | 17 | 18 | 19 | 20 | 21 | 22 |
| 23 | 24 | 25 | 26 | 27 | 28 | 29 |
| 30 |
| 日 | 月 | 火 | 水 | 木 | 金 | 土 |
|---|---|---|---|---|---|---|
| 1 | 2 | 3 | 4 | 5 | 6 | |
| 7 | 8 | 9 | 10 | 11 | 12 | 13 |
| 14 | 15 | 16 | 17 | 18 | 19 | 20 |
| 21 | 22 | 23 | 24 | 25 | 26 | 27 |
| 28 | 29 | 30 | 31 |
…休業日(現場調査・工事は一部対応)
![]()
【受付時間】9:30 - 17:30(営業日)
![]()
【受付時間】9:30 - 17:30(営業日)
オペレーションスタッフ
エクステリアプランナー有資格者の私たちにお任せください。
ショップ責任者
神(じん)
エクステリア プランナー
有資格者61名
1/3
1/3
今週のPick Upページ
![]()
ご利用頂いたお客様の口コミ・レビューを「お客様の声」として掲載しております。
全てのご感想を掲載しておりますので、エクスショップの評判としてご参考ください。
正式お見積りと一緒に提出させて頂いております「工事概略図面」もご覧頂けます。
商品や設置場所のご検討にお役立てください。
(写真No:31309831)
(物置・収納・屋外倉庫、カーポート)
| カラー | シャンパンゴールド |
|---|---|
| サイズ | 間口 2,600mm 奥行 2,012mm 高さ 1,940mm |
(写真No:31309831)
(物置・収納・屋外倉庫、カーポート)
| カラー | プラチナステン |
|---|---|
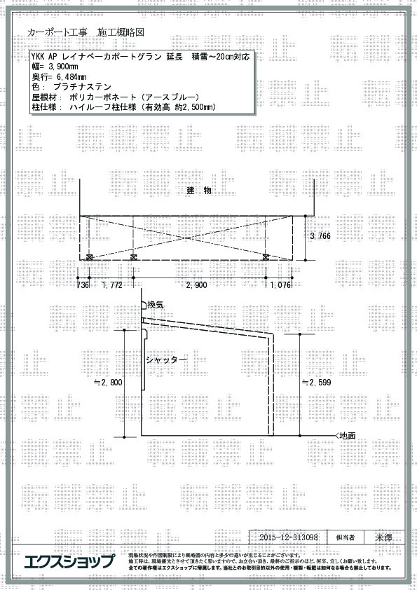
| サイズ | 幅 3,900mm 奥行 6,484mm |
| 屋根高等 | ハイルーフ柱仕様(有効高 約2,500mm) |
| 屋根材等 | ポリカーボネート (トーメイマット) |
| 工事方法 | メーカー責任施工 |
新築住宅の付属設備を設置するにあたり、ホームセンターなども検討したが自由に選べる御社に決定した。
レイナベーカポートグラン 延長の施工のご依頼を頂きまして、誠に有り難うございます。お住まいに寄り添うように完成したカーポートは、ポリカーボネート (トーメイマット)の屋根が奥行きがあり、お車を一台駐車されても余裕のある広さがございますが、明るさはそのままに、雨天時にも雨に濡れる事なくお車への乗り降りをして頂けるものと存じます。大きな物置は置き場のないお荷物や普段使わないお荷物を保管して頂く事が出来、空いたスペースを有効にお使い頂けますと幸いでございます。これからもお客様の快適な生活を作るお手伝いが出来るよう、スタッフ一同努力して参りますので、また機会がございましたら、是非エクスショップにご用命頂きますよう、宜しくお願い申し上げます。
当サイトは以下のセキュリティ機能や保護認定等を備えています。安心してお申し込みください
当サイトは256ビットSSL暗号化に対応しています。入力した個人情報は暗号化して送られますので、安心してご利用ください。
当社はJADMAの正会員です。同協会は法律で位置づけられた団体で、消費者の利益保護と業界の健全な発展の為に活動しています。
こちらの工事に使用しているエクステリア
![]()
アリュース ベーカ 600タイプ 奥行延長セット 1.5台用

工事費・税込
311,400円〜
商品レビュー数
1件
人気のレイナポートグランシリーズの後継商品! 屋根を家屋の壁に隙間なく設置する壁付け支持タイプのアリュースベーカに約0.5台分の奥行きがプラスされました。屋根と壁が一体化しているため、雨水が侵入する心配はご無用です。また、カーポートとしての使用にとどまらず、テラス屋根としてもご活用いただけます。
この商品の詳細へ
無料お見積り・現場調査・ご注文もこちら