お客様の声(工事例)

ご利用頂いたお客様の口コミ・レビューを「お客様の声」として掲載しております。
全てのご感想を掲載しておりますので、エクスショップの評判としてご参考ください。
正式お見積りと一緒に提出させて頂いております「工事概略図面」もご覧頂けます。
商品や設置場所のご検討にお役立てください。

毎日更新 安心と信頼の工事実績
声の掲載数
179,550
商品工事数
223,256
(2026年02月02日現在)

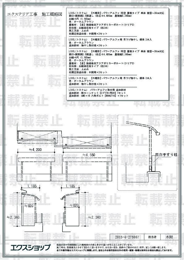
東京都国分寺市とうきょうと こくぶんじし のバルコニー・ベランダ屋根施工例(パワーアルファ RB型 屋根タイプ 単体 積雪〜30cm対応+吊下げ物干し 標準 2本入)

東京都国分寺市ののバルコニー・ベランダ屋根 パワーアルファ RB型 屋根タイプ 単体 積雪〜30cm対応+吊下げ物干し 標準 2本入 施工例

(写真No:27586724)

パワーアルファ RB型 屋根タイプ 単体 積雪〜30cm対応+吊下げ物干し 標準 2本入

カラー オータムブラウン
サイズ 間口 5,360mm 出幅 1,185mm
柱仕様 出幅自在桁タイプ(柱2本)
屋根材 熱線吸収アクアポリカーボネート(クリアS)
工事方法 地域密着あんしん施工

東京都国分寺市ののバルコニー・ベランダ屋根 パワーアルファ RB型 屋根タイプ 単体 積雪〜30cm対応+吊下げ物干し 標準 2本入 施工例

(写真No:27586724)

パワーアルファ RB型 屋根タイプ 単体 積雪〜30cm対応+吊下げ物干し 標準 2本入

カラー オータムブラウン
サイズ 間口 5,360mm 出幅 1,185mm
柱仕様 出幅自在桁タイプ(柱2本)
屋根材 熱線吸収アクアポリカーボネート(クリアS)
工事方法 地域密着あんしん施工

お客様の感想 評価: 5つ星のうち5 5

明るくて動きやすさ。丁寧なので安心しました。

エクスショップ担当者より

弊社は日頃から、迅速な対応とともに、全てのお客様に安心してご利用頂ける丁寧な対応を心掛けておりますので、このようなお褒めのお言葉を頂き、感無量でございます。優れた耐風圧性能を持つパワーアルファ RB型 屋根タイプが設置され、雨風の強い日でも安心してお過ごし頂けますね。お客様の毎日の豊かな暮らしにお役立て頂ければ幸いでございます。この度はエクスショップをご利用頂き、誠に有り難うございました。またのご利用を心よりお待ち申し上げております。

この工事例についてのお問い合わせ

下のフォームの全項目にご入力の上、確認画面へ進んでください。
(※お客様にご入力いただいた情報は、セコムSSLにて暗号化され、安全に送信されます。)

お名前
(ふりがな)
せい めい
ご住所 都道府県:
メールアドレス

メールアドレスを持っていない(info@ex-shop.netが自動入力されます)

お電話番号
お問い合わせ内容

上の「お問い合わせフォーム」に必要事項を全て入力されましたら、
次の入力内容の確認ページへと進んでください。

確認画面へ進む

第三者への転売等を目的とする建設関連業者様からの施工のご依頼は、申し訳ありませんがお断りしております(※商品のみのご購入には対応しております)。

エクスショップが選ばれる7つの理由

高価な買い物だから、工事が必要な商品だから、ネットを介した購入だから、工事実績豊富で価格面も安心!のエクスショップが選ばれています。

25年連続NO.1エクステリアネット販売実績2000〜2024

  • 極限価格 割引率最大69%+α OFF!!
  • 現場調査&お見積り工事開始まですべて無料! 仕様変更による再見積りももちろん無料!
  • 全国対応 地域密着 1,613店 お近くの当社提携施工店が工事対応します!
  • メーカー取り扱い商品点数 豊富な10,000商品
  • 掲載中の施工実績&お客様の声 170,000件の実績!!
  • 商品&施工、安心のダブル保証! 商品2年施工10年
  • お客様情報をあらゆる面から守ります 安心セキュリティ

ページトップへ