お客様の声(工事例)

ご利用頂いたお客様の口コミ・レビューを「お客様の声」として掲載しております。
全てのご感想を掲載しておりますので、エクスショップの評判としてご参考ください。
正式お見積りと一緒に提出させて頂いております「工事概略図面」もご覧頂けます。
商品や設置場所のご検討にお役立てください。

毎日更新 安心と信頼の工事実績
声の掲載数
178,244
商品工事数
221,618
(2026年01月19日現在)

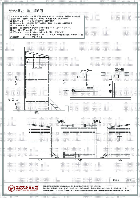
東京都町田市とうきょうと まちだし のLIXIL リクシル(トステム)テラス囲い・サンルーム施工例(ほせるんですII F型 床納まり ランマ付き 積雪〜20cm対応)

東京都町田市のLIXIL リクシル(トステム)のテラス囲い・サンルーム ほせるんですII F型 床納まり ランマ付き 積雪〜20cm対応 施工例

(写真No:19261211)

ほせるんですII F型 床納まり ランマ付き 積雪〜20cm対応

サイズ 間口 2,730mm 出幅 1,485mm
カラー オータムブラウン
屋根材 熱線吸収アクアポリカーボネート(ライトブルー)
工事方法 メーカー責任施工

お客様の感想 評価: 5つ星のうち5 5

前回同様、対応が迅速でとても良かったです。実際に見積もりに来られた方、施工に来られた方も対応が良く、依頼された事だけではなく、補修(外壁のコーキング劣化)をしてから作業を進めて頂きました。結果として料金は少し増えましたが、とても満足しています。

エクスショップ担当者より

この度は再度エクスショップをご利用下さいまして、誠に有り難うございます。「満足」とのお言葉を頂戴致しまして、大変光栄に存じます。テラス囲いにより、商品名の通り雨の日でも安心して洗濯物を干して頂け、大変機能的にご利用頂けることと存じます。またポリカーボネート材が有害な紫外線を遮りますので、お客様のお身体にも優しい商品でございます。お気に召して頂き永くご愛用頂けましたら、幸いでございます。今後もお客様のご期待を裏切ることの無いよう、なお一層の努力を重ねて参りますので、また御用ございましたら、お気軽にエクスショップまでご連絡下さいますよう、宜しくお願い致します。

この工事例についてのお問い合わせ

下のフォームの全項目にご入力の上、確認画面へ進んでください。
(※お客様にご入力いただいた情報は、セコムSSLにて暗号化され、安全に送信されます。)

お名前
(ふりがな)
せい めい
ご住所 都道府県:
メールアドレス

メールアドレスを持っていない(info@ex-shop.netが自動入力されます)

お電話番号
お問い合わせ内容

上の「お問い合わせフォーム」に必要事項を全て入力されましたら、
次の入力内容の確認ページへと進んでください。

確認画面へ進む

第三者への転売等を目的とする建設関連業者様からの施工のご依頼は、申し訳ありませんがお断りしております(※商品のみのご購入には対応しております)。

エクスショップが選ばれる7つの理由

高価な買い物だから、工事が必要な商品だから、ネットを介した購入だから、工事実績豊富で価格面も安心!のエクスショップが選ばれています。

25年連続NO.1エクステリアネット販売実績2000〜2024

  • 極限価格 割引率最大69%+α OFF!!
  • 現場調査&お見積り工事開始まですべて無料! 仕様変更による再見積りももちろん無料!
  • 全国対応 地域密着 1,613店 お近くの当社提携施工店が工事対応します!
  • メーカー取り扱い商品点数 豊富な10,000商品
  • 掲載中の施工実績&お客様の声 170,000件の実績!!
  • 商品&施工、安心のダブル保証! 商品2年施工10年
  • お客様情報をあらゆる面から守ります 安心セキュリティ

ページトップへ