お客様の声(工事例)

ご利用頂いたお客様の口コミ・レビューを「お客様の声」として掲載しております。
全てのご感想を掲載しておりますので、エクスショップの評判としてご参考ください。
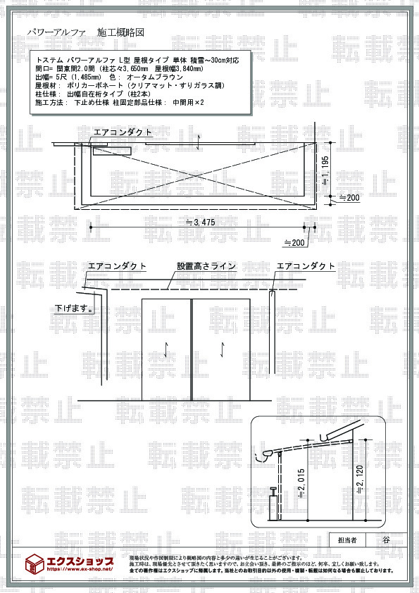
正式お見積りと一緒に提出させて頂いております「工事概略図面」もご覧頂けます。
商品や設置場所のご検討にお役立てください。

毎日更新 安心と信頼の工事実績
声の掲載数
178,233
商品工事数
221,593
(2025年12月28日現在)

神奈川県川崎市かながわけん かわさきし のLIXIL リクシル(トステム)バルコニー・ベランダ屋根施工例(パワーアルファ L型 屋根タイプ 単体 積雪〜30cm対応+吊り下げ式物干し 標準 2本入り)

神奈川県川崎市のLIXIL リクシル(トステム)のバルコニー・ベランダ屋根 パワーアルファ L型 屋根タイプ 単体 積雪〜30cm対応+吊り下げ式物干し 標準 2本入り 施工例

(写真No:20062721)

パワーアルファ L型 屋根タイプ 単体 積雪〜30cm対応+吊り下げ式物干し 標準 2本入り

カラー オータムブラウン
サイズ 屋根幅 3,840mm 出幅 1,485mm
柱仕様 出幅自在桁タイプ(柱2本)
屋根材 ポリカーボネート(クリアマット・すりガラス調)
工事方法 地域密着あんしん施工

お客様の感想 評価: 5つ星のうち4 4

ネット取引ということで多少不安は有りましたが、施工例と利用された方の感想を読んで、概ね評価が良かったので問い合わせしました。担当の方からは、メールと電話できめ細かく連絡をして頂いたので、問い合わせをしてから工事が終わるまで、全くネット取引の不便さは感じませんでした。屋根をL型にするかRB型にするか悩んでいた時も、すぐに比較表を送って頂き、納得して決めることが出来ました。施工業者の方も、我が家の壁に合わせて丁寧に説明して頂き、仕上がりもきれいで満足しています。急な雨を気にしないで、洗濯物を干したまま出かけられるようになり嬉しく思っています。

エクスショップ担当者より

施工を伴います商品を、顔の見えないネットショッピングでご依頼頂くにあたりましては、ご不安に思われることも多かったかと存じますが、弊社を信頼してご用命くださり、誠に有り難うございます。高い耐風圧性能を誇りますパワーアルファ L型が綺麗に納まり、私どもも嬉しく存じます。出幅自在桁タイプでございますので、バルコニーの出幅に合わせて屋根を外に張り出すことが出来、快適にご使用頂けるものと存じます。今後も丁寧で迅速な対応を心掛け、更にお客様に満足して頂けるエクスショップを目指して参ります。またのご利用を、心よりお待ち申し上げております。

この工事例についてのお問い合わせ

下のフォームの全項目にご入力の上、確認画面へ進んでください。
(※お客様にご入力いただいた情報は、セコムSSLにて暗号化され、安全に送信されます。)

お名前
(ふりがな)
せい めい
ご住所 都道府県:
メールアドレス

メールアドレスを持っていない(info@ex-shop.netが自動入力されます)

お電話番号
お問い合わせ内容

上の「お問い合わせフォーム」に必要事項を全て入力されましたら、
次の入力内容の確認ページへと進んでください。

確認画面へ進む

第三者への転売等を目的とする建設関連業者様からの施工のご依頼は、申し訳ありませんがお断りしております(※商品のみのご購入には対応しております)。

エクスショップが選ばれる7つの理由

高価な買い物だから、工事が必要な商品だから、ネットを介した購入だから、工事実績豊富で価格面も安心!のエクスショップが選ばれています。

25年連続NO.1エクステリアネット販売実績2000〜2024

  • 極限価格 割引率最大69%+α OFF!!
  • 現場調査&お見積り工事開始まですべて無料! 仕様変更による再見積りももちろん無料!
  • 全国対応 地域密着 1,613店 お近くの当社提携施工店が工事対応します!
  • メーカー取り扱い商品点数 豊富な10,000商品
  • 掲載中の施工実績&お客様の声 170,000件の実績!!
  • 商品&施工、安心のダブル保証! 商品2年施工10年
  • お客様情報をあらゆる面から守ります 安心セキュリティ

ページトップへ