バイク・自転車を雨風から保護
お家の収納能力をアップ
ガレージの保全・防犯にカーポートと合わせて
お庭に機能的スペースを作り出します
防犯、お家のドレスアップはこれで決まり
ガレージ商品とコンビで高級感を演出
各取扱メーカーの会社名、ロゴ及び商品名等は各社の商標または登録商標です。
| 日 | 月 | 火 | 水 | 木 | 金 | 土 |
|---|---|---|---|---|---|---|
| 1 | 2 | 3 | 4 | 5 | 6 | |
| 7 | 8 | 9 | 10 | 11 | 12 | 13 |
| 14 | 15 | 16 | 17 | 18 | 19 | 20 |
| 21 | 22 | 23 | 24 | 25 | 26 | 27 |
| 28 | 29 | 30 | 31 |
| 日 | 月 | 火 | 水 | 木 | 金 | 土 |
|---|---|---|---|---|---|---|
| 1 | 2 | 3 | ||||
| 4 | 5 | 6 | 7 | 8 | 9 | 10 |
| 11 | 12 | 13 | 14 | 15 | 16 | 17 |
| 18 | 19 | 20 | 21 | 22 | 23 | 24 |
| 25 | 26 | 27 | 28 | 29 | 30 | 31 |
…休業日(現場調査・工事は一部対応)
![]()
【受付時間】9:30 - 17:30(営業日)
![]()
【受付時間】9:30 - 17:30(営業日)
オペレーションスタッフ
エクステリアプランナー有資格者の私たちにお任せください。
ショップ責任者
神(じん)
エクステリア プランナー
有資格者61名
1/3
木附
枡田
重富
吉澤
吉野
小東
池本
山田
佐藤
白崎
新西
伊野
次田
浅川
南
西山
小林
梨田
長谷川
藤田
阿重田
村上
植松
内田
久田
小野
平戸
中島
長石
水口
榮
山崎
清水
室谷
安田
水谷
酒井
神吉
日下部
山中
深田
田中
水田
西田
一氏
岡本
北
坂本
中嶋
岩野
伊藤
上中
高山
竹本
犬井
佐伯
谷川
原
丸山
塚田
松本
上内
島田
森
梅田
松山
山本
小林
倉地
山根
中原
河野
村上
土井
岩破
南
井上
三ツ股
小田
依藤
永禮
林
加藤
石藤
駒井
末吉
山本
芦野
樽井
野上
岡田
木村
池田
西村
藤澤
達川
奥原
那須
小西
森下
1/3
今週のPick Upページ
![]()
ご利用頂いたお客様の口コミ・レビューを「お客様の声」として掲載しております。
全てのご感想を掲載しておりますので、エクスショップの評判としてご参考ください。
正式お見積りと一緒に提出させて頂いております「工事概略図面」もご覧頂けます。
商品や設置場所のご検討にお役立てください。
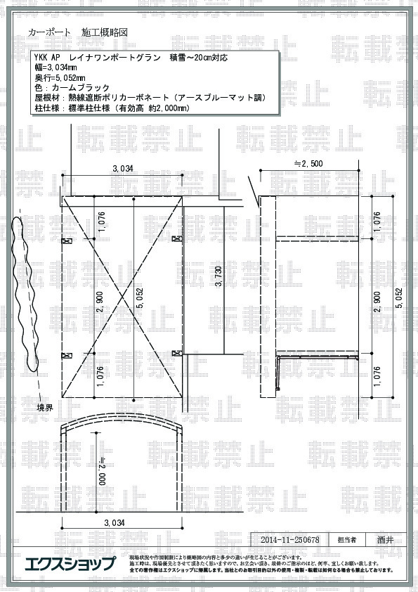
(写真No:25067821)
(カーポート)
| カラー | カームブラック |
|---|---|
| サイズ | 幅 3,034mm 奥行 5,052mm |
| 屋根高等 | 標準柱仕様(有効高 約2,000mm) |
| 屋根材等 | 熱線遮断ポリカーボネート(アースブルーマット調) |
| 工事方法 | 地域密着あんしん施工 |
施工も丁寧で大変満足しています。
レイナワンポートグランの施工をご依頼頂きまして、誠に有り難うございます。施工に満足とのお言葉を頂き、施工担当者はもとより、私どもにとりましても、何よりの喜びでございます。アーチ状の熱線遮断ポリカーボネート(アースブルーマット調)の屋根が、大切なお車を、雨や強い日差しからしっかりとお守り致しますね。今後また機会がございましたら、是非エクスショップにご用命ください。またのご利用を、心よりお待ち致しております。
当サイトは以下のセキュリティ機能や保護認定等を備えています。安心してお申し込みください
当サイトは256ビットSSL暗号化に対応しています。入力した個人情報は暗号化して送られますので、安心してご利用ください。
当社はJADMAの正会員です。同協会は法律で位置づけられた団体で、消費者の利益保護と業界の健全な発展の為に活動しています。
こちらの工事に使用しているエクステリア
![]()
アリュース 600タイプ 1台用 4本柱

工事費・税込
208,900円〜
総合平均評価(星5つ評価)
4.71
商品レビュー数
34件
アリュース 600タイプ 1台用 4本柱はアール屋根を左右の柱で支える両側支持仕様のカーポートです。基準風速Vo=34m/s・耐積雪性能20cmの強度があります。屋根材は耐衝撃性&防火性が高いポリカーボネート・採光性&遮熱効果が高い熱線ポリカーボネートから選択可能です。
この商品の詳細へ
無料お見積り・現場調査・ご注文もこちら
この商品のレビュー
商品レビュー34件

鹿児島県 鹿児島市 A.Y.様
他社も見積もりしましたが、値段があまりに違いビックリしました。見た目も良く、品質も最高です。

埼玉県 越谷市 T.C.様
近所のカーポートがある家は、皆片屋根なので、4本脚のカーポートで安心感ですね!といわれた。

神奈川県 秦野市 T.K.様
支柱のコンクリート打ちの際、型枠を使ってモルタルを流すのかと思いきや、手彫りで掘ったままのところに流し込む方法だった。そのため、支柱周りのコンクリートが綺麗な正方形にはなっておらず、残念だった。そのため星は4個にしました。

兵庫県 加古郡稲美町 O.K.様
4本柱なので風に強く安定感があります。 車の色と屋根の色がよく合っている。

熊本県 山鹿市 K.K.様
今回、この商品を選びましたがネットの画像で見る以上に良かったです。完成したカーポートの良い点は雨樋があり雨の日も快適でたすかっています。

大分県 由布市 T.T.様
見栄えがそれまでの重厚さからシンプルになったことでよくなった。

埼玉県 朝霞市 K.M.様
満足です、柱も太くしっかりしていてよかったです。

福岡県 北九州市 K.K.様
家との色合いが心配でしたが、いい感じでした。 思惑と違ったのが屋根が高いので、西日が結構当たるな〜というとこくらいでしょうか。製品はちゃんとしています。 家族の評価も高いです。今後は経年劣化がどのようなものか見守っていきたいと思います。

長崎県 島原市 K.M.様
まだせっちしたばかりで、外観的にはまずまずだと思います。

岩手県 盛岡市 G.R.様
耐久性など、まだこれからなので4つです。商品の状態などは問題ありません。

兵庫県 加古川市 U.S.様
各メーカーとも同じだと思うのですが、以前の商品と比較すると重厚感がないのと、柱などが細かったり、屋根材のポリカーを押さえる部品が薄いので安っぽく見えます。以前の商品の方がデザインも高級感がありました。

大分県 大分市 A.T.様
西日が強いので、熱線遮断ポリカーボネート板にしてよかった。

埼玉県 越谷市 A.S.様
真夏の日差しを避けるため設置したが、熱線遮断という割には光を通してしまい車体がかなり熱くなる。ただ設置前と比べると室内は格段に温度が下がったのでこんなものかなと思っている。

群馬県 伊勢崎市 K.H.様
とても家の感じに合っていて、ホワイトを選んで良かったなと思います。

福岡県 古賀市 T.S.様
イメージ通りの商品で、色味も違和感なく馴染んでくれました。元のカーポートよりひと回り大きいので駐車が楽になりました。

埼玉県 深谷市 M.E.様
見た目、格好が良い。熱線遮断屋根にして良かった。材質的に色が出せないんですね。贅沢言えばブラウン系があればより良いですがこれは仕方ない。全体的に満足です。
関連するお客様の声

5つ星のうち4
埼玉県M.E. 様回答日:2024年5月
相見積りをしている最中ネットでエクスショップを見ました。価格がとにかく安いので逆に半信半疑でしたが、メールや電話のやり取りも迅速でほぼ即決でした。ご担当の方も現場施工者の方も親切丁寧で作業もキレイでもこちらに決めて得した気分だし、見た目もより格好良く感じ満足です。

5つ星のうち5
山口県Y.T. 様回答日:2024年4月
既設のカーポートが狭く天井部分から水漏れ等があり取替しました、新設は明るく間口も広いので良かったです。工事については雨が多く日程がずれ込んでしまい、3日の予定が週をまたいで1日過ぎましたが施工業者も遅くまで作業をし完了しました。又機会が有りましたらよろしくお願いいたします。

5つ星のうち5
福岡県S.K. 様回答日:2020年7月
会社移転のため、新店にカーポート・テラス屋根を設置したくて、インターネットで条件の合いそうなショップを探していました。現地見積もりに来ていただいた業者の方もとても親切で、工事・設置も丁寧で満足しています。天候が不安定な中で作業をしていただき有難うございました。

5つ星のうち5
岡山県K.A. 様回答日:2020年5月
ネット販売業者は、現場見積りが、最初より、かなり高額になることが多いですが、御社は概算見積りと現場見積りが、ほとんど変わらなかったので、依頼しました。施工の職人さんも感じのいい人で、当初3日の工事日程も、ほぼ1日半で完成。ありがとうございました。

5つ星のうち5
福岡県H.T. 様回答日:2018年11月
30数年前に設置したカーポート、屋根材のポリカが経年劣化しひび割れた。土台はしっかりしているので、ポリカのみの交換を考えたが、寸法に合うものがなかった。やむを得ず更新することにした。インターネットで、施工例、お客様の声等検索し御社が気に入り決定した。工事は丁寧・正確で工事中の質問にも的確な回答があった。

5つ星のうち5
愛知県A.M. 様回答日:2025年9月
ずっとカーポートが付けたかったけど、どうしてもいるものではなかったので後回しになっていた。年々猛暑が続いていた事がきっかけです。暑い日に乗った最初の車内の温度が低く感じられて、つけて良かったと思った。小雨の時の車の汚れが防げるといいなと思っています。

5つ星のうち5
静岡県G.M. 様回答日:2025年4月
昨年購入した車両は高さが2,250mmあり構造的にルーフには乗れず、洗車がとても大変で苦労していました。現在3連のカーポートはありますが高さが2,400mmの所があり納まりません。高さがクリアーできるカーポートを探した所エクスショップに辿り着きました。価格、保証等説明を聞き、クチコミにも後押しされ決めさせて頂きました。現地調査も準則にして頂き設置も近くの業者様により、2日で完了しました。設置後雨が降りましたが、車両が濡れないため雨垂れ等無くとても満足しております。また機会がありましたらその際は是非お願いしたいと思います。大変有り難う御座いました。

5つ星のうち5
長野県N.Y. 様回答日:2025年4月
友人の話を聞いて購入を考えました。初めてのマイホームということもあり、また積雪も多い地域であったことから、カーポートをつけたいと考えていました。今回購入したことで車に積もった雪を降ろすことなく快適に乗車できそうなので大変助かります。購入してよかったです。ありがとうございました。
関連するブログ記事
関連するよくあるご質問
カーポートの設置と一緒に土間コンクリートを打設できますか?
【商品カテゴリ >カーポート】(ご質問No.707)
既存のカーポート屋根材の張り替えの依頼はできますか?
【商品カテゴリ >カーポート】(ご質問No.21)
以前購入したカーポートの部品のみを追加で購入する事は可能ですか?
【商品カテゴリ >カーポート】(ご質問No.48)
ワイドタイプのカーポートですが、横幅の切り詰めは可能ですか?
【商品カテゴリ >カーポート】(ご質問No.69)
カーポートって何ですか?
【商品カテゴリ >カーポート】(ご質問No.28910)
既存のカーポートの柱の高さを桁上げする事は可能ですか?
【商品カテゴリ >カーポート】(ご質問No.43)
既存のカーポートをいったん解体し、再度組み立てることは可能ですか?
【商品カテゴリ >カーポート】(ご質問No.46)
四国化成のFリードカーポート収納庫付きタイプは取り扱ってますか?
【商品カテゴリ >カーポート】(ご質問No.74)
既存カーポートの支柱を流用して、増設、縦列2台用のカーポートを設置することは可能ですか?
【商品カテゴリ >カーポート】(ご質問No.84)
四国化成のマイポートneoの取り扱いはありますか?
【商品カテゴリ >カーポート】(ご質問No.88)


















