バイク・自転車を雨風から保護
お家の収納能力をアップ
ガレージの保全・防犯にカーポートと合わせて
お庭に機能的スペースを作り出します
防犯、お家のドレスアップはこれで決まり
ガレージ商品とコンビで高級感を演出
各取扱メーカーの会社名、ロゴ及び商品名等は各社の商標または登録商標です。
| 日 | 月 | 火 | 水 | 木 | 金 | 土 |
|---|---|---|---|---|---|---|
| 1 | 2 | 3 | ||||
| 4 | 5 | 6 | 7 | 8 | 9 | 10 |
| 11 | 12 | 13 | 14 | 15 | 16 | 17 |
| 18 | 19 | 20 | 21 | 22 | 23 | 24 |
| 25 | 26 | 27 | 28 | 29 | 30 | 31 |
| 日 | 月 | 火 | 水 | 木 | 金 | 土 |
|---|---|---|---|---|---|---|
| 1 | 2 | 3 | 4 | 5 | 6 | 7 |
| 8 | 9 | 10 | 11 | 12 | 13 | 14 |
| 15 | 16 | 17 | 18 | 19 | 20 | 21 |
| 22 | 23 | 24 | 25 | 26 | 27 | 28 |
…休業日(現場調査・工事は一部対応)
![]()
【受付時間】9:30 - 17:30(営業日)
![]()
【受付時間】9:30 - 17:30(営業日)
オペレーションスタッフ
エクステリアプランナー有資格者の私たちにお任せください。
ショップ責任者
神(じん)
エクステリア プランナー
有資格者61名
1/3
木附
枡田
重富
吉澤
吉野
小東
池本
山田
佐藤
白崎
新西
伊野
次田
南
西山
小林
阿重田
梨田
長谷川
藤田
村上
平戸
植松
内田
久田
中島
長石
水口
榮
山崎
清水
室谷
安田
水谷
小野
酒井
一氏
神吉
日下部
山中
深田
田中
水田
西田
岡本
丸山
北
坂本
中嶋
岩野
伊藤
上中
高山
原
犬井
佐伯
谷川
塚田
松本
小林
森下
上内
島田
森
梅田
松山
山本
小西
倉地
山根
中原
河野
村上
土井
岩破
南
井上
三ツ股
小田
依藤
永禮
林
加藤
石藤
駒井
末吉
山本
芦野
樽井
野上
岡田
木村
池田
西村
藤澤
達川
奥原
那須
1/3
今週のPick Upページ
![]()
ご利用頂いたお客様の口コミ・レビューを「お客様の声」として掲載しております。
全てのご感想を掲載しておりますので、エクスショップの評判としてご参考ください。
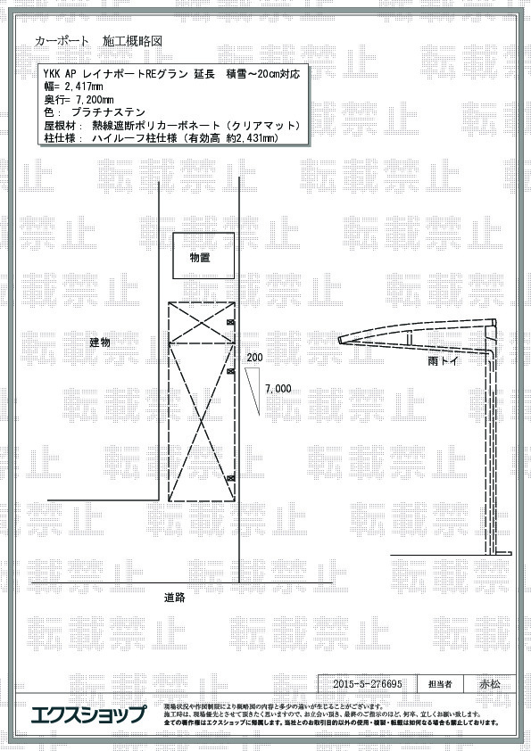
正式お見積りと一緒に提出させて頂いております「工事概略図面」もご覧頂けます。
商品や設置場所のご検討にお役立てください。
(写真No:27669525)
(カーポート)
| カラー | プラチナステン |
|---|---|
| サイズ | 幅 2,417mm 奥行 7,200mm |
| 屋根高等 | ハイルーフ柱仕様(有効高 約2,431mm) |
| 屋根材等 | 熱線遮断ポリカーボネート(クリアマット) |
| 工事方法 | 地域密着あんしん施工 |
・車の雪降ろしと出勤の朝の思いがけない大雪、積雪の雪かきをなんとかしたいと思い、購入しました。雨の日でも楽ちんなので、冬場はもっと快適になると期待しています。・私のしつこいくらいの質問にも丁寧、親切に回答頂き、電話やメールのやり取りを繰り返すうちに信頼出来るお店だと確信しました。工事のかたも礼儀正しく、仕事はテキパキと丁寧にこなし、工事の出来上がりにも満足です。また何かの時は、ぜひお願いしたいお店です。値段も安かったです。
この度はレイナポートREグラン 延長の施工をエクスショップにご依頼頂き、誠に有り難うございました。顔の見えないネット販売では、ご不安に思われることも多いと存じますので、安心してご依頼頂けたというお声を聞くことが、何よりの喜びでございます。雨や紫外線の他に、春は花粉、夏は強い日差し、冬は雪などからお車をお守りするカーポートが完成し、季節を問わず安心してお過ごし頂けますね。お客様の快適な暮らしにお役立て頂けますと幸いでございます。今後も、格安のお値段での最高品質の提供にこだわって参りたいと存じますので、また機会がございましたら是非、弊社にご用命下さいますよう宜しくお願い申し上げます。
当サイトは以下のセキュリティ機能や保護認定等を備えています。安心してお申し込みください
当サイトは256ビットSSL暗号化に対応しています。入力した個人情報は暗号化して送られますので、安心してご利用ください。
当社はJADMAの正会員です。同協会は法律で位置づけられた団体で、消費者の利益保護と業界の健全な発展の為に活動しています。
こちらの工事に使用しているエクステリア
![]()
アリュースRE 600タイプ 前下がり 奥行延長セット 1.5台用

工事費・税込
285,000円〜
総合平均評価(星5つ評価)
5
商品レビュー数
2件
人気のレイナポートグランシリーズの後継商品! 前下がり屋根が特徴的なカーポートであるアリュースREに車約0.5台分の広さが加わりました。柱を建物側に設置することによって、建物への雨水の流れ込みや跳ね返りを防止し、雨風の吹き込みや日光の差し込みを低減します。新しいスペースは駐輪場などにも活用可能です。
この商品の詳細へ
無料お見積り・現場調査・ご注文もこちら
関連するお客様の声

5つ星のうち5
熊本県S.H. 様回答日:2019年5月
カーポートが欲しいとは思っていたが、なかなか決めきれずにいたのですが、御社が他店よりとても安く、とても丁寧だったので決めました。設置して雨の日は濡れずに乗れるし、とても快適です。

5つ星のうち5
福島県K.N. 様回答日:2020年7月
雨や雪から車を守るために設置を決めました。雨の日の乗り降りが濡れなくて済むのでとても快適です。お店の対応もメールで親切丁寧に対応してくださってとてもよかったです。

5つ星のうち4
岐阜県O.K. 様回答日:2011年11月
値段が他店よりかなり安くて良かったです。施工してくれた職人さんも親切で丁寧な仕事をしてくれました。カーポートも丈夫そうでこれなら雪が多い私が住む地域でも大丈夫だと安心です。

5つ星のうち5
長野県F.Y. 様回答日:2019年2月
車の雪下ろしや車に行くまでの雪かきも大変で、また朝早い雪かきも時間に追われ大変なので、申し込みました。まだ雪は降りませんが、霜が着かなくて快適です。もう少し早くにお願いすれば良かったと思いました。

5つ星のうち4
東京都H.H. 様回答日:2011年11月
ネットだし、安かろう悪かろうだと思っていましたが、丁寧な対応と仕事でした。お店にわざわざ出かけることがなく、こちらの思いを伝えられます。

5つ星のうち5
和歌山県Y.M. 様回答日:2018年4月
確認のメールや対応が丁寧な上、出来あがりもきれいでとても満足しています。他の近くのお店も見に行きましたが値段が全然違いました。今後も何かあればお願いしたいと思います。

5つ星のうち5
鹿児島県B.M. 様回答日:2017年4月
電話の応対もよく、工事までスムーズにいきました。工事のかたも、丁寧でしっかりされたかただったので、いいカーポートが、できました。

5つ星のうち5
愛媛県I.S. 様回答日:2019年12月
車を購入するに当たり、日光の遮断、寒い日の朝の車の窓ガラスの凍結予防にカーポートを購入するように致しました。車の凍結が無くなり、朝もスムーズに出勤出来るようになりました。エクスショップさんは注文から施工迄、電話やメールでのやり取りでしたが、質問にも素早く丁寧に返答して頂き、お安く、また不安なく無事施工完了する事が出来て大変良かったと思います。

5つ星のうち5
茨城県H.K. 様回答日:2016年1月
一番は冬場の朝のガラスの霜取りが無くなり、快適!(朝は出勤で時間が無いため何よりありがたい)。また、雨の日に車から玄関まで濡れずにすむ、特に荷物があるときは最高である。

5つ星のうち4
埼玉県T.Y. 様回答日:2018年1月
・車のフロントガラスの朝の凍結がなくなって、朝の出勤に少し余裕ができた。・関東地方の大雪の日も雪よけが楽にできました。
関連するブログ記事
関連するよくあるご質問
カーポートの設置と一緒に土間コンクリートを打設できますか?
【商品カテゴリ >カーポート】(ご質問No.707)
既存のカーポート屋根材の張り替えの依頼はできますか?
【商品カテゴリ >カーポート】(ご質問No.21)
以前購入したカーポートの部品のみを追加で購入する事は可能ですか?
【商品カテゴリ >カーポート】(ご質問No.48)
ワイドタイプのカーポートですが、横幅の切り詰めは可能ですか?
【商品カテゴリ >カーポート】(ご質問No.69)
カーポートって何ですか?
【商品カテゴリ >カーポート】(ご質問No.28910)
既存のカーポートの柱の高さを桁上げする事は可能ですか?
【商品カテゴリ >カーポート】(ご質問No.43)
既存のカーポートをいったん解体し、再度組み立てることは可能ですか?
【商品カテゴリ >カーポート】(ご質問No.46)
四国化成のFリードカーポート収納庫付きタイプは取り扱ってますか?
【商品カテゴリ >カーポート】(ご質問No.74)
既存カーポートの支柱を流用して、増設、縦列2台用のカーポートを設置することは可能ですか?
【商品カテゴリ >カーポート】(ご質問No.84)
四国化成のマイポートneoの取り扱いはありますか?
【商品カテゴリ >カーポート】(ご質問No.88)


















