お客様の声(工事例)

ご利用頂いたお客様の口コミ・レビューを「お客様の声」として掲載しております。
全てのご感想を掲載しておりますので、エクスショップの評判としてご参考ください。
正式お見積りと一緒に提出させて頂いております「工事概略図面」もご覧頂けます。
商品や設置場所のご検討にお役立てください。

毎日更新 安心と信頼の工事実績
声の掲載数
178,233
商品工事数
221,593
(2025年12月26日現在)

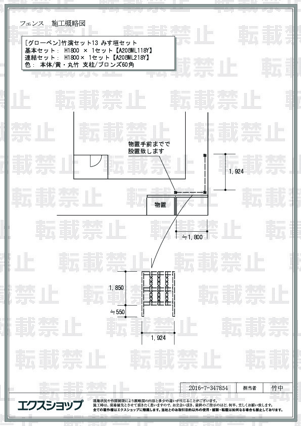
千葉県千葉市ちばけん ちばし のグローベンフェンス・柵・塀施工例(竹演セット13 みす垣セット)

千葉県千葉市のグローベンのフェンス・柵・塀 竹演セット13 みす垣セット 施工例

(写真No:34785437)

竹演セット13 みす垣セット

カラー 黄/ブロンズ
サイズ
工事方法 地域密着あんしん施工

お客様の感想 評価: 5つ星のうち5 5

工事施工後はとても良く、落ち着きました。

エクスショップ担当者より

この度は弊社で竹演セット13 みす垣セットの施工のご依頼を頂きまして、誠に有り難うございます。高さのある目隠しフェンスは、外からの視線をシャットアウトしながらも、本物の竹さながらの見た目で、明るく圧迫感がございませんね。防犯性を高め、竹を何本も積み重ねたようなデザインは、風の通りを感じて頂けるものと存じます。お住まいが安心してお過ごし頂ける環境になりましたら幸いでございます。これからもお客様満足度100%を目指し、企業努力を重ねて参りますので、また機会がございましたら、是非エクスショップにご用命頂きますよう、宜しくお願い申し上げます。

この工事例についてのお問い合わせ

下のフォームの全項目にご入力の上、確認画面へ進んでください。
(※お客様にご入力いただいた情報は、セコムSSLにて暗号化され、安全に送信されます。)

お名前
(ふりがな)
せい めい
ご住所 都道府県:
メールアドレス

メールアドレスを持っていない(info@ex-shop.netが自動入力されます)

お電話番号
お問い合わせ内容

上の「お問い合わせフォーム」に必要事項を全て入力されましたら、
次の入力内容の確認ページへと進んでください。

確認画面へ進む

第三者への転売等を目的とする建設関連業者様からの施工のご依頼は、申し訳ありませんがお断りしております(※商品のみのご購入には対応しております)。

エクスショップが選ばれる7つの理由

高価な買い物だから、工事が必要な商品だから、ネットを介した購入だから、工事実績豊富で価格面も安心!のエクスショップが選ばれています。

25年連続NO.1エクステリアネット販売実績2000〜2024

  • 極限価格 割引率最大69%+α OFF!!
  • 現場調査&お見積り工事開始まですべて無料! 仕様変更による再見積りももちろん無料!
  • 全国対応 地域密着 1,613店 お近くの当社提携施工店が工事対応します!
  • メーカー取り扱い商品点数 豊富な10,000商品
  • 掲載中の施工実績&お客様の声 170,000件の実績!!
  • 商品&施工、安心のダブル保証! 商品2年施工10年
  • お客様情報をあらゆる面から守ります 安心セキュリティ

ページトップへ