各取扱メーカーの会社名、ロゴ及び商品名等は各社の商標または登録商標です。
| 日 | 月 | 火 | 水 | 木 | 金 | 土 |
|---|---|---|---|---|---|---|
| 1 | 2 | 3 | ||||
| 4 | 5 | 6 | 7 | 8 | 9 | 10 |
| 11 | 12 | 13 | 14 | 15 | 16 | 17 |
| 18 | 19 | 20 | 21 | 22 | 23 | 24 |
| 25 | 26 | 27 | 28 | 29 | 30 | 31 |
| 日 | 月 | 火 | 水 | 木 | 金 | 土 |
|---|---|---|---|---|---|---|
| 1 | 2 | 3 | 4 | 5 | 6 | 7 |
| 8 | 9 | 10 | 11 | 12 | 13 | 14 |
| 15 | 16 | 17 | 18 | 19 | 20 | 21 |
| 22 | 23 | 24 | 25 | 26 | 27 | 28 |
…休業日(現場調査・工事は一部対応)
![]()
【受付時間】9:30 - 17:30(営業日)
![]()
【受付時間】9:30 - 17:30(営業日)
オペレーションスタッフ
エクステリアプランナー有資格者の私たちにお任せください。
ショップ責任者
神(じん)
エクステリア プランナー
有資格者61名
1/3
1/3
今週のPick Upページ
![]()
ご利用頂いたお客様の口コミ・レビューを「お客様の声」として掲載しております。
全てのご感想を掲載しておりますので、エクスショップの評判としてご参考ください。
正式お見積りと一緒に提出させて頂いております「工事概略図面」もご覧頂けます。
商品や設置場所のご検討にお役立てください。
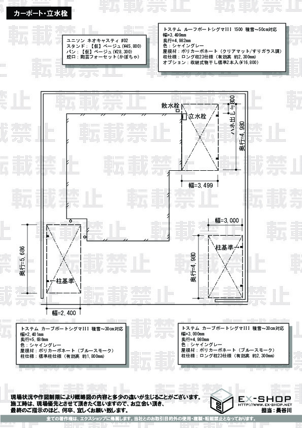
(写真No:8448284)
(立水栓・ガーデンシンク・水栓柱、カーポート)
| カラー | シャイングレー |
|---|---|
| サイズ | 幅 3,000mm 奥行 4,980mm |
| 屋根高等 | ロング柱23仕様(有効高 約2,300mm) |
| 屋根材等 | ポリカーボネート(ブルースモーク) |
| 工事方法 | 地域密着あんしん施工 |
(写真No:8448284)
(立水栓・ガーデンシンク・水栓柱、カーポート)
| カラー | シャイングレー |
|---|---|
| サイズ | 幅 2,401mm 奥行 5,686mm |
| 屋根高等 | 標準柱仕様(有効高 約1,800mm) |
| 屋根材等 | ポリカーボネート(ブルースモーク) |
| 工事方法 | 地域密着あんしん施工 |
(写真No:8448284)
(立水栓・ガーデンシンク・水栓柱、カーポート)
| カラー | シャイングレー |
|---|---|
| サイズ | 幅 3,499mm 奥行 4,982mm |
| 屋根高等 | ロング柱23仕様(有効高 約2,300mm) |
| 屋根材等 | ポリカーボネート(クリアマット/すりガラス調) |
| 工事方法 | 地域密着あんしん施工 |
単身赴任中であり、遠隔地からの注文ではあったが無事完了し、出来にも満足しております。
この度はルーフポートシグマIII 1500、カーブポートシグマIII、ネオキャスティの施工をご依頼頂き、誠に有難うございます。シャイングレーのフレームに、それぞれクリアマット、ブルースモークの屋根材を組み合わせたカーポートは、どれも明るく爽やかなお仕上がりでございますね。レンガ造りの立水栓も、ご自宅にぴったりマッチしたお仕上がりで、大変嬉しく存じます。これからも、益々精進して参りますので、また機会がございましたら、是非エクスショップをご利用頂けますよう、宜しくお願い致します。
当サイトは以下のセキュリティ機能や保護認定等を備えています。安心してお申し込みください
当サイトは256ビットSSL暗号化に対応しています。入力した個人情報は暗号化して送られますので、安心してご利用ください。
当社はJADMAの正会員です。同協会は法律で位置づけられた団体で、消費者の利益保護と業界の健全な発展の為に活動しています。
こちらの工事に使用しているエクステリア
![]()
ネオキャスティ #02

工事費・税込
126,800円〜
商品レビュー数
2件
温かなレンガの表情を持ったスリムサイズの立水栓です。下部ホース用蛇口が標準装備で、パンには排水のための目皿付きです。
この商品の詳細へ
無料お見積り・現場調査・ご注文もこちら
こちらの工事に使用しているエクステリア
![]()
ネスカ R 1台用(ラウンドスタイル)

工事費・税込
137,800円〜
商品レビュー数
1012件
ネスカ R 1台用(ラウンドスタイル)はラウンドタイプのアール屋根が特徴的な側方支柱カーポートです。本体カラーはシャイングレーを含めた全5色から、日差しからお車を守る屋根材は全6タイプ展開と種類に富む組み合わせが可能に。耐風性能は基準風速Vo=34m/s、耐積雪性能は20cm相当を対応しています。
この商品の詳細へ
無料お見積り・現場調査・ご注文もこちら