各取扱メーカーの会社名、ロゴ及び商品名等は各社の商標または登録商標です。
| 日 | 月 | 火 | 水 | 木 | 金 | 土 |
|---|---|---|---|---|---|---|
| 1 | 2 | 3 | 4 | 5 | 6 | |
| 7 | 8 | 9 | 10 | 11 | 12 | 13 |
| 14 | 15 | 16 | 17 | 18 | 19 | 20 |
| 21 | 22 | 23 | 24 | 25 | 26 | 27 |
| 28 | 29 | 30 | 31 |
| 日 | 月 | 火 | 水 | 木 | 金 | 土 |
|---|---|---|---|---|---|---|
| 1 | 2 | 3 | ||||
| 4 | 5 | 6 | 7 | 8 | 9 | 10 |
| 11 | 12 | 13 | 14 | 15 | 16 | 17 |
| 18 | 19 | 20 | 21 | 22 | 23 | 24 |
| 25 | 26 | 27 | 28 | 29 | 30 | 31 |
…休業日(現場調査・工事は一部対応)
![]()
【受付時間】9:30 - 17:30(営業日)
![]()
【受付時間】9:30 - 17:30(営業日)
オペレーションスタッフ
エクステリアプランナー有資格者の私たちにお任せください。
ショップ責任者
神(じん)
エクステリア プランナー
有資格者61名
1/3
1/3
今週のPick Upページ
![]()
ご利用頂いたお客様の口コミ・レビューを「お客様の声」として掲載しております。
全てのご感想を掲載しておりますので、エクスショップの評判としてご参考ください。
正式お見積りと一緒に提出させて頂いております「工事概略図面」もご覧頂けます。
商品や設置場所のご検討にお役立てください。
(写真No:20205021)
(カーポート、テラス屋根)
| カラー | オータムブラウン |
|---|---|
| サイズ | 幅 5,443mm 奥行 5,686mm |
| 屋根高等 | ロング柱23仕様(有効高 約2,300mm) |
| 屋根材等 | ポリカーボネート(ブラウン) |
| 工事方法 | メーカー責任施工 |
(写真No:20205021)
(カーポート、テラス屋根)
| カラー | オータムブラウン |
|---|---|
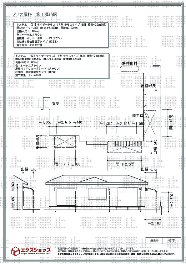
| サイズ | 屋根幅 4,570mm 出幅 1,485mm |
| 柱仕様 | 柱位置固定タイプ(柱2本) |
| 屋根材 | ポリカーボネート(ブラウン) |
| 工事方法 | メーカー責任施工 |
(写真No:20205021)
(カーポート、テラス屋根)
| カラー | オータムブラウン |
|---|---|
| サイズ | 屋根幅 3,020mm 出幅 1,485mm |
| 柱仕様 | 柱位置固定タイプ(柱2本) |
| 屋根材 | ポリカーボネート(ブラウン) |
| 工事方法 | メーカー責任施工 |
息子が以前お世話になったときに、どこよりも安かったと言うので決めました。安心地域密着施工で頼みましたが、近くの業者が手配出来ないというのでどちらでもよっかたのでメーカー責任施工にしました施工が選べるのが特権で金額は変わらないと思っていたので、早く進めたくて契約してしまいました。契約後気が付いたのですが、施工変更により金額も3万ほど上がっていて着工もかなり時間がかかりコンクリートのほうが先になってしまい残念です。テラス柱も寸法違いを持ってきて、「現場調査したのは誰だ」「今日は出来ない」ととても不愉快になりました。ネットでの購入は、私には勉強不足だったようです。
この度はエクスショップをご利用下さいまして、誠に有り難うございます。弊社のご案内が至らず、ご迷惑をお掛け致しまして、大変申し訳ございませんでした。また施工内容の引き継ぎに関しましても不十分であり、ご迷惑及びご不便をお掛け致しましたこと、重ねてお詫び申し上げます。ネット販売という顔の見えないお取引であるからこそ、常にお客様に信頼頂ける真摯できめ細やかな対応を心掛けて参りたいと存じます。ご迷惑をお掛け致しましたが、この度の施工によりお客様の生活がより便利で豊かなものになりますことを、心より願っております。また何かお気づきの点等ございましたら、お手数ではございますがエクスショップまでご連絡下さいますよう、宜しくお願い致します。
当サイトは以下のセキュリティ機能や保護認定等を備えています。安心してお申し込みください
当サイトは256ビットSSL暗号化に対応しています。入力した個人情報は暗号化して送られますので、安心してご利用ください。
当社はJADMAの正会員です。同協会は法律で位置づけられた団体で、消費者の利益保護と業界の健全な発展の為に活動しています。
こちらの工事に使用しているエクステリア
![]()
ネスカ R 2台用(ラウンドスタイル)

工事費・税込
223,500円〜
商品レビュー数
1267件
ネスカ R 2台用(ラウンドスタイル)は大きなアール仕様の屋根が特徴的な横並び2台駐車可能のカーポートです。標準柱が2200mmとなっており大半の車種に対応可能。耐風性能は基準風速Vo=40m/s、耐積雪性能は20cm相当の耐性があります。
この商品の詳細へ
無料お見積り・現場調査・ご注文もこちら
こちらの工事に使用しているエクステリア
![]()
スピーネ R型 テラスタイプ 単体

工事費・税込
88,100円〜
商品レビュー数
333件
LIXILの新テラス屋根スピーネ。広い地域に対応ができる積雪〜20cmタイプです。緩やかなカーブでどんなご自宅にでもマッチングいたします。
この商品の詳細へ
無料お見積り・現場調査・ご注文もこちら