各取扱メーカーの会社名、ロゴ及び商品名等は各社の商標または登録商標です。
| 日 | 月 | 火 | 水 | 木 | 金 | 土 |
|---|---|---|---|---|---|---|
| 1 | ||||||
| 2 | 3 | 4 | 5 | 6 | 7 | 8 |
| 9 | 10 | 11 | 12 | 13 | 14 | 15 |
| 16 | 17 | 18 | 19 | 20 | 21 | 22 |
| 23 | 24 | 25 | 26 | 27 | 28 | 29 |
| 30 |
| 日 | 月 | 火 | 水 | 木 | 金 | 土 |
|---|---|---|---|---|---|---|
| 1 | 2 | 3 | 4 | 5 | 6 | |
| 7 | 8 | 9 | 10 | 11 | 12 | 13 |
| 14 | 15 | 16 | 17 | 18 | 19 | 20 |
| 21 | 22 | 23 | 24 | 25 | 26 | 27 |
| 28 | 29 | 30 | 31 |
…休業日(現場調査・工事は一部対応)
![]()
【受付時間】9:30 - 17:30(営業日)
![]()
【受付時間】9:30 - 17:30(営業日)
オペレーションスタッフ
エクステリアプランナー有資格者の私たちにお任せください。
ショップ責任者
神(じん)
エクステリア プランナー
有資格者61名
1/3
1/3
今週のPick Upページ
![]()
ご利用頂いたお客様の口コミ・レビューを「お客様の声」として掲載しております。
全てのご感想を掲載しておりますので、エクスショップの評判としてご参考ください。
正式お見積りと一緒に提出させて頂いております「工事概略図面」もご覧頂けます。
商品や設置場所のご検討にお役立てください。
(写真No:21679123)
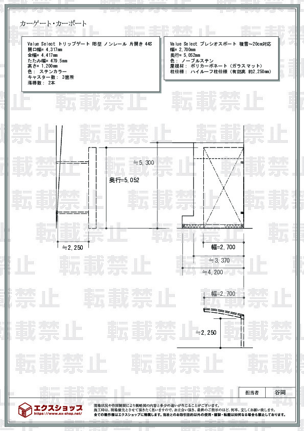
(カーポート、カーゲート)
| カラー | ノーブルステン |
|---|---|
| サイズ | 幅 2,700mm 奥行 5,052mm |
| 屋根高等 | ハイルーフ柱仕様(有効高 約2,250mm) |
| 屋根材等 | ポリカーボネート(ガラスマット) |
| 工事方法 | 地域密着あんしん施工 |
(写真No:21679123)
(カーポート、カーゲート)
| カラー | ホワイト |
|---|---|
| サイズ | 全幅 4,417mm 高さ 1,200mm |
| 柱タイプ | |
| 工事方法 | 地域密着あんしん施工 |
工事のスタートが、予定より大分時間がかかりましたが、仕上がりについては満足しております。
この度は、エクスショップをご利用頂きまして、誠に有り難うございます。カーゲートの一流メーカーと共同で開発致しましたトリップゲート RB型は、お手頃な価格ではございますが、機能性、耐久性に優れておりますので、安心してご使用頂けるものと存じます。プレシオスポートのポリカーボネート(ガラスマット)の屋根は、爽やかで美しいお仕上がりでございますね。今後は、スピードの面でもご期待に応えることが出来ますよう、企業努力を重ねて参りたいと存じます。また機会がございましたら、是非エクスショップにご用命くださいますよう、宜しくお願い致します。
当サイトは以下のセキュリティ機能や保護認定等を備えています。安心してお申し込みください
当サイトは256ビットSSL暗号化に対応しています。入力した個人情報は暗号化して送られますので、安心してご利用ください。
当社はJADMAの正会員です。同協会は法律で位置づけられた団体で、消費者の利益保護と業界の健全な発展の為に活動しています。
こちらの工事に使用しているエクステリア
![]()
プレシオスポート アール型 1台用

工事費・税込
112,000円〜
商品レビュー数
43件
プレシオスポート アール型 1台用はアール屋根が特徴的なエクスショップオリジナルブランドのスタンダードカーポートです。耐風性能は基準風速Vo=34m/s・耐積雪性能は20cm相当(600N/㎡)を確保しています。本体カラーは3色展開・屋根材は4種類あります。
この商品の詳細へ
無料お見積り・現場調査・ご注文もこちら
こちらの工事に使用しているエクステリア
![]()
トリップゲートU 2型 スタンダード ノンレール 片開き

工事費・税込
100,300円〜
商品レビュー数
229件
トリップゲートU 2型 スタンダード ノンレール 片開きはエクスショップオリジナルブランドの伸縮式カーゲートの片開きタイプです。ステンレス落とし棒や錠付きの取っ手など便利機能が充実しています。商品カラーも全6色と豊富です。
この商品の詳細へ
無料お見積り・現場調査・ご注文もこちら