各取扱メーカーの会社名、ロゴ及び商品名等は各社の商標または登録商標です。
| 日 | 月 | 火 | 水 | 木 | 金 | 土 |
|---|---|---|---|---|---|---|
| 1 | 2 | 3 | 4 | |||
| 5 | 6 | 7 | 8 | 9 | 10 | 11 |
| 12 | 13 | 14 | 15 | 16 | 17 | 18 |
| 19 | 20 | 21 | 22 | 23 | 24 | 25 |
| 26 | 27 | 28 | 29 | 30 |
| 日 | 月 | 火 | 水 | 木 | 金 | 土 |
|---|---|---|---|---|---|---|
| 1 | 2 | |||||
| 3 | 4 | 5 | 6 | 7 | 8 | 9 |
| 10 | 11 | 12 | 13 | 14 | 15 | 16 |
| 17 | 18 | 19 | 20 | 21 | 22 | 23 |
| 24 | 25 | 26 | 27 | 28 | 29 | 30 |
| 31 |
…休業日(現場調査・工事は一部対応)
![]()
【受付時間】9:30 - 17:30(営業日)
![]()
【受付時間】9:30 - 17:30(営業日)
オペレーションスタッフ
エクステリアプランナー有資格者の私たちにお任せください。
ショップ責任者
神(じん)
エクステリア プランナー
有資格者61名
1/3
1/3
今週のPick Upページ
![]()
ご利用頂いたお客様の口コミ・レビューを「お客様の声」として掲載しております。
全てのご感想を掲載しておりますので、エクスショップの評判としてご参考ください。
正式お見積りと一緒に提出させて頂いております「工事概略図面」もご覧頂けます。
商品や設置場所のご検討にお役立てください。
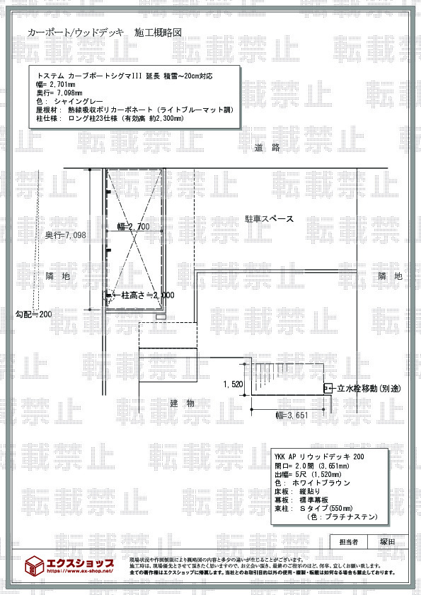
(写真No:22228924)
(ウッドデッキ、カーポート)
| カラー | ホワイトブラウン |
|---|---|
| サイズ | 間口 3,651mm 出幅 1,520mm |
| 工事方法 | 地域密着あんしん施工 |
(写真No:22228924)
(ウッドデッキ、カーポート)
| カラー | シャイングレー |
|---|---|
| サイズ | 幅 2,701mm 奥行 7,098mm |
| 屋根高等 | ロング柱23仕様(有効高 約2,300mm) |
| 屋根材等 | 熱線吸収ポリカーボネート(ライトブルーマット調) |
| 工事方法 | 地域密着あんしん施工 |
安い
この度は、カーポートとウッドデッキの施工をご依頼頂きまして、誠に有り難うございます。お客様のお住まいを、より素敵にするお手伝いが出来ます事は、私どもにとりましても何よりの喜びでございます。今後も、格安のお値段での最高品質の提供にこだわって参りたいと存じますので、また機会がございましたら是非、弊社にご用命下さいますよう宜しくお願い申し上げます。
当サイトは以下のセキュリティ機能や保護認定等を備えています。安心してお申し込みください
当サイトはSSL暗号化に対応しています。入力した個人情報は暗号化して送られますので、安心してご利用ください。
当社はJADMAの正会員です。同協会は法律で位置づけられた団体で、消費者の利益保護と業界の健全な発展の為に活動しています。
こちらの工事に使用しているエクステリア
![]()
リウッドデッキ S

工事費・税込
69,500円〜
商品レビュー数
27件
リウッドデッキ S(旧商品200)は木粉とポリプロピレンを混合したリウッド(再生木)でできた人工木デッキです。硬度・耐水性・耐候性・防腐朽性の高さが特徴で、水濡れやシロアリ・菌類による腐食の心配がありません。目地幅は安全性と意匠性を考慮した3mm幅設定。※束石の手配は別途。
この商品の詳細へ
無料お見積り・現場調査・ご注文もこちら
こちらの工事に使用しているエクステリア
![]()
ネスカ R 1台用 延長(ラウンドスタイル)

工事費・税込
213,200円〜
商品レビュー数
91件
ネスカ R 1台用 延長(ラウンドスタイル)は奥行の長いアーチ仕様の屋根が特徴的なカーポートです。大きいタイプのお車にも対応頂ける豊富な商品規格をご用意。ご自宅やお車に応じてお選びいただけます。標準性能は基準風速Vo=34m/s、耐積雪性能は20cm相当を確保。
この商品の詳細へ
無料お見積り・現場調査・ご注文もこちら