バイク・自転車を雨風から保護
お家の収納能力をアップ
ガレージの保全・防犯にカーポートと合わせて
お庭に機能的スペースを作り出します
防犯、お家のドレスアップはこれで決まり
ガレージ商品とコンビで高級感を演出
各取扱メーカーの会社名、ロゴ及び商品名等は各社の商標または登録商標です。
| 日 | 月 | 火 | 水 | 木 | 金 | 土 |
|---|---|---|---|---|---|---|
| 1 | 2 | 3 | 4 | 5 | 6 | |
| 7 | 8 | 9 | 10 | 11 | 12 | 13 |
| 14 | 15 | 16 | 17 | 18 | 19 | 20 |
| 21 | 22 | 23 | 24 | 25 | 26 | 27 |
| 28 | 29 | 30 | 31 |
| 日 | 月 | 火 | 水 | 木 | 金 | 土 |
|---|---|---|---|---|---|---|
| 1 | 2 | 3 | ||||
| 4 | 5 | 6 | 7 | 8 | 9 | 10 |
| 11 | 12 | 13 | 14 | 15 | 16 | 17 |
| 18 | 19 | 20 | 21 | 22 | 23 | 24 |
| 25 | 26 | 27 | 28 | 29 | 30 | 31 |
…休業日(現場調査・工事は一部対応)
![]()
【受付時間】9:30 - 17:30(営業日)
![]()
【受付時間】9:30 - 17:30(営業日)
オペレーションスタッフ
エクステリアプランナー有資格者の私たちにお任せください。
ショップ責任者
神(じん)
エクステリア プランナー
有資格者61名
1/3
木附
枡田
重富
吉澤
吉野
小東
池本
山田
佐藤
白崎
新西
伊野
次田
浅川
南
西山
小林
梨田
長谷川
藤田
阿重田
村上
植松
内田
久田
小野
平戸
中島
長石
水口
榮
山崎
清水
室谷
安田
水谷
酒井
神吉
日下部
山中
深田
田中
水田
西田
一氏
岡本
北
坂本
中嶋
岩野
伊藤
上中
高山
竹本
犬井
佐伯
谷川
原
丸山
塚田
松本
上内
島田
森
梅田
松山
山本
小林
倉地
山根
中原
河野
村上
土井
岩破
南
井上
三ツ股
小田
依藤
永禮
林
加藤
石藤
駒井
末吉
山本
芦野
樽井
野上
岡田
木村
池田
西村
藤澤
達川
奥原
那須
小西
森下
1/3
今週のPick Upページ
![]()
ご利用頂いたお客様の口コミ・レビューを「お客様の声」として掲載しております。
全てのご感想を掲載しておりますので、エクスショップの評判としてご参考ください。
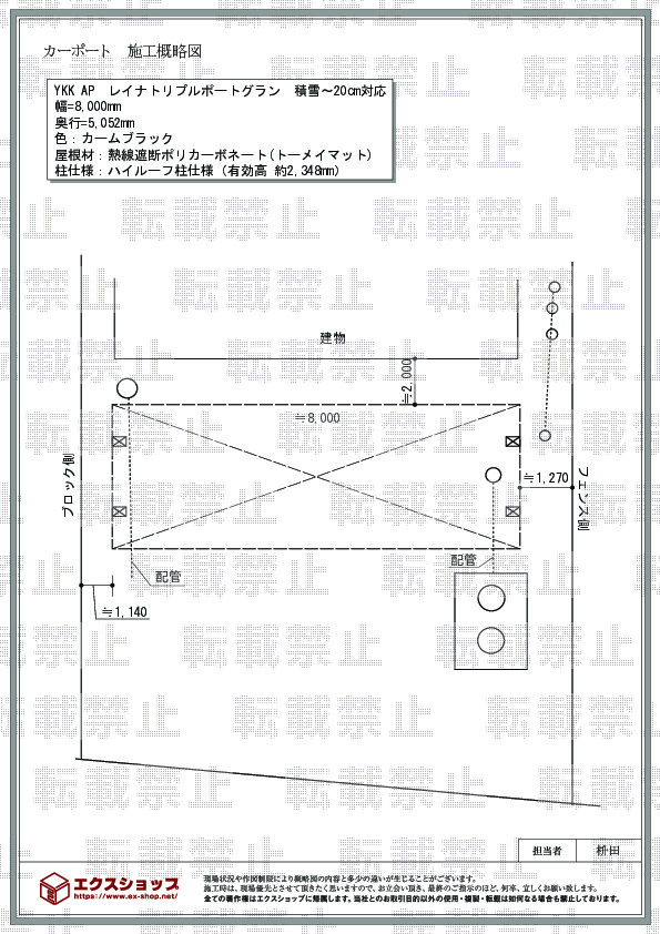
正式お見積りと一緒に提出させて頂いております「工事概略図面」もご覧頂けます。
商品や設置場所のご検討にお役立てください。
(写真No:19781311)
(カーポート)
| カラー | カームブラック |
|---|---|
| サイズ | 幅 8,000mm 奥行 5,052mm |
| 屋根高等 | ハイルーフ柱仕様(有効高 約2,348mm) |
| 屋根材等 | 熱線遮断ポリカーボネート(トーメイマット) |
| 工事方法 | 地域密着あんしん施工 |
親切丁寧な対応していただきました。
当サイトは以下のセキュリティ機能や保護認定等を備えています。安心してお申し込みください
当サイトは256ビットSSL暗号化に対応しています。入力した個人情報は暗号化して送られますので、安心してご利用ください。
当社はJADMAの正会員です。同協会は法律で位置づけられた団体で、消費者の利益保護と業界の健全な発展の為に活動しています。
こちらの工事に使用しているエクステリア
![]()
アリュース 600タイプ 3台用

工事費・税込
539,200円〜
総合平均評価(星5つ評価)
4.66
商品レビュー数
35件
アリュース 600タイプ 3台用は緩やかなアール屋根が特徴の4本柱仕様の大型カーポートです。基準風速Vo=34m/s・耐積雪性能20cmの性能を持ち、車3台の並列駐車ができる他、車2台+アプローチとしても使用可能です。サイドパネル・物干しのオプションもご用意。
この商品の詳細へ
無料お見積り・現場調査・ご注文もこちら
この商品のレビュー
商品レビュー35件

鹿児島県 いちき串木野市 N.T.様
想像以上に、しっかりした造り、早い工事です。

福岡県 福岡市 O.T.様
実物みても、大きく綺麗で、とてもよかったです。価格帯も他の商品よりも安い割に良いと思いました。

和歌山県 海南市 Y.Y.様
玄関が少し高いので、カーポートの屋根も少し高くなってしまいました。友人には「えらい屋根が高いね」と言われましたが、玄関に立つと良い状態なので問題はありません。 施工も見積もり時の時通りになっていますので、満足です。

愛知県 名古屋市 H.Y.様
とても満足している。雨に濡れなくなったのでとても便利になった。愛車の黄砂やほこりが乗って、駐車場に車を停めてるだけでも、よこれていっていたのが、気にしなくてよくなった。 朝霜が車につかないので、朝の出発が快適になった。

大阪府 大東市 S.T.様
屋根がクリアマットですがかなりブルーにみえるのが少しイメージと違いましたが他はよかった

愛知県 名古屋市 F.M.様
サイズが我が家の駐車場にぴったりでした。イメージ通りに仕上がりました。

奈良県 奈良市 N.S.様
実物は迫力があり開放感もありやはり3台用にして良かったです。

群馬県 桐生市 O.H.様
今の時期は早朝出勤時の霜取りが大変でしたがそれもなくなり、雨でも濡れずに車に乗り込め、荷物も濡れずとても快適になりました。メールでのやり取りも親切且つスムーズでした。

愛知県 北名古屋市 S.H.様
庶民的な感じですが、支柱も屋根のカラーも明るくしたので暗くならず良かった

福岡県 北九州市 H.K.様
大きさ・色・明るさなどイメージどおりでした。

宮城県 柴田郡柴田町 Y.D.様
友人から家自体にも箔が付き、物凄く格好良いと言われました。

千葉県 流山市 T.T.様
過度に日差しを遮ることなく玄関前の明るさを維持できた事に満足しています。
関連するお客様の声

5つ星のうち5
和歌山県Y.Y. 様回答日:2025年1月
設置場所の都合から、3台の車用のカーポートを探していました。他社では軽く100万円を超えていたのが、エクスショップさんでは半額くらいの価格だったのでお願いしました。車から降りて家に入る際、雨でも濡れなくなったのがありがたいです。また、家に入る際にも、前もって傘をたためて濡れなくなったのもありがたいです。

5つ星のうち5
群馬県O.H. 様回答日:2024年12月
近年の雹害等の予防の為、カーポートを建てたいと思いネット検索をしていたら、たまたま目に留まったのがエクスショップさんでした。今の時期は早朝出勤時の霜取りが大変でしたがそれもなくなり、雨でも濡れずに車に乗り込めるのでとても快適になりました。メールでのやり取りも親切且つスムーズでした。

5つ星のうち5
福岡県W.N. 様回答日:2024年9月
きっかけはネットでの広告でした。最初は半信半疑でしたが、実際に見積依頼をおこない現地に来られた施工業者の方が誠実な方だったので安心しました。また商品に不安がありましたがOEMと聞いて納得感が出て、お客様の声を見ていても悪い評判も無く数も多かったので注文に至りました。

5つ星のうち4
埼玉県K.T. 様回答日:2023年12月
三男夫婦が私達夫婦が住んでいる同じ敷地内に家を建てたためと、キャンピングカーを購入したため、車の置き場所が必要になり、カーポートを探していた。このカーポートを設置して、全員の車の置き場所ができた。また、物干しがカーポートの支柱につけられ、多少の雨で洗濯物が濡れなくなった。

5つ星のうち5
広島県H.T. 様回答日:2023年7月
様々なオプションが大変魅力的でした。施工後は、大雨が続き設置して良かったです。直射日光を遮ってくれるので車に乗ってすぐにハンドルに手で触れるようになりました。また、直射日光の下では洗車は良くないのですが、これで天気を気にせずいつでも洗うことができるのが一番嬉しいことです。

5つ星のうち5
愛知県A.M. 様回答日:2025年9月
ずっとカーポートが付けたかったけど、どうしてもいるものではなかったので後回しになっていた。年々猛暑が続いていた事がきっかけです。暑い日に乗った最初の車内の温度が低く感じられて、つけて良かったと思った。小雨の時の車の汚れが防げるといいなと思っています。

5つ星のうち5
静岡県G.M. 様回答日:2025年4月
昨年購入した車両は高さが2,250mmあり構造的にルーフには乗れず、洗車がとても大変で苦労していました。現在3連のカーポートはありますが高さが2,400mmの所があり納まりません。高さがクリアーできるカーポートを探した所エクスショップに辿り着きました。価格、保証等説明を聞き、クチコミにも後押しされ決めさせて頂きました。現地調査も準則にして頂き設置も近くの業者様により、2日で完了しました。設置後雨が降りましたが、車両が濡れないため雨垂れ等無くとても満足しております。また機会がありましたらその際は是非お願いしたいと思います。大変有り難う御座いました。

5つ星のうち5
長野県N.Y. 様回答日:2025年4月
友人の話を聞いて購入を考えました。初めてのマイホームということもあり、また積雪も多い地域であったことから、カーポートをつけたいと考えていました。今回購入したことで車に積もった雪を降ろすことなく快適に乗車できそうなので大変助かります。購入してよかったです。ありがとうございました。
関連するブログ記事
関連するよくあるご質問
カーポートの設置と一緒に土間コンクリートを打設できますか?
【商品カテゴリ >カーポート】(ご質問No.707)
既存のカーポート屋根材の張り替えの依頼はできますか?
【商品カテゴリ >カーポート】(ご質問No.21)
以前購入したカーポートの部品のみを追加で購入する事は可能ですか?
【商品カテゴリ >カーポート】(ご質問No.48)
ワイドタイプのカーポートですが、横幅の切り詰めは可能ですか?
【商品カテゴリ >カーポート】(ご質問No.69)
カーポートって何ですか?
【商品カテゴリ >カーポート】(ご質問No.28910)
既存のカーポートの柱の高さを桁上げする事は可能ですか?
【商品カテゴリ >カーポート】(ご質問No.43)
既存のカーポートをいったん解体し、再度組み立てることは可能ですか?
【商品カテゴリ >カーポート】(ご質問No.46)
四国化成のFリードカーポート収納庫付きタイプは取り扱ってますか?
【商品カテゴリ >カーポート】(ご質問No.74)
既存カーポートの支柱を流用して、増設、縦列2台用のカーポートを設置することは可能ですか?
【商品カテゴリ >カーポート】(ご質問No.84)
四国化成のマイポートneoの取り扱いはありますか?
【商品カテゴリ >カーポート】(ご質問No.88)


















