ガレージの保全・防犯にカーポートと合わせて
防犯、お家のドレスアップはこれで決まり
快適なガレージには必須
お家の収納能力をアップ
日光、雨・風を防ぎバルコニーを快適に
門には必須のアイテム
各取扱メーカーの会社名、ロゴ及び商品名等は各社の商標または登録商標です。
| 日 | 月 | 火 | 水 | 木 | 金 | 土 |
|---|---|---|---|---|---|---|
| 1 | 2 | 3 | 4 | 5 | 6 | 7 |
| 8 | 9 | 10 | 11 | 12 | 13 | 14 |
| 15 | 16 | 17 | 18 | 19 | 20 | 21 |
| 22 | 23 | 24 | 25 | 26 | 27 | 28 |
| 日 | 月 | 火 | 水 | 木 | 金 | 土 |
|---|---|---|---|---|---|---|
| 1 | 2 | 3 | 4 | 5 | 6 | 7 |
| 8 | 9 | 10 | 11 | 12 | 13 | 14 |
| 15 | 16 | 17 | 18 | 19 | 20 | 21 |
| 22 | 23 | 24 | 25 | 26 | 27 | 28 |
| 29 | 30 | 31 |
…休業日(現場調査・工事は一部対応)
![]()
【受付時間】9:30 - 17:30(営業日)
![]()
【受付時間】9:30 - 17:30(営業日)
オペレーションスタッフ
エクステリアプランナー有資格者の私たちにお任せください。
ショップ責任者
神(じん)
エクステリア プランナー
有資格者61名
1/3
木附
枡田
重富
吉澤
吉野
小東
池本
山田
佐藤
白崎
新西
伊野
次田
南
西山
小林
阿重田
梨田
長谷川
藤田
村上
平戸
植松
内田
久田
中島
長石
水口
榮
山崎
清水
室谷
安田
水谷
小野
酒井
一氏
神吉
日下部
山中
深田
田中
水田
西田
岡本
丸山
北
坂本
中嶋
岩野
伊藤
上中
高山
原
犬井
佐伯
谷川
塚田
松本
小林
森下
上内
島田
森
梅田
松山
山本
小西
倉地
山根
中原
河野
村上
土井
岩破
南
井上
三ツ股
小田
依藤
永禮
林
加藤
石藤
駒井
末吉
山本
芦野
樽井
野上
岡田
木村
池田
西村
藤澤
達川
奥原
那須
1/3
今週のPick Upページ
![]()
ご利用頂いたお客様の口コミ・レビューを「お客様の声」として掲載しております。
全てのご感想を掲載しておりますので、エクスショップの評判としてご参考ください。
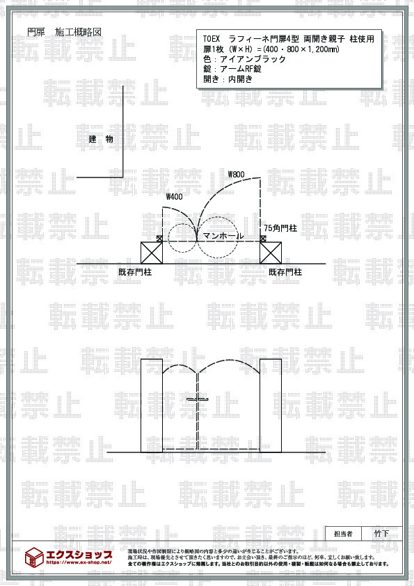
正式お見積りと一緒に提出させて頂いております「工事概略図面」もご覧頂けます。
商品や設置場所のご検討にお役立てください。
(写真No:20608222)
メールでの対応が早くて図面もきちんと作成されていたので信用出来ると思いました。
この度は、門扉の施工をご依頼頂きまして、誠に有り難うございます。柔らかな曲線が醸し出すエレガントな雰囲気が、お住まいにとてもよく調和してございますね。インターネットでのお取引となりますが、『信用出来る』とのお言葉を頂き、何よりも嬉しく存じます。これからも、お客様の笑顔の為に、日々努力して参りたいと存じますので、また、機会がございましたら、是非エクスショップをご利用頂けますよう、宜しくお願い致します。
当サイトは以下のセキュリティ機能や保護認定等を備えています。安心してお申し込みください
当サイトはSSL暗号化に対応しています。入力した個人情報は暗号化して送られますので、安心してご利用ください。
当社はJADMAの正会員です。同協会は法律で位置づけられた団体で、消費者の利益保護と業界の健全な発展の為に活動しています。
こちらの工事に使用しているエクステリア
![]()
ラフィーネ門扉4型 両開き親子

工事費・税込
129,600円〜
総合平均評価(星5つ評価)
5
商品レビュー数
3件
2013年3月1日新発売!!アールトップが柔らかな印象を与える4型。すっきりとしたデザインから演出される雰囲気が邸宅をエレガントに演出します。新鋳物門扉シリーズのラフィーネ登場です。親子開きタイプの子扉は落とし棒で固定されています。
この商品の詳細へ
無料お見積り・現場調査・ご注文もこちら
関連するブログ記事
関連するよくあるご質問
門扉って何ですか?
【商品カテゴリ >門扉】(ご質問No.28916)
ブロック塀に直接取り付けられる門扉の取り扱いはありますか?
【商品カテゴリ >門扉】(ご質問No.30)
門扉の開口寸法は、両側の柱を入れるとどれくらいになりますか?
【商品カテゴリ >門扉】(ご質問No.31)
なるべく小さい幅の門扉を検討しています。最小の幅を教えてください。
【商品カテゴリ >門扉】(ご質問No.91)
ゴミ置場用の扉を探してますが取り扱いはありますか?
【商品カテゴリ >門扉】(ご質問No.164)
四国化成 ブルーム門戸2型 3枚折り扉の購入・施工は可能ですか?
【商品カテゴリ >門扉】(ご質問No.195)
新日軽マイアミ門扉の取り扱いはありますか?
【商品カテゴリ >門扉】(ご質問No.364)
幅が狭いのですが、門扉を付けていただくことはできますか?
【商品カテゴリ >門扉】(ご質問No.413)
設置した門扉のシリンダーが壊れてしまい、門扉を新しくしたいのですが、支柱をそのまま利用して付け替えできますか。
【商品カテゴリ >門扉】(ご質問No.461)
YKKAP スタンダード門扉1型 片開きかの商品のみの購入希望です。納期を知りたいのですが、発注してからどれくらいで届きますでしょうか。
【商品カテゴリ >門扉】(ご質問No.467)



















