各取扱メーカーの会社名、ロゴ及び商品名等は各社の商標または登録商標です。
| 日 | 月 | 火 | 水 | 木 | 金 | 土 |
|---|---|---|---|---|---|---|
| 1 | 2 | 3 | 4 | 5 | 6 | |
| 7 | 8 | 9 | 10 | 11 | 12 | 13 |
| 14 | 15 | 16 | 17 | 18 | 19 | 20 |
| 21 | 22 | 23 | 24 | 25 | 26 | 27 |
| 28 | 29 | 30 | 31 |
| 日 | 月 | 火 | 水 | 木 | 金 | 土 |
|---|---|---|---|---|---|---|
| 1 | 2 | 3 | ||||
| 4 | 5 | 6 | 7 | 8 | 9 | 10 |
| 11 | 12 | 13 | 14 | 15 | 16 | 17 |
| 18 | 19 | 20 | 21 | 22 | 23 | 24 |
| 25 | 26 | 27 | 28 | 29 | 30 | 31 |
…休業日(現場調査・工事は一部対応)
![]()
【受付時間】9:30 - 17:30(営業日)
![]()
【受付時間】9:30 - 17:30(営業日)
オペレーションスタッフ
エクステリアプランナー有資格者の私たちにお任せください。
ショップ責任者
神(じん)
エクステリア プランナー
有資格者61名
1/3
木附
枡田
重富
吉澤
吉野
小東
池本
山田
佐藤
白崎
新西
伊野
次田
浅川
南
西山
小林
梨田
長谷川
藤田
阿重田
村上
植松
内田
久田
小野
平戸
中島
長石
水口
榮
山崎
清水
室谷
安田
水谷
酒井
神吉
日下部
山中
深田
田中
水田
西田
一氏
岡本
北
坂本
中嶋
岩野
伊藤
上中
高山
竹本
犬井
佐伯
谷川
原
丸山
塚田
松本
上内
島田
森
梅田
松山
山本
小林
倉地
山根
中原
河野
村上
土井
岩破
南
井上
三ツ股
小田
依藤
永禮
林
加藤
石藤
駒井
末吉
山本
芦野
樽井
野上
岡田
木村
池田
西村
藤澤
達川
奥原
那須
小西
森下
1/3
今週のPick Upページ
![]()
ご利用頂いたお客様の口コミ・レビューを「お客様の声」として掲載しております。
全てのご感想を掲載しておりますので、エクスショップの評判としてご参考ください。
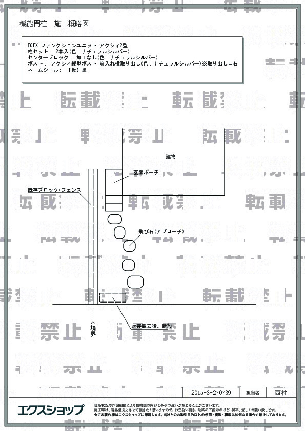
正式お見積りと一緒に提出させて頂いております「工事概略図面」もご覧頂けます。
商品や設置場所のご検討にお役立てください。
(写真No:27073923)
丁寧な対応(現場)で、安心できた。電話対応は、後ろでやかましかった(笑い声が聞こえた)ので、若干嫌な感じがした。
シンプルな ファンクションユニット アクシィ2型が、主張し過ぎることなくスッキリとお住まいに溶け込んでおりますね。コンパクトながら表札・インターフォン・ポストと多くの機能性を備えた機能門柱は、とても頼もしいですね。お電話での対応時に失礼がございましたこと、誠に申し訳ございませんでした。今後は顔の見えないお取引の中でお客様にご安心頂ける対応が出来ますよう、配慮ある対応を心掛けて参る所存でございます。今後ともエクスショップサービスを末永くご愛顧下さいますよう、宜しくお願い致します。
当サイトは以下のセキュリティ機能や保護認定等を備えています。安心してお申し込みください
当サイトは256ビットSSL暗号化に対応しています。入力した個人情報は暗号化して送られますので、安心してご利用ください。
当社はJADMAの正会員です。同協会は法律で位置づけられた団体で、消費者の利益保護と業界の健全な発展の為に活動しています。
こちらの工事に使用しているエクステリア
![]()
ファンクションユニット ウィルモダン #01

工事費・税込
205,300円〜
総合平均評価(星5つ評価)
4.64
商品レビュー数
10件
ガラス、ステンレス、アクリル、アルミ…徹底的に素材にこだわった「ファンクションユニット ウィルモダン」。質感が主張するさりげない存在感が、住まいを美しく引き立て、光るフレームによる今までにないライティングで、夜の表情も演出。
この商品の詳細へ
無料お見積り・現場調査・ご注文もこちら
この商品のレビュー
商品レビュー10件

愛知県 稲沢市 B.H.様
シンプルで無駄がない。夜間自動照明もよい。

兵庫県 神戸市 S.I.様
リビングの床の色とデッキの色を合わせたので部屋が広く感じるようになりました。テラス+デッキのセット商品を購入させていただきましたが、質感、使い心地も良く満足しています。

東京都 町田市 S.Y.様
うーん 土間の補修がいまいちかな もっと金ゴテでしっかり押さえ 継ぎ目なくしたかったかな まあ よかったけど

大阪府 箕面市 T.M.様
既存の玄関フェンスと柱の色も合わせていただき、屋根の色も暗くなりすぎず、遮熱効果的もあるそうで良かったです

愛知県 日進市 Y.T.様
思った通りで良かったです。 また機会あればお願いしたいです。

京都府 木津川市 N.K.様
デザイン(袖壁一体型)色(シャイングレー)屋根材(ブルースモーク)が自宅とマッチしていたのが非常に有りがたく嬉しく感じました。当初、屋根材は熱線吸収タイプを検討していましたが暗くなり過ぎると考えブルースモークに変更し大正解でした。

静岡県 焼津市 K.R.様
一番オーソドックスなカーポートですが使い勝手も良く気に入っています。 それとカラーバリエーションも多く うちの場合はどうしてもホワイトがよかったのですが他のモデルにはホワイトの設定がなかったのでこれにしました。 家族や友人からの評判も良く 当方自身もとても気に入っています。

大阪府 堺市 T.S.様
思ってたよりもスリムで、見た目もシンプルでした。場所を取らないのが一番です。
関連するお客様の声

5つ星のうち5
兵庫県S.I. 様回答日:2017年4月
リフォームをきっかけに劣化が進んだ門柱を取り替えたいと思っていたこと、老後のことを考えて、一階の裏庭に物干しを兼ねてテラスとデッキの設置を考えていたことから今回の商品を購入させていただきました。門柱の取替え前と比べてスッキリしましたし、今まであまり活用していなかった裏庭もデッキを設置して活用の幅が広がると思っています。

5つ星のうち5
静岡県K.R. 様回答日:2015年7月
南向きの家で日当たりは良いのですが暑い時には逃げ場がないといった理由と車も雨日差しから確実に守られるので購入を考えました。最近はずっと雨なので雨の時の車の乗り降り等とても重宝しています。機能門柱もそこそこの容量がありオークションで買った商品も収まるサイズで助かります。

5つ星のうち4
大阪府N.I. 様回答日:2013年5月
インターネットでの発注に最初は不安もありましたが、こちらの質問に丁寧に答えていただき、見積もりから現場調査、工事までスムーズに行っていただきました。施工業者さんも丁寧に作業していただきました。こちらの説明不足でご迷惑をおかけしましたが、対応も早く感謝しています。機会がありましたら、またお願いしたいと思います。

5つ星のうち5
東京都Y.K. 様回答日:2013年4月
今回、カーポートと門柱をお願いしました。打ち合わせや電話での対応も素早く対応してもらい助かりました。工事に関わった職人さんたちの対応もよく、こちらの質問にもわかりやすく丁寧に答えてもらい安心して工事をお願いすることができました。今後エクステリアの工事を検討するときはぜひお願いしたいと思っております。

5つ星のうち5
東京都T.M. 様回答日:2013年2月
メールだけでは不安でしたので、担当の方に何度か電話で質問させていただきましたが、しっかり対応してくださいました。施工業者さんも細やかなとても感じのいい方で、丁寧に施工していただけて満足しております。工事日を土曜と月曜の2日間予定しておりましたが、土曜に完成してしまい、月曜はポストを固定していたものを回収するだけになっておりましたので、大変助かりました。

5つ星のうち5
千葉県S.T. 様回答日:2024年9月
購入に関しては施工業者との打ち合わせや話相談により決めました。色々アドバイスもいただき良い買い物が出来たと思います。まだ施工して頂いたばかりなので快適とかの詳細は言えませんが駐車スペースにカーポートを設置したことにより変な言い方ですが理想的な家になった感じです。又多少の無理ごり値引きにも受けていただき感謝しております。

5つ星のうち5
福岡県I.T. 様回答日:2024年5月
前回の車庫と同様、購入については金額も満足しています。ポストの種類、色、扉の開閉について等相談しましたが、担当の方を決めていただいたことで、打ち合わせもスムーズに出来ました。今回は郵便ポストと宅配BOXを設置したことで大変満足しています。有難うございました。
関連するブログ記事
関連するよくあるご質問
ホームページに出ている例以外の組み合わせで見積は可能でしょうか?
【商品カテゴリ >ポスト・門柱・宅配ボックス】(ご質問No.734)
機能門柱って何ですか?
【商品カテゴリ >ポスト・門柱・宅配ボックス】(ご質問No.28920)
機能門柱のオプション(インターホン)等は有料ですか?
【商品カテゴリ >ポスト・門柱・宅配ボックス】(ご質問No.62)
三協立山アルミの機能門柱ジアル3型の取り扱いはありますか?
【商品カテゴリ >ポスト・門柱・宅配ボックス】(ご質問No.156)
自分で別途用意した宅配ボックスを使用して、施工のみお願いする事は可能ですか?
【商品カテゴリ >ポスト・門柱・宅配ボックス】(ご質問No.265)
ユニソンのモダンポストの取り扱いはありますか?
【商品カテゴリ >ポスト・門柱・宅配ボックス】(ご質問No.694)
見積りの価格にインターホン本体の金額は含まれますか?
【商品カテゴリ >ポスト・門柱・宅配ボックス】(ご質問No.732)
電気配線工事は対応可能でしょうか?
【商品カテゴリ >ポスト・門柱・宅配ボックス】(ご質問No.733)
自宅玄関外側のポストについて問い合わせ申し上げます。
当方の郵便ポストは、植込みの土に埋まった感じでポールが立てられており(ステンレス製ポール)、その上に横長のかなり大きなポストが(ステンレス製)金具で取り付けられておりました。
が、昨年より、度重なる豪雨や降雪により、なんどかポスト部分が外れてしまい、瞬間接着剤にて応急処置を行っておりました。
先日、またもやポストが外れてしまい、どうやらポスト全体を取り換えた方が良さそうだということになりました。
そこで、ネット通販などでポスト自体は購入できるのですが、やはり、ポール自体は土中に埋まっており、自力では取り外せないため、業者さんにお願いしたいと思いまして、ご連絡差し上げました。
ポール自体を生かして、上部に横長でない、安定感のあるポストをお取付いただくか、または、ポール自体を撤去してもらい、玄関壁に薄型ポストを取り付けていただくか、どちらの方法でも結構です。
一度ご相談を頂きたく、ご連絡をお待ちしております。
【商品カテゴリ >ポスト・門柱・宅配ボックス】(ご質問No.931)
2世帯用の機能ポールを検討しています。
以下の2つの見積もりをお願いいたします。
@TOEX スクリーンファンクションユニット プログコートタイプ 2世帯仕様 Bタイプ (こちらは2本セットですよね?)
A三協立山アルミ 機能ポール モデア (こちらは2世帯仕様がないため、2本を横付けに)
@もAもインターホンは取り付けません。
上記の見積もりをお願いいたします。
表札についても伺います。
上記は、どちらとも表札は付属のネームシールでの取り付けですね?シールではなく、いわゆる表札を取り付けることも可能なのでしょうか?その場合は、どのようなタイプが可能かも教えてください。
【商品カテゴリ >ポスト・門柱・宅配ボックス】(ご質問No.1055)



















