都道府県で探す
商品タイプで探す
快適なガレージには必須
玄関周りは、まずここから
お庭に憩いのスペースを作り出します
お家の収納能力をアップ
お庭に機能的スペースを作り出します
ガレージの保全・防犯にカーポートと合わせて
各取扱メーカーの会社名、ロゴ及び商品名等は各社の商標または登録商標です。
| 日 | 月 | 火 | 水 | 木 | 金 | 土 |
|---|---|---|---|---|---|---|
| 1 | ||||||
| 2 | 3 | 4 | 5 | 6 | 7 | 8 |
| 9 | 10 | 11 | 12 | 13 | 14 | 15 |
| 16 | 17 | 18 | 19 | 20 | 21 | 22 |
| 23 | 24 | 25 | 26 | 27 | 28 | 29 |
| 30 |
| 日 | 月 | 火 | 水 | 木 | 金 | 土 |
|---|---|---|---|---|---|---|
| 1 | 2 | 3 | 4 | 5 | 6 | |
| 7 | 8 | 9 | 10 | 11 | 12 | 13 |
| 14 | 15 | 16 | 17 | 18 | 19 | 20 |
| 21 | 22 | 23 | 24 | 25 | 26 | 27 |
| 28 | 29 | 30 | 31 |
…休業日(現場調査・工事は一部対応)
![]()
【受付時間】9:30 - 17:30(営業日)
![]()
【受付時間】9:30 - 17:30(営業日)
オペレーションスタッフ
エクステリアプランナー有資格者の私たちにお任せください。
ショップ責任者
神(じん)
エクステリア プランナー
有資格者61名
1/3
木附
枡田
重富
吉澤
吉野
小東
池本
山田
佐藤
白崎
新西
伊野
次田
浅川
南
西山
小林
梨田
長谷川
藤田
阿重田
村上
植松
内田
久田
小野
平戸
中島
長石
水口
榮
山崎
清水
室谷
安田
水谷
酒井
神吉
日下部
山中
深田
田中
水田
西田
一氏
岡本
北
坂本
中嶋
岩野
伊藤
上中
高山
竹本
犬井
佐伯
谷川
原
丸山
塚田
松本
上内
島田
森
梅田
松山
山本
小林
倉地
山根
中原
河野
村上
土井
岩破
南
井上
三ツ股
小田
依藤
永禮
林
加藤
石藤
駒井
末吉
山本
芦野
樽井
野上
岡田
木村
池田
西村
藤澤
達川
奥原
那須
小西
森下
1/3
今週のPick Upページ
![]()
ご利用頂いたお客様の口コミ・レビューを「お客様の声」として掲載しております。
全てのご感想を掲載しておりますので、エクスショップの評判としてご参考ください。
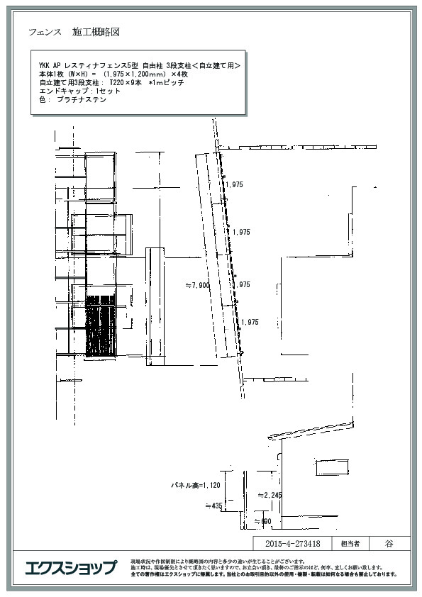
正式お見積りと一緒に提出させて頂いております「工事概略図面」もご覧頂けます。
商品や設置場所のご検討にお役立てください。
(写真No:27341824)
(フェンス・柵・塀)
| カラー | プラチナステン |
|---|---|
| サイズ | 幅 1,975mm 高さ 1,200mm |
| 工事方法 | 地域密着あんしん施工 |
このたびは目隠しフェンスの設置ありがとうございました。率直な感想としては、フェンス自体にはとても満足しています。工事業者の方も最後まで丁寧に作業をされていました。(最後の片づけ及び掃除に至るまで)思っていた以上に価格も高かったのですがエクスショップ -エクステリアに頼んでよかったと思います。ただ申し込みをしてから施工に至るまで少し時間がかかっていたのが少し不満がありました。
レスティナフェンス5型の施工をご依頼頂きまして、誠に有り難うございます。適度な高さがあり、外部からの視線を完全に遮るフェンスですが、プラチナステンのお色が上品で、圧迫感を感じさせないお仕上がりでございますね。ご家族皆様のプライバシーをお守りすることが出来、より快適にお過ごし頂けるものと存じます。今後は、丁寧な対応とともに、スピードの面でもご満足頂けますよう、努力して参りたいと存じます。また機会がございましたら、是非エクスショップにご用命頂きますよう宜しくお願い致します。
当サイトは以下のセキュリティ機能や保護認定等を備えています。安心してお申し込みください
当サイトは256ビットSSL暗号化に対応しています。入力した個人情報は暗号化して送られますので、安心してご利用ください。
当社はJADMAの正会員です。同協会は法律で位置づけられた団体で、消費者の利益保護と業界の健全な発展の為に活動しています。
こちらの工事に使用しているエクステリア
![]()
シンプレオ フェンスYL1M型 横ルーバー(間仕切柱施工タイプ)

工事費・税込
87,600円〜
総合平均評価(星5つ評価)
1
商品レビュー数
1件
シンプレオ フェンスYL1M型 横ルーバー(間仕切柱施工タイプ)は目隠し率100%の完全目隠しフェンスです。通風率が6%となり、微風を取り込むことができます。高さは1000mm/1200mmから選択可能で、カラーバリエーションはプラチナステンやブラウンなど全5色です。
この商品の詳細へ
無料お見積り・現場調査・ご注文もこちら
関連するお客様の声

5つ星のうち5
神奈川県A.N. 様回答日:2012年7月
商品が決まらず時間ばかりかけてしまいましたが、最後まで丁寧に対応していただきました。施工を担当して頂いた職人さんも最後の仕上げをこれでもか!!と思うくらい丁寧に仕上げて頂き、大変満足しました。

5つ星のうち4
熊本県H.Y. 様回答日:2021年4月
設置前と比べてずいぶん綺麗なお庭になり、とても快適になりました。全体的な感想としては、ネットで商品を選ぶというところが難しかったです。木の質感にこだわり納得いかなくて品物を変えていっていたのですが、最後の方はエクスショップさんの対応は丁寧ではないな、と感じられました。対面接客ではないのでそれが原因でしょうか。残念ながら現物は、一部納得いくものではありませんでした。これも、最後は自分で決めるのでやはり納得いくまで聞くべきでした。しかし、現場の方は親切、丁寧、最後まで細かい要望を聞いて頂き納得のいく工事がでしました。とても感謝しております。工事が気持ち良くでき、最後は気持ち良く終わりました。とても沢山の知識をお持ちの工事店様でした。ありがとうございます。

5つ星のうち5
新潟県F.K. 様回答日:2019年3月
窓が大きいので目隠しフェンスを設置したいと思っていました。見た目と価格で担当の方と相談して決めました。思っていた以上に良かったので本当に満足しています。

5つ星のうち5
新潟県F.K. 様回答日:2019年3月
窓が大きいので目隠しフェンスを設置したいと思っていました。見た目と価格で担当の方と相談して決めました。思っていた以上に良かったので本当に満足しています。

5つ星のうち5
宮城県S.S. 様回答日:2014年1月
何度もプラン変更や見積もりの修正をしていただきましたが、快く引き受けて頂きました。冬場で寒い中での作業でしたが、最後まで丁寧に施工していただきました。職人の方々の対応も良かったです。フェンスをどの種類にするか最後まで悩んでいましたが、こちらにしてよかったです。また機会がありましたらお願いしようと思います。

5つ星のうち5
埼玉県A.T. 様回答日:2022年2月
目隠しとしてフェンスを設置したいと考えていたところ、ネットでエクスショップを知った。現地調査に何回も来てもらったし、工事当日も説明等を丁寧にしてもらえた。フェンス自体にも満足している。

5つ星のうち5
兵庫県A.Y. 様回答日:2012年5月
フェンス工事・花壇部を土間コンクリにしていただきました。お値段も高くなく作業をしていただいた各担当者も最後まで丁寧に作業をしていただき、掃除までしていただきました。ありがとうございました。またフェンスを検討しておりますのでその時はまたお願いします。

5つ星のうち5
京都府S.T. 様回答日:2012年6月
近隣との境のフェンス工事お値段も高くなく作業をしていただいた各担当者も最後まで丁寧に作業をしていただき、ありがとうございました。

5つ星のうち4
石川県N.Y. 様回答日:2013年8月
インターネットとうことで不安でしたが、地元業者施工ということで、工事自体は見劣りすることはありませんでした。ただ、地元業者がフェンス自体の歪みに気づき取り換え工事をしたのはありがたいですが、一部取り替えたフェンスのつなぎ目が曲がって取り付けてあるのが不満です。最後に確認完了見分時に修正してもらう予定でしたが、無くそのままです。修正お願いします。

5つ星のうち4
兵庫県I.K. 様回答日:2020年3月
インターネットで施工費用について調べていて貴社の存在を知り、依頼しました。通学路になっている道路に面するブロック塀だったので、高槻の事故のこともあり気になっていたのでフェンス塀に作り替えることにしました。電話やメールでの問い合わせにも的確に回答いただき、安心して任せられました。

5つ星のうち5
千葉県S.T. 様回答日:2018年4月
設置前の説明も充分にしていただき、施工に関する提案も納得のいくものでした。目隠し効果が高く、臨家駐車場の動きも気にならなくなりました。最近は強風が多いのでこうした面積の大きなフェンスはしっかりとした施工が大切だと思います。今後、門扉の交換も考えていますのでまたお願いしたいと思います。

5つ星のうち5
愛媛県O.T. 様回答日:2017年12月
台風で、これまでの木塀が崩壊したので、今回アルミのフェンスを設置することにしました。見た目も上品で頑丈そうで満足しています。カーポートについては、以前から欲しかったのですがきっかけがなく、今回フェンスと併せてお願いすることにしました。雨に濡れる心配がなく快適です。

5つ星のうち5
千葉県O.K. 様回答日:2017年12月
新居が完成し住み始めてみると周りの家から丸見えで落ち着かないので、フェンスを取り付ける事にしました。既存のブロックの上に付けて貰えたので、費用も抑えることが出来ました。視線を気にせず、のびのびと生活出来る様に成り大満足です。また、一緒に物置小屋も設置して頂き、便利に使用しております。

5つ星のうち5
香川県T.Y. 様回答日:2015年12月
注文してから工事が完了するまでの対応がとても丁寧で、かつ、迅速でした。たくさんの商品の中から、こちらか要望するデザインと予算に見合った商品を提供していただきました。また、施工前後の対応も良く、たまたまちょっとした不具合があったのですが、とても快く対応して頂き、大変満足しています。
関連するブログ記事










関連するよくあるご質問
フェンスについての質問なのですが、 見積もりでは3枚からの注文となっていますが、2枚以下の注文は可能ですか?
【商品カテゴリ >フェンス・柵・塀】(ご質問No.28909)
フェンスの一枚あたりの価格に柱の価格も含まれていますか?
【商品カテゴリ >フェンス・柵・塀】(ご質問No.3)
高さが1000mm以上のフェンスの取り扱いはありますか?
【商品カテゴリ >フェンス・柵・塀】(ご質問No.81)
フェンスって何ですか?
【商品カテゴリ >フェンス・柵・塀】(ご質問No.28913)
現在庭にフェンスがありますが、全体的に位置をずらしたいと思っています。フェンスは既存のものを使用します。このような工事はできませんか?
【商品カテゴリ >フェンス・柵・塀】(ご質問No.8)
隣家のフェンスに車をぶつけてしまい、フェンスの一部を曲げてしまいました。修理をしたいと考えています。対応可能ですか?
【商品カテゴリ >フェンス・柵・塀】(ご質問No.9)
現在、アルミのメッシュフェンスが付いているのですが、そのフェンスの上に目隠しタイプのフェンスを取り付ける事は可能ですか?
【商品カテゴリ >フェンス・柵・塀】(ご質問No.27)
屋外用で可動式フェンスの取り扱いはありますか?
【商品カテゴリ >フェンス・柵・塀】(ご質問No.54)
TOEXのGスクリーンの取り扱いはありますか?
【商品カテゴリ >フェンス・柵・塀】(ご質問No.92)
三協立山アルミのララスクリーンの取り扱いはありますか?
【商品カテゴリ >フェンス・柵・塀】(ご質問No.113)


















