都道府県で探す
バイク・自転車を雨風から保護
お家の収納能力をアップ
ガレージの保全・防犯にカーポートと合わせて
お庭に機能的スペースを作り出します
防犯、お家のドレスアップはこれで決まり
ガレージ商品とコンビで高級感を演出
各取扱メーカーの会社名、ロゴ及び商品名等は各社の商標または登録商標です。
日 | 月 | 火 | 水 | 木 | 金 | 土 |
---|---|---|---|---|---|---|
1 | 2 | 3 | 4 | |||
5 | 6 | 7 | 8 | 9 | 10 | 11 |
12 | 13 | 14 | 15 | 16 | 17 | 18 |
19 | 20 | 21 | 22 | 23 | 24 | 25 |
26 | 27 | 28 | 29 | 30 | 31 |
日 | 月 | 火 | 水 | 木 | 金 | 土 |
---|---|---|---|---|---|---|
1 | ||||||
2 | 3 | 4 | 5 | 6 | 7 | 8 |
9 | 10 | 11 | 12 | 13 | 14 | 15 |
16 | 17 | 18 | 19 | 20 | 21 | 22 |
23 | 24 | 25 | 26 | 27 | 28 | 29 |
30 |
…休業日(現場調査・工事は一部対応)
【受付時間】9:30 - 17:30(営業日)
【受付時間】9:30 - 17:30(営業日)
オペレーションスタッフ
エクステリアプランナー有資格者の私たちにお任せください。
ショップ責任者
神(じん)
エクステリア プランナー
有資格者61名
1/3
木附
枡田
重富
吉澤
吉野
小東
池本
山田
佐藤
白崎
新西
伊野
次田
浅川
南
西山
小林
梨田
長谷川
藤田
阿重田
村上
植松
内田
久田
小野
平戸
中島
長石
水口
榮
山崎
清水
室谷
安田
水谷
酒井
神吉
日下部
山中
深田
田中
板持
西田
一氏
水田
岡本
坂本
中嶋
岩野
伊藤
上中
高山
竹本
犬井
佐伯
谷川
原
丸山
北
塚田
松本
島田
森
梅田
松山
山本
小林
倉地
山根
中原
河野
村上
土井
岩破
南
井上
三ツ股
小田
依藤
永禮
林
加藤
石藤
駒井
末吉
山本
芦野
樽井
野上
岡田
木村
池田
西村
藤澤
達川
奥原
那須
上内
森下
小西
1/3
今週のPick Upページ
ご利用頂いたお客様の口コミ・レビューを「お客様の声」として掲載しております。
全てのご感想を掲載しておりますので、エクスショップの評判としてご参考ください。
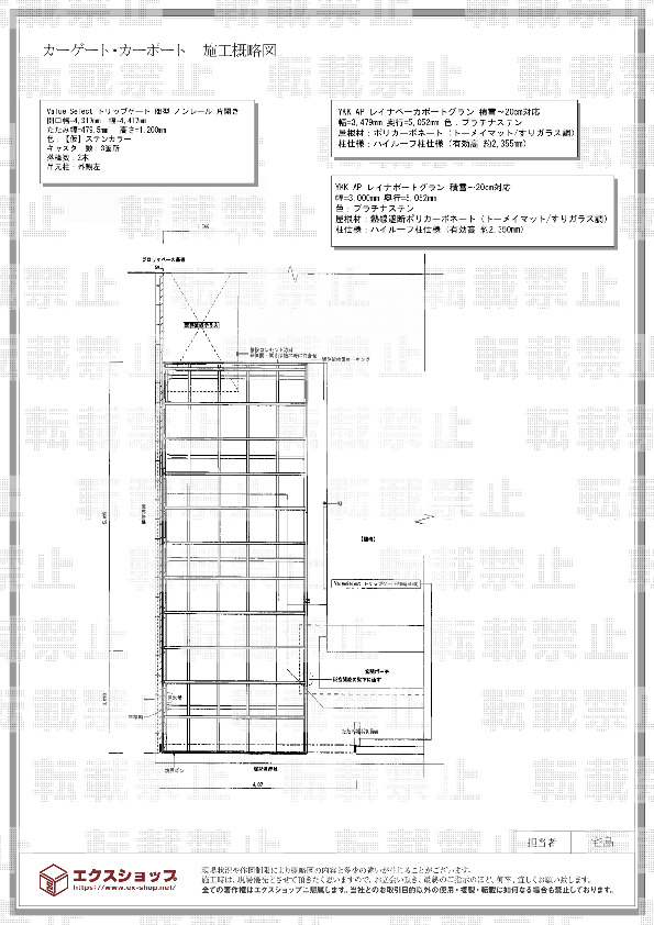
正式お見積りと一緒に提出させて頂いております「工事概略図面」もご覧頂けます。
商品や設置場所のご検討にお役立てください。
(写真No:18996311)
(カーポート)
カラー | プラチナステン |
---|---|
サイズ | 幅 3,479mm 奥行 5,052mm |
屋根高等 | ハイルーフ柱仕様(有効高 約2,355mm) |
屋根材等 | ポリカーボネート(トーメイマット/すりガラス調) |
工事方法 | 地域密着あんしん施工 |
カーゲート商品の手はいの手違いがあり、当初予定の施工日程より、遅延した事はあったものの、施工業者に恵まれて、丁寧で手際の良い施工で当方の希望もこころよく考慮してくれ、満足のいく内容だった。エクスショップを含め3社へ見積依頼したが、エクスショップが価格的にも優位でその点でも評価できた。
発注に不備があり施工完了までにお時間を頂きましたこと、誠に申し訳ございませんでした。ご迷惑をお掛け致しましたのに、施工にご満足と感想のお言葉をお寄せ頂き、スタッフ一同大変嬉しく存じます。複数商品を3点同時に施工致しましたが、全ての商品が綺麗に納まり、統一感のある素敵なお仕上がりでございますね。いずれも耐久性に優れ、大変機能的な商品でございますので、お気に召した頂き永くご愛用頂けますと幸いでございます。今後、きめ細やかな対応を心掛け、お客様をお待たせすることのないよう、企業努力を重ねて参ります。この度のご利用、誠に有り難うございました。
当サイトは以下のセキュリティ機能や保護認定等を備えています。安心してお申し込みください
当サイトは256ビットSSL暗号化に対応しています。入力した個人情報は暗号化して送られますので、安心してご利用ください。
当社はJADMAの正会員です。同協会は法律で位置づけられた団体で、消費者の利益保護と業界の健全な発展の為に活動しています。
こちらの工事に使用しているエクステリア
アリュース ベーカ 600タイプ 単体セット
工事費・税込
208,600円〜
総合平均評価(星5つ評価)
4.75
商品レビュー数
8件
アリュース ベーカ 600タイプ 単体セットは壁付け支持タイプの1台用カーポートです。カーポートの屋根と家屋が完全に一体化しており、屋根下に雨水が侵入しません。強度は基準風速Vo=34m/s・耐積雪性能20cmを確保しています。商品カラーは全5色です。
この商品の詳細へ
無料お見積り・現場調査・ご注文もこちら
この商品のレビュー
商品レビュー8件
佐賀県 杵島郡江北町 K.O.様
デザインもいいと思うし、積雪20cm対応も九州地方では十分と思います満足です。
群馬県 館林市 N.Y.様
テラス屋根で希望のサイズがなかったので、カーポートで代用しました。
長崎県 西彼杵郡長与町 T.C.様
とても満足しています。ありがとうございました。
福島県 いわき市 S.H.様
狭いスペースでしたので、色々検討しましたが、上手くハマりました。欲を言えば、幅の広いタイプ(3800)にすればベストだったと思いました。事前の寸法確認が不足したと反省しました。独立した子供たちにも非常に評判が良く、来年は孫のプールを購入し、遊ばせたいと考えています。夜はBBQですかね。
宮崎県 宮崎市 M.H.様
スタイリッシュで幅も余裕があり、気に入っております。両親もカーポートを見に来て好評しておりました。
京都府 船井郡京丹波町 K.A.様
色見がマッチしており、また大きさちょうど良いので大変満足しています。
関連するお客様の声
5つ星のうち5
福島県S.H. 様回答日:2024年7月
妻が洗濯物を干すのに、屋根がなく2階のベランダに干したりしていましたが、60歳を前にし一階に屋根のある物干場を作ってあげたいと思っていました。また、趣味のバイクも置ければと考え、色々見ておりました。想像通りピッタリとはまりました。貴社HPも各種比較ができて良かったと思います。
5つ星のうち5
宮崎県M.H. 様回答日:2024年6月
子供が保育園に通うようになり、雨天時にカーポートがあると便利と考え梅雨を迎えることもあり購入に踏み切りました。雨の日の子供の乗降がとても楽になり、日差しもある程度遮ってくれるため、車内もあまり暑くならず快適です。カーポートがついたことで、家も格好がよくなりました。
5つ星のうち5
福島県N.Y. 様回答日:2022年7月
今回は以前のカーポートにサイドパネルと、同じカーポートを連結とサイドパネル取り付け、レイナベーカポートグランとサイドパネル取り付けして頂きました。全てのポリカの種類をアースブルーからアースブルーのマット調に変更してみて、炎天下でも日陰になりすごく快適です。あと目隠しにもなり最高です。
5つ星のうち5
千葉県Y.N. 様回答日:2017年7月
夫婦とも車通勤でした。自宅外に駐車場を借りてましたが土地に余裕が有ったので駐車場にする事にしました。土間造りは苦労しましが、最後はエクスショップさんにお願い出来たので大変満足してます。雨の日でもカーポートの下で色々作業出来るので非常に満足してます。
5つ星のうち4
埼玉県M.K. 様回答日:2017年6月
車の保管に雨風防げる駐車場が欲しかったため、カーポートとサイドパネルと土間コン工事をしました。仕上がりには満足しています。透明磨りガラス調のパネルで家の中が暗くならなくて良かったです。工事を決めてから、見積もり時に伝えた細かい内容を施工日当日ではなく、施工日前に直接作業担当者と確認できたほうが良いと思いました。
5つ星のうち5
愛知県A.M. 様回答日:2025年9月
ずっとカーポートが付けたかったけど、どうしてもいるものではなかったので後回しになっていた。年々猛暑が続いていた事がきっかけです。暑い日に乗った最初の車内の温度が低く感じられて、つけて良かったと思った。小雨の時の車の汚れが防げるといいなと思っています。
5つ星のうち5
岡山県A.M. 様回答日:2025年4月
ネットのCMでエクスショップさんを知り、地元に施工店が有るとのことで現地調査に来ていただきました。見積もりから施工まで約2週間で工事完了となりました。施工店の方はとても親切丁寧で、また他の外構が必要になればお願い出来ればと思います。カーポート本体もとても丈夫で満足いくものでした。
5つ星のうち5
愛知県I.T. 様回答日:2025年4月
元々カーポートは冬の車のガラス凍結や鳥のフンを避ける為に欲しかったですが、赤ちゃんが産まれたきっかけで、車への乗せ下ろしの時に雨が当たらない様にする為に、買う踏ん切りがつきました。また、屋外に収納が無く、外で使うものも家の中に仕舞っていたので、物置も合わせて購入しました。最近は日中車に乗ると暑くなってきましたが、早速車内が暑くなってなく、恩恵を感じています。施工についても、入念に下見していただき、カーポートの柱が建てれる位置をしっかり見つけて、最適な商品を選んでいただきました。今までも2件の業者さんに見積もってもらったのですが、水道管が地中を通っているので建てれるか心配していたけれど、大丈夫です大丈夫ですと言われるばかりでした。今回下見していただいた時に建てれないと知って、案の定と思いました。エクスショップさんにお任せして良かったです!
関連するブログ記事
関連するよくあるご質問
カーポートの設置と一緒に土間コンクリートを打設できますか?
【商品カテゴリ >カーポート】(ご質問No.707)
既存のカーポート屋根材の張り替えの依頼はできますか?
【商品カテゴリ >カーポート】(ご質問No.21)
以前購入したカーポートの部品のみを追加で購入する事は可能ですか?
【商品カテゴリ >カーポート】(ご質問No.48)
ワイドタイプのカーポートですが、横幅の切り詰めは可能ですか?
【商品カテゴリ >カーポート】(ご質問No.69)
カーポートって何ですか?
【商品カテゴリ >カーポート】(ご質問No.28910)
既存のカーポートの柱の高さを桁上げする事は可能ですか?
【商品カテゴリ >カーポート】(ご質問No.43)
既存のカーポートをいったん解体し、再度組み立てることは可能ですか?
【商品カテゴリ >カーポート】(ご質問No.46)
四国化成のFリードカーポート収納庫付きタイプは取り扱ってますか?
【商品カテゴリ >カーポート】(ご質問No.74)
既存カーポートの支柱を流用して、増設、縦列2台用のカーポートを設置することは可能ですか?
【商品カテゴリ >カーポート】(ご質問No.84)
四国化成のマイポートneoの取り扱いはありますか?
【商品カテゴリ >カーポート】(ご質問No.88)