ガレージの保全・防犯にカーポートと合わせて
防犯、お家のドレスアップはこれで決まり
快適なガレージには必須
お家の収納能力をアップ
日光、雨・風を防ぎバルコニーを快適に
門には必須のアイテム
各取扱メーカーの会社名、ロゴ及び商品名等は各社の商標または登録商標です。
| 日 | 月 | 火 | 水 | 木 | 金 | 土 |
|---|---|---|---|---|---|---|
| 1 | 2 | 3 | 4 | 5 | 6 | 7 |
| 8 | 9 | 10 | 11 | 12 | 13 | 14 |
| 15 | 16 | 17 | 18 | 19 | 20 | 21 |
| 22 | 23 | 24 | 25 | 26 | 27 | 28 |
| 日 | 月 | 火 | 水 | 木 | 金 | 土 |
|---|---|---|---|---|---|---|
| 1 | 2 | 3 | 4 | 5 | 6 | 7 |
| 8 | 9 | 10 | 11 | 12 | 13 | 14 |
| 15 | 16 | 17 | 18 | 19 | 20 | 21 |
| 22 | 23 | 24 | 25 | 26 | 27 | 28 |
| 29 | 30 | 31 |
…休業日(現場調査・工事は一部対応)
![]()
【受付時間】9:30 - 17:30(営業日)
![]()
【受付時間】9:30 - 17:30(営業日)
オペレーションスタッフ
エクステリアプランナー有資格者の私たちにお任せください。
ショップ責任者
神(じん)
エクステリア プランナー
有資格者61名
1/3
木附
枡田
重富
吉澤
吉野
小東
池本
山田
佐藤
白崎
新西
伊野
次田
南
西山
小林
阿重田
梨田
長谷川
藤田
村上
平戸
植松
内田
久田
中島
長石
水口
榮
山崎
清水
室谷
安田
水谷
小野
酒井
一氏
神吉
日下部
山中
深田
田中
水田
西田
岡本
丸山
北
坂本
中嶋
岩野
伊藤
上中
高山
原
犬井
佐伯
谷川
塚田
松本
小林
森下
上内
島田
森
梅田
松山
山本
小西
倉地
山根
中原
河野
村上
土井
岩破
南
井上
三ツ股
小田
依藤
永禮
林
加藤
石藤
駒井
末吉
山本
芦野
樽井
野上
岡田
木村
池田
西村
藤澤
達川
奥原
那須
1/3
今週のPick Upページ
![]()
ご利用頂いたお客様の口コミ・レビューを「お客様の声」として掲載しております。
全てのご感想を掲載しておりますので、エクスショップの評判としてご参考ください。
正式お見積りと一緒に提出させて頂いております「工事概略図面」もご覧頂けます。
商品や設置場所のご検討にお役立てください。
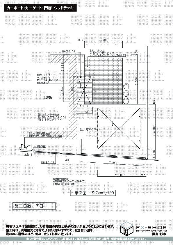
(写真No:5675154)
(門扉)
| カラー | ブロンズ |
|---|---|
| サイズ | 幅 600mm 高さ 1,000mm |
| 工事方法 | 地域密着あんしん施工 |
施工に要した日数は4日であり、スムーズかつ少人数で完了し、車の移動・保管に気を使うこともなかったので助かりました。
この度は、カーポート・伸縮カーゲート・門扉・ウッドデッキと、四点同時施工をご依頼頂きまして、誠に有難うございます。ブロンズのお色で統一されましたエクステリア商品は、上品で優しい雰囲気のお仕上がりでございますね。お住まいの外観を損なうことなく施工することが出来ましたこと、大変嬉しく存じます。お庭のテラス屋根の下に、リウッドデッキIIを施工させて頂きましたが、明るいお色で、お庭が明るく感じられて素敵でございますね。これからも、お客様の笑顔の為に、日々努力して参りたいと存じますので、また、機会がございましたら、是非エクスショップをご利用頂けますよう、宜しくお願い致します。この度のご利用、誠に有難うございました。
当サイトは以下のセキュリティ機能や保護認定等を備えています。安心してお申し込みください
当サイトはSSL暗号化に対応しています。入力した個人情報は暗号化して送られますので、安心してご利用ください。
当社はJADMAの正会員です。同協会は法律で位置づけられた団体で、消費者の利益保護と業界の健全な発展の為に活動しています。
こちらの工事に使用しているエクステリア
![]()
開き門扉AB TR2型 両開き 柱使用

工事費・税込
106,700円〜
総合平均評価(星5つ評価)
4.6
商品レビュー数
15件
両開きは同じサイズの扉を2枚左右対称に設置したもので、2枚とも開閉可能であるのが特徴です。両方の扉を開けることで開放感を創出します。また、人や物の行き来もスムーズに行うことができます。門扉ABTR2型は約23mmのスリットがある縦格子の門扉です。
この商品の詳細へ
無料お見積り・現場調査・ご注文もこちら
この商品のレビュー
商品レビュー15件

千葉県 木更津市 S.Y.様
職人さんが丁寧で満足ですし、門扉がお値段以上の美しさ

東京都 新宿区 W.A.様
商品については鍵の部分が思ったより弱そうですが、おおむね満足しています。

埼玉県 鴻巣市 K.K.様
シンプルで上品な外観イメージ。 開閉がスムーズでとても静かである。

三重県 鈴鹿市 Y.H.様
開閉がスムーズで扱いやすいですが、 扉を閉めた時の感触が弱く、 確実に閉まったかどうが判りづらいところがやや難点です。

神奈川県 横須賀市 Y.K.様
日頃から付き合いのある工務店の見積もりより10万円以上安く、見積もりから施工までとてもスムーズに対応して頂き、施工も丁寧で出来上がりも満足しています。

茨城県 神栖市 F.M.様
アルミ製の門扉は軽く、開閉がスムーズで見た目もすっきりしてよかったです。

千葉県 松戸市 I.M.様
以前は重めの門だったのですが、軽くなったので開閉がしやすくなりました。見た目も良いです。

埼玉県 桶川市 S.M.様
価格も安く対応も丁寧で工事された方も暑い中テキパキと施工していただき感謝です!
関連するお客様の声

5つ星のうち5
埼玉県K.K. 様回答日:2021年9月
購入したきかっけ*門扉 特に不具合はなかったが伸縮ゲートと合わせて取り替えた。*伸縮ゲート プラスチック部品の劣化による外観悪化および操作がスムーズでなくなった。良くなった点*門扉、ゲートをセットで替えたので外観は良くなった。*門扉、ゲートともに操作がスムーズで特にゲートの開閉は楽になった。

5つ星のうち5
茨城県N.S. 様回答日:2017年5月
6年前の東日本大震災により、既存の門扉が破損したため以前より新しい門扉の交換を予定していた。そこで購入にあたって、ネットで探していたところ、エクスショップさんの門扉が当方で希望していたものと合致したのと工事内容も妥当なものと思えたため貴社に注文しました。

5つ星のうち5
広島県S.Y. 様回答日:2016年12月
先日、我が家に珍客(猪)が訪問し、庭の苔を台無しにされたので門扉を設置しました。まず地元のリフォーム業者に見積り依頼しましたが金額合意に至らず、同商品でほぼ半値の御社に決めました。現地調査および工事施工の方々の対応、手際とも申し分なく、気持ちの良い取引きが出来ました。ありがとうございました。

5つ星のうち5
大阪府F.I. 様回答日:2014年1月
上述しましたが前回のシャッター工事が満足いくもので今回の門扉工事の方は予定通り1日で無事終わりただセメントが固まるのを待って工事の3日目朝から添え木を外しで門扉を使用するようにしました。ガレージのシャッターとお揃いでそして同色にしたのはとても良かったです。

5つ星のうち5
神奈川県O.Y. 様回答日:2013年4月
エクスショップさんは、お値段が安いこと以上に、注文に関わる皆さんの対応が本当に素晴らしいと思います。特に、現地調査に来られた方や施行してくださった方は、手際が良く安心してお任せすることが出来ました。門扉が出来たことで、1歳の長男に安心してお庭遊びをさせられるようになりました。本当にありがとうございました。

5つ星のうち4
兵庫県K.K. 様回答日:2025年12月
門扉が壊れていて、生活の中でずっと不便だったので新しくしようと思いお願いしました。見た目も良く、扉の開け閉めにストレスを感じなくなり良かったです。メールでのやり取りが主だったのが少々やりづらかったのですが、着々と進めて下さったので結果として良かったと思います。

5つ星のうち5
福岡県K.M. 様回答日:2025年4月
経年劣化のブロック塀修復に伴い、フェンスを新たにたてる事となり、元々の依頼業者の見積もりが高かったため、ネットで(当初、不安ではあったが)エクスショップを見つけ、メールやtelでの対応が早くて感じ良かったので、商品(フェンス)のみ購入。そのフェンスが安価だったにもかかわらず、商品がとてもしっかりしていて満足したので、追加でリピート購入として門扉(工事込み)も申し込んだ。現地調査や施工日程についてもこちらの希望にそってくれて、出来上がりも完璧!商品、施工共に大満足!。

5つ星のうち5
三重県M.S. 様回答日:2024年11月
以前のフェンスは木製で、家ありの影響で数か所が倒れ掛かっていた為、取り換える必要がありました。以前は、毎年防腐剤の塗装をしてましたが、非常に面倒でしたので、今回はメンテナンスが無いので、非常に楽です。門扉が以前の物よりレバーも高級で見た目も良いです。
関連するブログ記事
関連するよくあるご質問
門扉って何ですか?
【商品カテゴリ >門扉】(ご質問No.28916)
ブロック塀に直接取り付けられる門扉の取り扱いはありますか?
【商品カテゴリ >門扉】(ご質問No.30)
門扉の開口寸法は、両側の柱を入れるとどれくらいになりますか?
【商品カテゴリ >門扉】(ご質問No.31)
なるべく小さい幅の門扉を検討しています。最小の幅を教えてください。
【商品カテゴリ >門扉】(ご質問No.91)
ゴミ置場用の扉を探してますが取り扱いはありますか?
【商品カテゴリ >門扉】(ご質問No.164)
四国化成 ブルーム門戸2型 3枚折り扉の購入・施工は可能ですか?
【商品カテゴリ >門扉】(ご質問No.195)
新日軽マイアミ門扉の取り扱いはありますか?
【商品カテゴリ >門扉】(ご質問No.364)
幅が狭いのですが、門扉を付けていただくことはできますか?
【商品カテゴリ >門扉】(ご質問No.413)
設置した門扉のシリンダーが壊れてしまい、門扉を新しくしたいのですが、支柱をそのまま利用して付け替えできますか。
【商品カテゴリ >門扉】(ご質問No.461)
YKKAP スタンダード門扉1型 片開きかの商品のみの購入希望です。納期を知りたいのですが、発注してからどれくらいで届きますでしょうか。
【商品カテゴリ >門扉】(ご質問No.467)


















