各取扱メーカーの会社名、ロゴ及び商品名等は各社の商標または登録商標です。
| 日 | 月 | 火 | 水 | 木 | 金 | 土 |
|---|---|---|---|---|---|---|
| 1 | 2 | 3 | 4 | |||
| 5 | 6 | 7 | 8 | 9 | 10 | 11 |
| 12 | 13 | 14 | 15 | 16 | 17 | 18 |
| 19 | 20 | 21 | 22 | 23 | 24 | 25 |
| 26 | 27 | 28 | 29 | 30 |
| 日 | 月 | 火 | 水 | 木 | 金 | 土 |
|---|---|---|---|---|---|---|
| 1 | 2 | |||||
| 3 | 4 | 5 | 6 | 7 | 8 | 9 |
| 10 | 11 | 12 | 13 | 14 | 15 | 16 |
| 17 | 18 | 19 | 20 | 21 | 22 | 23 |
| 24 | 25 | 26 | 27 | 28 | 29 | 30 |
| 31 |
…休業日(現場調査・工事は一部対応)
![]()
【受付時間】9:30 - 17:30(営業日)
![]()
【受付時間】9:30 - 17:30(営業日)
オペレーションスタッフ
エクステリアプランナー有資格者の私たちにお任せください。
ショップ責任者
神(じん)
エクステリア プランナー
有資格者61名
1/3
1/3
今週のPick Upページ
![]()
ご利用頂いたお客様の口コミ・レビューを「お客様の声」として掲載しております。
全てのご感想を掲載しておりますので、エクスショップの評判としてご参考ください。
正式お見積りと一緒に提出させて頂いております「工事概略図面」もご覧頂けます。
商品や設置場所のご検討にお役立てください。
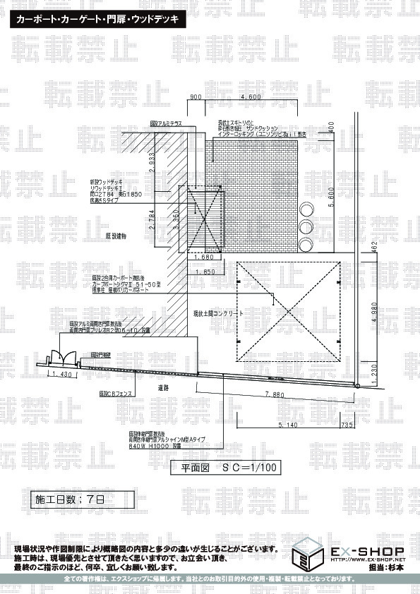
(写真No:5675154)
(ウッドデッキ、門扉、カーゲート、カーポート)
| カラー | ホワイトブラウン |
|---|---|
| サイズ | 間口 2,784mm 出幅 1,850mm |
| 工事方法 | 地域密着あんしん施工 |
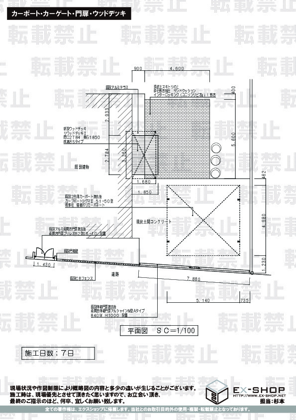
(写真No:5675154)
(ウッドデッキ、門扉、カーゲート、カーポート)
| カラー | ブロンズ |
|---|---|
| サイズ | 幅 600mm 高さ 1,000mm |
| 工事方法 | 地域密着あんしん施工 |
(写真No:5675154)
(写真No:5675154)
(ウッドデッキ、門扉、カーゲート、カーポート)
| カラー | ブロンズ |
|---|---|
| サイズ | 幅 5,140mm 奥行 4,980mm |
| 屋根高等 | 標準柱仕様(有効高 約1,800mm) |
| 屋根材等 | ポリカーボネート(ブラウン) |
| 工事方法 | 地域密着あんしん施工 |
施工に要した日数は4日であり、スムーズかつ少人数で完了し、車の移動・保管に気を使うこともなかったので助かりました。
この度は、カーポート・伸縮カーゲート・門扉・ウッドデッキと、四点同時施工をご依頼頂きまして、誠に有難うございます。ブロンズのお色で統一されましたエクステリア商品は、上品で優しい雰囲気のお仕上がりでございますね。お住まいの外観を損なうことなく施工することが出来ましたこと、大変嬉しく存じます。お庭のテラス屋根の下に、リウッドデッキIIを施工させて頂きましたが、明るいお色で、お庭が明るく感じられて素敵でございますね。これからも、お客様の笑顔の為に、日々努力して参りたいと存じますので、また、機会がございましたら、是非エクスショップをご利用頂けますよう、宜しくお願い致します。この度のご利用、誠に有難うございました。
当サイトは以下のセキュリティ機能や保護認定等を備えています。安心してお申し込みください
当サイトはSSL暗号化に対応しています。入力した個人情報は暗号化して送られますので、安心してご利用ください。
当社はJADMAの正会員です。同協会は法律で位置づけられた団体で、消費者の利益保護と業界の健全な発展の為に活動しています。
こちらの工事に使用しているエクステリア
![]()
リウッドデッキ S

工事費・税込
69,500円~
商品レビュー数
27件
リウッドデッキ S(旧商品200)は木粉とポリプロピレンを混合したリウッド(再生木)でできた人工木デッキです。硬度・耐水性・耐候性・防腐朽性の高さが特徴で、水濡れやシロアリ・菌類による腐食の心配がありません。目地幅は安全性と意匠性を考慮した3mm幅設定。※束石の手配は別途。
この商品の詳細へ
無料お見積り・現場調査・ご注文もこちら
こちらの工事に使用しているエクステリア
![]()
開き門扉AB TR2型 両開き 柱使用

工事費・税込
110,700円~
商品レビュー数
15件
両開きは同じサイズの扉を2枚左右対称に設置したもので、2枚とも開閉可能であるのが特徴です。両方の扉を開けることで開放感を創出します。また、人や物の行き来もスムーズに行うことができます。門扉ABTR2型は約23mmのスリットがある縦格子の門扉です。
この商品の詳細へ
無料お見積り・現場調査・ご注文もこちら
こちらの工事に使用しているエクステリア
![]()
アルシャインⅡ M型 Aタイプ ノンレール 両開き

工事費・税込
196,300円~
商品レビュー数
19件
回転収納も可能で使い勝手も抜群の伸縮門扉!強風にも安心の頑丈設計。サイズ特注も可能で、高さも3段階から選べます!お好み通り伸縮門扉が完成します!
この商品の詳細へ
無料お見積り・現場調査・ご注文もこちら
こちらの工事に使用しているエクステリア
![]()
ネスカ R 2台用(ラウンドスタイル)

工事費・税込
232,300円~
商品レビュー数
1294件
ネスカ R 2台用(ラウンドスタイル)は大きなアール仕様の屋根が特徴的な横並び2台駐車可能のカーポートです。標準柱が2200mmとなっており大半の車種に対応可能。耐風性能は基準風速Vo=40m/s、耐積雪性能は20cm相当の耐性があります。
この商品の詳細へ
無料お見積り・現場調査・ご注文もこちら