各取扱メーカーの会社名、ロゴ及び商品名等は各社の商標または登録商標です。
| 日 | 月 | 火 | 水 | 木 | 金 | 土 |
|---|---|---|---|---|---|---|
| 1 | 2 | 3 | ||||
| 4 | 5 | 6 | 7 | 8 | 9 | 10 |
| 11 | 12 | 13 | 14 | 15 | 16 | 17 |
| 18 | 19 | 20 | 21 | 22 | 23 | 24 |
| 25 | 26 | 27 | 28 | 29 | 30 | 31 |
| 日 | 月 | 火 | 水 | 木 | 金 | 土 |
|---|---|---|---|---|---|---|
| 1 | 2 | 3 | 4 | 5 | 6 | 7 |
| 8 | 9 | 10 | 11 | 12 | 13 | 14 |
| 15 | 16 | 17 | 18 | 19 | 20 | 21 |
| 22 | 23 | 24 | 25 | 26 | 27 | 28 |
…休業日(現場調査・工事は一部対応)
![]()
【受付時間】9:30 - 17:30(営業日)
![]()
【受付時間】9:30 - 17:30(営業日)
オペレーションスタッフ
エクステリアプランナー有資格者の私たちにお任せください。
ショップ責任者
神(じん)
エクステリア プランナー
有資格者61名
1/3
1/3
今週のPick Upページ
![]()
ご利用頂いたお客様の口コミ・レビューを「お客様の声」として掲載しております。
全てのご感想を掲載しておりますので、エクスショップの評判としてご参考ください。
正式お見積りと一緒に提出させて頂いております「工事概略図面」もご覧頂けます。
商品や設置場所のご検討にお役立てください。
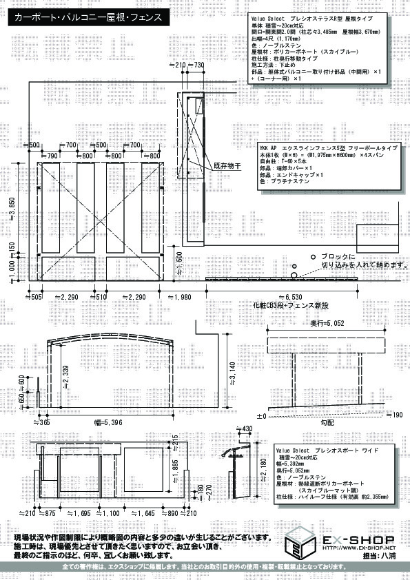
(写真No:5142251)
(フェンス・柵・塀、バルコニー・ベランダ屋根、カーポート)
| カラー | プラチナステン |
|---|---|
| サイズ | 幅 1,975mm 高さ 600mm |
| 工事方法 | 地域密着あんしん施工 |
(写真No:5142251)
(フェンス・柵・塀、バルコニー・ベランダ屋根、カーポート)
| カラー | ノーブルステン |
|---|---|
| サイズ | 屋根幅 3,670mm 出幅 1,170mm |
| 柱仕様 | 柱奥行移動タイプ |
| 屋根材 | ポリカーボネート(スカイブルー) |
| 工事方法 | 地域密着あんしん施工 |
(写真No:5142251)
(フェンス・柵・塀、バルコニー・ベランダ屋根、カーポート)
| カラー | ノーブルステン |
|---|---|
| サイズ | 幅 5,392mm 奥行 5,052mm |
| 屋根高等 | ハイルーフ仕様(有効高 約2,355mm) |
| 屋根材等 | 熱線遮断ポリカーボネート(スカイブルーマット調) |
| 工事方法 | 地域密着あんしん施工 |
ネットで若干の不安がありましたが、丁寧な対応でしたので安心しました。施工までは時間を要しましたが、施工店の方々も親切に対応して頂き、仕上がりには大満足しております。また機会があればお願いしようと思います。
この度はプレシオスポート ワイド、プレシオステラスR型 屋根タイプ ならびに エクスラインフェンス5型 の施工をご依頼頂き、まことにありがとうございます。顔の見えないネット販売では、ご不安に思われることも多いと存じますので、安心してご依頼頂けたというお声を聞くことが、何よりの喜びでございます。いずれもご自宅の外観にぴったりマッチしており、明るく爽やかなお仕上がりでございますね。お気に召して頂き、永くご愛用頂けることと存じます。これからも、お客様に安心してご利用して頂けるように弊社は日々努力して参ります。またの機会がございましたら、ぜひエクスショップをご利用くださいますよう、宜しくお願い致します。
当サイトは以下のセキュリティ機能や保護認定等を備えています。安心してお申し込みください
当サイトは256ビットSSL暗号化に対応しています。入力した個人情報は暗号化して送られますので、安心してご利用ください。
当社はJADMAの正会員です。同協会は法律で位置づけられた団体で、消費者の利益保護と業界の健全な発展の為に活動しています。
こちらの工事に使用しているエクステリア
![]()
シンプレオ フェンスYS1型 横太格子

工事費・税込
102,600円〜
商品レビュー数
3件
シンプレオ フェンスYS1型 横太格子(旧:3F型)は目隠し率77%の適度な目隠し効果を持っているアルミフェンスです。幅40mmのフェンス板が等間隔に配置されています。また、採光率・通風率23%で光と風が緩やかに通り抜けます。
この商品の詳細へ
無料お見積り・現場調査・ご注文もこちら
こちらの工事に使用しているエクステリア
![]()
プレシオステラスU R型 屋根タイプ 単体

工事費・税込
68,400円〜
商品レビュー数
189件
プレシオステラスU R型 屋根タイプ 単体はエクスショップオリジナルブランドのアール屋根タイプのバルコニー屋根です。間口3サイズ・出幅5サイズからの選択ができます。屋根は曲線型のアール仕様で、3色からお選びいただけます。
この商品の詳細へ
無料お見積り・現場調査・ご注文もこちら
こちらの工事に使用しているエクステリア
![]()
プレシオスポート アール型 2台用

工事費・税込
239,100円〜
商品レビュー数
12件
プレシオスポート アール型 2台用は継ぎ目無しの大きなアール屋根が印象的なエクスショップオリジナルブランドの2台用カーポートです。耐風性能は基準風速Vo=34m/s、耐積雪性能は20cm相当(600N/㎡)を保持しています。本体色は3種類・屋根材は4種類ご用意。
この商品の詳細へ
無料お見積り・現場調査・ご注文もこちら