各取扱メーカーの会社名、ロゴ及び商品名等は各社の商標または登録商標です。
| 日 | 月 | 火 | 水 | 木 | 金 | 土 |
|---|---|---|---|---|---|---|
| 1 | ||||||
| 2 | 3 | 4 | 5 | 6 | 7 | 8 |
| 9 | 10 | 11 | 12 | 13 | 14 | 15 |
| 16 | 17 | 18 | 19 | 20 | 21 | 22 |
| 23 | 24 | 25 | 26 | 27 | 28 | 29 |
| 30 |
| 日 | 月 | 火 | 水 | 木 | 金 | 土 |
|---|---|---|---|---|---|---|
| 1 | 2 | 3 | 4 | 5 | 6 | |
| 7 | 8 | 9 | 10 | 11 | 12 | 13 |
| 14 | 15 | 16 | 17 | 18 | 19 | 20 |
| 21 | 22 | 23 | 24 | 25 | 26 | 27 |
| 28 | 29 | 30 | 31 |
…休業日(現場調査・工事は一部対応)
![]()
【受付時間】9:30 - 17:30(営業日)
![]()
【受付時間】9:30 - 17:30(営業日)
オペレーションスタッフ
エクステリアプランナー有資格者の私たちにお任せください。
ショップ責任者
神(じん)
エクステリア プランナー
有資格者61名
1/3
1/3
今週のPick Upページ
![]()
ご利用頂いたお客様の口コミ・レビューを「お客様の声」として掲載しております。
全てのご感想を掲載しておりますので、エクスショップの評判としてご参考ください。
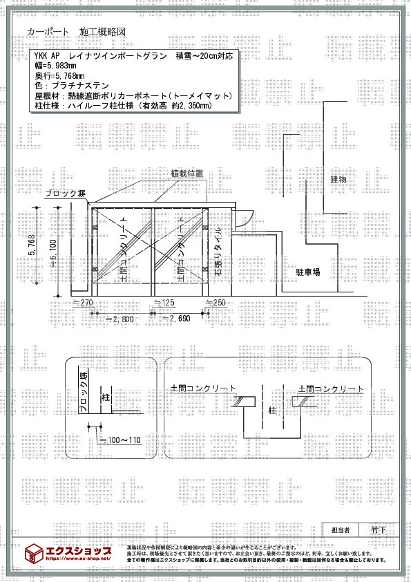
正式お見積りと一緒に提出させて頂いております「工事概略図面」もご覧頂けます。
商品や設置場所のご検討にお役立てください。
(写真No:19209911)
(カーポート、サイクルポート・自転車置き場)
| カラー | プラチナステン |
|---|---|
| サイズ | 幅 5,983mm 奥行 5,768mm |
| 屋根高等 | ハイルーフ柱仕様(有効高 約2,350mm) |
| 屋根材等 | 熱線遮断ポリカーボネート(トーメイマット) |
| 工事方法 | メーカー責任施工 |
(写真No:19209911)
(カーポート、サイクルポート・自転車置き場)
| カラー | プラチナステン |
|---|---|
| サイズ | 幅 2,100mm 奥行 2,904mm |
| 屋根高等 | ハイルーフ柱仕様(有効高 約2,355mm) |
| 屋根材等 | 熱線遮断ポリカーボネート(トーメイマット) |
| 工事方法 | メーカー責任施工 |
駐車場の土間コンが打たれており、柱を立てられる部分が限られていたため、見積もりに3回も来ていただくことになり、双方手間も時間もかかってしまいました。しかし、3回目に見積もりに来ていただいた際に確実にこれで工事ができるというところまで確認していただき、その後発注からはすぐに工事もしていただけて、完成も想像通りの仕上がりで、大変感謝しております。
この度は、エクスショップをご利用頂きまして、誠に有り難うございます。プラチナステンのカーポートとサイクルポートが、統一感のある、とても落ち着いた雰囲気のお仕上がりでございますね。私どもは常にお客様に安心してご依頼頂き、施工にご満足頂くことを願っておりますので、このようなお言葉をお寄せ頂き、大変嬉しく存じます。これからも、お客様の笑顔の為に、日々努力して参りたいと存じますので、また、機会がございましたら、是非弊社をご利用頂けますよう、宜しくお願い致します。
当サイトは以下のセキュリティ機能や保護認定等を備えています。安心してお申し込みください
当サイトは256ビットSSL暗号化に対応しています。入力した個人情報は暗号化して送られますので、安心してご利用ください。
当社はJADMAの正会員です。同協会は法律で位置づけられた団体で、消費者の利益保護と業界の健全な発展の為に活動しています。
こちらの工事に使用しているエクステリア
![]()
アリュース 600タイプ 2台用

工事費・税込
215,900円〜
商品レビュー数
109件
アリュース 600タイプ 2台用は継ぎ目のない大きなアール屋根が特徴的な両側支持タイプの2台用カーポートです。柱・梁には水での急速冷却により高強度化(T6処理)したアルミニウム合金を用いており、基準風速Vo=40m/s・耐積雪性能20cmを確保しています。
この商品の詳細へ
無料お見積り・現場調査・ご注文もこちら
こちらの工事に使用しているエクステリア
![]()
アリュース ミニ 600タイプ 単体

工事費・税込
136,000円〜
商品レビュー数
15件
アリュース ミニ 600タイプ 単体は屋根がアール型のスタンダードな片流れスタイルのサイクルポート(駐輪場屋根)です。基準風速Vo=34m/s・耐積雪性能20cm相当の性能があり、約3〜9台の駐輪が可能です(自転車の間隔を約600mmとして計算)。
この商品の詳細へ
無料お見積り・現場調査・ご注文もこちら