各取扱メーカーの会社名、ロゴ及び商品名等は各社の商標または登録商標です。
| 日 | 月 | 火 | 水 | 木 | 金 | 土 |
|---|---|---|---|---|---|---|
| 1 | ||||||
| 2 | 3 | 4 | 5 | 6 | 7 | 8 |
| 9 | 10 | 11 | 12 | 13 | 14 | 15 |
| 16 | 17 | 18 | 19 | 20 | 21 | 22 |
| 23 | 24 | 25 | 26 | 27 | 28 | 29 |
| 30 |
| 日 | 月 | 火 | 水 | 木 | 金 | 土 |
|---|---|---|---|---|---|---|
| 1 | 2 | 3 | 4 | 5 | 6 | |
| 7 | 8 | 9 | 10 | 11 | 12 | 13 |
| 14 | 15 | 16 | 17 | 18 | 19 | 20 |
| 21 | 22 | 23 | 24 | 25 | 26 | 27 |
| 28 | 29 | 30 | 31 |
…休業日(現場調査・工事は一部対応)
![]()
【受付時間】9:30 - 17:30(営業日)
![]()
【受付時間】9:30 - 17:30(営業日)
オペレーションスタッフ
エクステリアプランナー有資格者の私たちにお任せください。
ショップ責任者
神(じん)
エクステリア プランナー
有資格者61名
1/3
1/3
今週のPick Upページ
![]()
ご利用頂いたお客様の口コミ・レビューを「お客様の声」として掲載しております。
全てのご感想を掲載しておりますので、エクスショップの評判としてご参考ください。
正式お見積りと一緒に提出させて頂いております「工事概略図面」もご覧頂けます。
商品や設置場所のご検討にお役立てください。
(写真No:21074322)
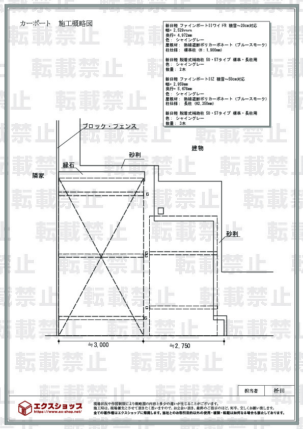
(カーポート)
| カラー | シャイングレー |
|---|---|
| サイズ | 幅 2,959mm 奥行 5,678mm |
| 屋根高等 | 長柱(H2,350mm) |
| 屋根材等 | 熱線遮断ポリカーボネート(ブルースモーク) |
| 工事方法 | 地域密着あんしん施工 |
(写真No:21074322)
(カーポート)
| カラー | シャイングレー |
|---|---|
| サイズ | 幅 2,529mm 奥行 4,972mm |
| 屋根高等 | 標準柱(H:1,900mm) |
| 屋根材等 | 熱線遮断ポリカーボネート(ブルースモーク) |
| 工事方法 | 地域密着あんしん施工 |
全国展開の幅広い営業力であり、地域で信用のおける地元の業者と代理店契約を結ばれていることを実感しました。丁寧な施工をしていただき満足しております。
当サイトは以下のセキュリティ機能や保護認定等を備えています。安心してお申し込みください
当サイトは256ビットSSL暗号化に対応しています。入力した個人情報は暗号化して送られますので、安心してご利用ください。
当社はJADMAの正会員です。同協会は法律で位置づけられた団体で、消費者の利益保護と業界の健全な発展の為に活動しています。
こちらの工事に使用しているエクステリア
![]()
ネスカ F 1台用(フラットスタイル)

工事費・税込
181,100円〜
商品レビュー数
245件
ネスカ F 1台用(フラットスタイル)は直線基調のフラット屋根が特徴的な1台用カーポートです。全光線透過率0%のブラックマット仕様ポリカーボネートがついに導入。その他全6タイプの屋根材もご用意。耐性能は基準風速Vo=36m、耐積雪20cmまで対応。※屋根材:ポリカーボネート(ブラックマット)は同色のサイドパネルの設定が無いため、サイドパネル:ポリカーボネート(クリアブルー/クリアブラウン)の価格で算出しています。
この商品の詳細へ
無料お見積り・現場調査・ご注文もこちら