各取扱メーカーの会社名、ロゴ及び商品名等は各社の商標または登録商標です。
| 日 | 月 | 火 | 水 | 木 | 金 | 土 |
|---|---|---|---|---|---|---|
| 1 | 2 | 3 | 4 | |||
| 5 | 6 | 7 | 8 | 9 | 10 | 11 |
| 12 | 13 | 14 | 15 | 16 | 17 | 18 |
| 19 | 20 | 21 | 22 | 23 | 24 | 25 |
| 26 | 27 | 28 | 29 | 30 | 31 |
| 日 | 月 | 火 | 水 | 木 | 金 | 土 |
|---|---|---|---|---|---|---|
| 1 | ||||||
| 2 | 3 | 4 | 5 | 6 | 7 | 8 |
| 9 | 10 | 11 | 12 | 13 | 14 | 15 |
| 16 | 17 | 18 | 19 | 20 | 21 | 22 |
| 23 | 24 | 25 | 26 | 27 | 28 | 29 |
| 30 |
…休業日(現場調査・工事は一部対応)
![]()
【受付時間】9:30 - 17:30(営業日)
![]()
【受付時間】9:30 - 17:30(営業日)
オペレーションスタッフ
エクステリアプランナー有資格者の私たちにお任せください。
ショップ責任者
神(じん)
エクステリア プランナー
有資格者61名
1/3
1/3
今週のPick Upページ
![]()
ご利用頂いたお客様の口コミ・レビューを「お客様の声」として掲載しております。
全てのご感想を掲載しておりますので、エクスショップの評判としてご参考ください。
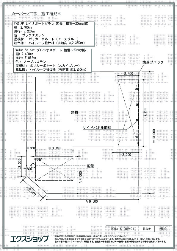
正式お見積りと一緒に提出させて頂いております「工事概略図面」もご覧頂けます。
商品や設置場所のご検討にお役立てください。
(写真No:28259126)
(カーポート)
| カラー | ノーブルステン |
|---|---|
| サイズ | 幅 2,400mm 奥行 5,052mm |
| 屋根高等 | ハイルーフ柱仕様(有効高 約2,250mm) |
| 屋根材等 | ポリカーボネート(スカイブルー) |
| 工事方法 | 地域密着あんしん施工 |
(写真No:28259126)
(カーポート)
| カラー | プラチナステン |
|---|---|
| サイズ | 幅 2,400mm 奥行 7,200mm |
| 屋根高等 | ハイルーフ柱仕様(有効高 約2,350mm) |
| 屋根材等 | ポリカーボネート(アースブルー) |
| 工事方法 | 地域密着あんしん施工 |
雨に濡れずに済む。まあまあ良かったが貯金が減ったわ。ワロタ。しかし便利になって満足満腹。あぁ良かった。一句思い付いた。若き日の、夏の夜空の、カーポート。
この度は、 レイナポートグラン 延長、プレシオスポート の施工をご依頼頂きまして、誠に有り難うございます。お車の乗り降りの際、お天気が悪くても負担に感じることが無くなりましたこと、私どもも嬉しく存じます。お客様の一句に、新しいエクステリアとともに頑張ろうという意気込みを感じます。今後もお客様の笑顔のため、日々精進して参りますので、機会がございましたら、エクスショップをご用命頂きますよう、宜しくお願い致します。
当サイトは以下のセキュリティ機能や保護認定等を備えています。安心してお申し込みください
当サイトは256ビットSSL暗号化に対応しています。入力した個人情報は暗号化して送られますので、安心してご利用ください。
当社はJADMAの正会員です。同協会は法律で位置づけられた団体で、消費者の利益保護と業界の健全な発展の為に活動しています。
こちらの工事に使用しているエクステリア
![]()
プレシオスポート アール型 1台用

工事費・税込
112,000円〜
商品レビュー数
39件
プレシオスポート アール型 1台用はアール屋根が特徴的なエクスショップオリジナルブランドのスタンダードカーポートです。耐風性能は基準風速Vo=34m/s・耐積雪性能は20cm相当(600N/㎡)を確保しています。本体カラーは3色展開・屋根材は4種類あります。
この商品の詳細へ
無料お見積り・現場調査・ご注文もこちら
こちらの工事に使用しているエクステリア
![]()
アリュース 600タイプ 1台用 奥行延長セット

工事費・税込
197,300円〜
商品レビュー数
50件
アリュース 600タイプ 1台用 奥行延長セットはアリュース 600タイプ 1台用の奥行が広くなった片側支持スタイルのカーポートです。柱・梁は高強度T6アルミニウム合金が使われており、基準風速Vo=34m/s・耐積雪性能20cmの性能を保持しています。
この商品の詳細へ
無料お見積り・現場調査・ご注文もこちら