各取扱メーカーの会社名、ロゴ及び商品名等は各社の商標または登録商標です。
| 日 | 月 | 火 | 水 | 木 | 金 | 土 |
|---|---|---|---|---|---|---|
| 1 | ||||||
| 2 | 3 | 4 | 5 | 6 | 7 | 8 |
| 9 | 10 | 11 | 12 | 13 | 14 | 15 |
| 16 | 17 | 18 | 19 | 20 | 21 | 22 |
| 23 | 24 | 25 | 26 | 27 | 28 | 29 |
| 30 |
| 日 | 月 | 火 | 水 | 木 | 金 | 土 |
|---|---|---|---|---|---|---|
| 1 | 2 | 3 | 4 | 5 | 6 | |
| 7 | 8 | 9 | 10 | 11 | 12 | 13 |
| 14 | 15 | 16 | 17 | 18 | 19 | 20 |
| 21 | 22 | 23 | 24 | 25 | 26 | 27 |
| 28 | 29 | 30 | 31 |
…休業日(現場調査・工事は一部対応)
![]()
【受付時間】9:30 - 17:30(営業日)
![]()
【受付時間】9:30 - 17:30(営業日)
オペレーションスタッフ
エクステリアプランナー有資格者の私たちにお任せください。
ショップ責任者
神(じん)
エクステリア プランナー
有資格者61名
1/3
1/3
今週のPick Upページ
![]()
ご利用頂いたお客様の口コミ・レビューを「お客様の声」として掲載しております。
全てのご感想を掲載しておりますので、エクスショップの評判としてご参考ください。
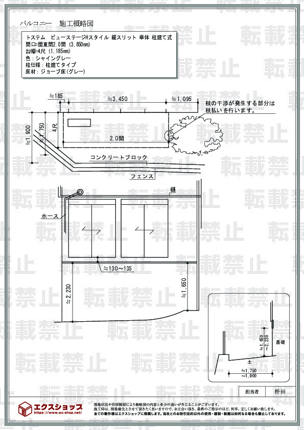
正式お見積りと一緒に提出させて頂いております「工事概略図面」もご覧頂けます。
商品や設置場所のご検討にお役立てください。
(写真No:18159818)
(バルコニー・ベランダ)
| カラー | シャイングレー |
|---|---|
| サイズ | 間口 3,650mm 出幅 1,185mm |
| 柱高 | 柱建てタイプ |
| 工事方法 | メーカー責任施工 |
見積金額が安かったので(他業者の約半額)、不安もあったが、古いバルコニーの撤去から完成まで職人さんの仕事が大変ていねいで、仕上がりも十分満足いくものでした。
この度は、エクスショップをご利用くださいまして、誠に有り難うございます。顔のみえないネット販売にはご不安がおありだったかと存じますが、弊社を信頼して、施工までお任せ頂いたことを誠に嬉しく存じます。ご満足とのお言葉をいただき、大変光栄でございます。今後益々精進して参りますので、また機会がございましたら、ぜひエクスショップにご用命くださいますよう、宜しくお願い致します。
当サイトは以下のセキュリティ機能や保護認定等を備えています。安心してお申し込みください
当サイトは256ビットSSL暗号化に対応しています。入力した個人情報は暗号化して送られますので、安心してご利用ください。
当社はJADMAの正会員です。同協会は法律で位置づけられた団体で、消費者の利益保護と業界の健全な発展の為に活動しています。
こちらの工事に使用しているエクステリア
![]()
ビューステージHスタイル 柱建て式 縦スリット 単体

工事費・税込
388,600円〜
商品レビュー数
2件
縦スリット 2本柱で支え、スリット床を使い下の空間にも光が入り有効活用できます。 安心感を与える90mmの強靭な柱が支えるバルコニーです。
この商品の詳細へ
無料お見積り・現場調査・ご注文もこちら