各取扱メーカーの会社名、ロゴ及び商品名等は各社の商標または登録商標です。
| 日 | 月 | 火 | 水 | 木 | 金 | 土 |
|---|---|---|---|---|---|---|
| 1 | ||||||
| 2 | 3 | 4 | 5 | 6 | 7 | 8 |
| 9 | 10 | 11 | 12 | 13 | 14 | 15 |
| 16 | 17 | 18 | 19 | 20 | 21 | 22 |
| 23 | 24 | 25 | 26 | 27 | 28 | 29 |
| 30 |
| 日 | 月 | 火 | 水 | 木 | 金 | 土 |
|---|---|---|---|---|---|---|
| 1 | 2 | 3 | 4 | 5 | 6 | |
| 7 | 8 | 9 | 10 | 11 | 12 | 13 |
| 14 | 15 | 16 | 17 | 18 | 19 | 20 |
| 21 | 22 | 23 | 24 | 25 | 26 | 27 |
| 28 | 29 | 30 | 31 |
…休業日(現場調査・工事は一部対応)
![]()
【受付時間】9:30 - 17:30(営業日)
![]()
【受付時間】9:30 - 17:30(営業日)
オペレーションスタッフ
エクステリアプランナー有資格者の私たちにお任せください。
ショップ責任者
神(じん)
エクステリア プランナー
有資格者61名
1/3
1/3
今週のPick Upページ
![]()
ご利用頂いたお客様の口コミ・レビューを「お客様の声」として掲載しております。
全てのご感想を掲載しておりますので、エクスショップの評判としてご参考ください。
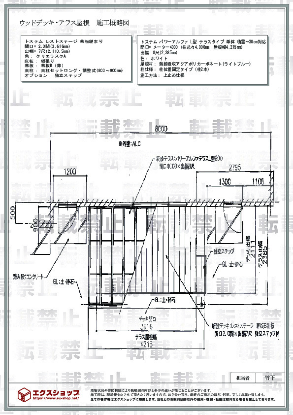
正式お見積りと一緒に提出させて頂いております「工事概略図面」もご覧頂けます。
商品や設置場所のご検討にお役立てください。
(写真No:18341618)
ほとんどメールのやり取りだけでしたが見積書作成から現場調査、工事の打合せまで、全てにおいて対応が早く、きめ細やかで、こちらの要望にもすぐに応えていただきました。完成品を見たとき、想像していた以上に仕上がりもきれいで新しい家にマッチしてとても満足しています。ただ、一つ言わせていただくのであれば、図面を見た当初は素人目でこの位でいいだろうと思っていたところ、いざ、工事が始まる段階になると本当にこのままで大丈夫か、もしかしたら変更した方がよいのではと、とても不安になりました。結果的に大満足でしたが、出来れば図面作成、または現場調査の段階で、もう少しアドバイスをいただき、検討する時間があれば余計な心配もせずにいられたかもしれません。具体的には図面作成時に基礎の位置を少しずらしたり、サイズを数10センチ短くすれば屋根をもう少し高くできたのではないかと思います。
レストステージとパワーアルファ L型の2点同時施工をご依頼頂きまして、誠に有り難うございます。施工までの弊社スタッフの対応や、メーカー担当者の施工にご満足のお言葉を頂き、大変嬉しく存じます。ご自宅のサッシや外壁に、バルコニー屋根のホワイトのフレームがとてもよくマッチしてございますね。熱線吸収アクアポリカーボネート(ライトブルー)の屋根材が、雨や有害な紫外線だけではなく、太陽の熱も遮りますので、一年を通して快適にお過ごし頂けるものと存じます。テラス屋根の納まりにつきまして事前のご説明が至らず、不安なお気持ちで施工の日を迎えられましたこと、誠に心苦しく存じております。今後は、顔の見えないネット販売であるからこそ、きめ細かい対応を心掛け、お客様に安心して頂くということを全スタッフに徹底して参りたいと存じます。落ち着いたお色のウッドデッキは、人工木とは思えない、温もりの感じられるお仕上がりでございますね。ご家族皆様の憩いの場として、永くご愛用頂けましたら幸いでございます。今後また機会がございましたら、是非エクスショップにご用命ください。またのご利用を、心よりお待ち致しております。
当サイトは以下のセキュリティ機能や保護認定等を備えています。安心してお申し込みください
当サイトは256ビットSSL暗号化に対応しています。入力した個人情報は暗号化して送られますので、安心してご利用ください。
当社はJADMAの正会員です。同協会は法律で位置づけられた団体で、消費者の利益保護と業界の健全な発展の為に活動しています。
こちらの工事に使用しているエクステリア
![]()
レストステージ 幕板納まり

工事費・税込
114,300円〜
商品レビュー数
125件
レストステージ 幕板納まりは小口部・側面部が幕板で囲まれた人工木デッキです。芯材部には100%リサイクル素材の木粉と樹脂が使用されており、湿気による腐食やシロアリによる食害に困りません。カラーは他のLIXIL製品との相性が良い3種類のクリエカラーをご用意。
この商品の詳細へ
無料お見積り・現場調査・ご注文もこちら