各取扱メーカーの会社名、ロゴ及び商品名等は各社の商標または登録商標です。
| 日 | 月 | 火 | 水 | 木 | 金 | 土 |
|---|---|---|---|---|---|---|
| 1 | 2 | 3 | 4 | 5 | 6 | |
| 7 | 8 | 9 | 10 | 11 | 12 | 13 |
| 14 | 15 | 16 | 17 | 18 | 19 | 20 |
| 21 | 22 | 23 | 24 | 25 | 26 | 27 |
| 28 | 29 | 30 | 31 |
| 日 | 月 | 火 | 水 | 木 | 金 | 土 |
|---|---|---|---|---|---|---|
| 1 | 2 | 3 | ||||
| 4 | 5 | 6 | 7 | 8 | 9 | 10 |
| 11 | 12 | 13 | 14 | 15 | 16 | 17 |
| 18 | 19 | 20 | 21 | 22 | 23 | 24 |
| 25 | 26 | 27 | 28 | 29 | 30 | 31 |
…休業日(現場調査・工事は一部対応)
![]()
【受付時間】9:30 - 17:30(営業日)
![]()
【受付時間】9:30 - 17:30(営業日)
オペレーションスタッフ
エクステリアプランナー有資格者の私たちにお任せください。
ショップ責任者
神(じん)
エクステリア プランナー
有資格者61名
1/3
1/3
今週のPick Upページ
![]()
ご利用頂いたお客様の口コミ・レビューを「お客様の声」として掲載しております。
全てのご感想を掲載しておりますので、エクスショップの評判としてご参考ください。
正式お見積りと一緒に提出させて頂いております「工事概略図面」もご覧頂けます。
商品や設置場所のご検討にお役立てください。
(写真No:27912325)
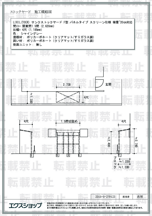
(ストックヤード)
| カラー | シャイングレー |
|---|---|
| サイズ | 間口 2,620mm 出幅 1,185mm |
| 屋根材 | ポリカーボネート(クリアマット/すりガラス調) |
| 工事方法 | メーカー責任施工 |
自転車置き場が欲しかったのですが、設置したい場所が狭く、普通の自転車置き場では設置が難しいため、ストックヤードを検討しました。自転車置き場に比べて割高でしたが、用途の幅が広く、自転車もすっかり納まるので満足してます。現地調査も時間どおりでしたし、対応も悪くなかったです。
この度はサンクストックヤード F型 パネルタイプ スクリーン仕様の施工をご依頼頂き、誠に有り難うございました。敷地にぴったり納まったストックヤードは、透明度の高い屋根材が光を採り込みますので、明るく圧迫感のないお仕上がりでございますね。雨風の吹込みや有害な紫外線を遮る機能的な空間は、駐輪場としてご利用頂く他、様々な用途にご活用頂けるものと存じます。これからもお客様に最大限ご満足頂けるショップを目指して精進して参ります。また機会がございましたら、是非弊社にご用命くださいますよう、宜しくお願い致します。
当サイトは以下のセキュリティ機能や保護認定等を備えています。安心してお申し込みください
当サイトは256ビットSSL暗号化に対応しています。入力した個人情報は暗号化して送られますので、安心してご利用ください。
当社はJADMAの正会員です。同協会は法律で位置づけられた団体で、消費者の利益保護と業界の健全な発展の為に活動しています。
こちらの工事に使用しているエクステリア
![]()
スピーネストックヤードF型 パネルタイプ スクリーン仕様

工事費・税込
163,900円〜
商品レビュー数
53件
物置と違い、勝手口と直接つなげて雨に濡れずに商品を出し入れすることができるスピーネストックヤード。両サイドに壁が無いスクリーンタイプは通気性が良く、洗濯物を干すスペースとしても大活躍!屋根がフラットなので見た目もスッキリ!古新聞やゴミ、タイヤなど収納スペースとしておススメです。
この商品の詳細へ
無料お見積り・現場調査・ご注文もこちら