各取扱メーカーの会社名、ロゴ及び商品名等は各社の商標または登録商標です。
| 日 | 月 | 火 | 水 | 木 | 金 | 土 |
|---|---|---|---|---|---|---|
| 1 | 2 | |||||
| 3 | 4 | 5 | 6 | 7 | 8 | 9 |
| 10 | 11 | 12 | 13 | 14 | 15 | 16 |
| 17 | 18 | 19 | 20 | 21 | 22 | 23 |
| 24 | 25 | 26 | 27 | 28 | 29 | 30 |
| 31 |
| 日 | 月 | 火 | 水 | 木 | 金 | 土 |
|---|---|---|---|---|---|---|
| 1 | 2 | 3 | 4 | 5 | 6 | |
| 7 | 8 | 9 | 10 | 11 | 12 | 13 |
| 14 | 15 | 16 | 17 | 18 | 19 | 20 |
| 21 | 22 | 23 | 24 | 25 | 26 | 27 |
| 28 | 29 | 30 |
…休業日(現場調査・工事は一部対応)
![]()
【受付時間】9:30 - 17:30(営業日)
![]()
【受付時間】9:30 - 17:30(営業日)
オペレーションスタッフ
エクステリアプランナー有資格者の私たちにお任せください。
ショップ責任者
神(じん)
エクステリア プランナー
有資格者61名
1/3
1/3
今週のPick Upページ
![]()
ご利用頂いたお客様の口コミ・レビューを「お客様の声」として掲載しております。
全てのご感想を掲載しておりますので、エクスショップの評判としてご参考ください。
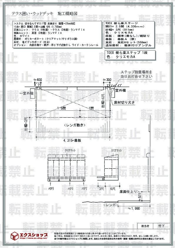
正式お見積りと一緒に提出させて頂いております「工事概略図面」もご覧頂けます。
商品や設置場所のご検討にお役立てください。
(写真No:20598422)
事前の現場確認が大雪の日でしたが入念に確認頂き、満足いくテラス囲いを設置する事が出来ました。
この度は、エクスショップをご利用頂きまして、誠に有り難うございます。お客様のお住まいが、より快適に、より素敵になりましたこと、大変嬉しく存じます。お気に召して頂き、永くご愛用頂けましたら幸いでございます。今後も変わらず、お客様のご満足の為に精進して参りたいと存じますので、また何かございましたら、お気軽にエクスショップまでご連絡ください。
当サイトは以下のセキュリティ機能や保護認定等を備えています。安心してお申し込みください
当サイトはSSL暗号化に対応しています。入力した個人情報は暗号化して送られますので、安心してご利用ください。
当社はJADMAの正会員です。同協会は法律で位置づけられた団体で、消費者の利益保護と業界の健全な発展の為に活動しています。
こちらの工事に使用しているエクステリア
![]()
樹ら楽ステージ

工事費・税込
132,100円~
商品レビュー数
72件
樹ら楽ステージは日光を反射する特殊な顔料を使用した昇温抑制効果のある人工木デッキです。LIXIL社従来商品の類似色比較では最大約10℃まで抑制。また、板厚46mm×175mmの強固な構造で耐久力もあります。滑りによる転倒防止のため、表面はやや粗い仕上がりになっています。
この商品の詳細へ
無料お見積り・現場調査・ご注文もこちら