各取扱メーカーの会社名、ロゴ及び商品名等は各社の商標または登録商標です。
| 日 | 月 | 火 | 水 | 木 | 金 | 土 |
|---|---|---|---|---|---|---|
| 1 | ||||||
| 2 | 3 | 4 | 5 | 6 | 7 | 8 |
| 9 | 10 | 11 | 12 | 13 | 14 | 15 |
| 16 | 17 | 18 | 19 | 20 | 21 | 22 |
| 23 | 24 | 25 | 26 | 27 | 28 | 29 |
| 30 |
| 日 | 月 | 火 | 水 | 木 | 金 | 土 |
|---|---|---|---|---|---|---|
| 1 | 2 | 3 | 4 | 5 | 6 | |
| 7 | 8 | 9 | 10 | 11 | 12 | 13 |
| 14 | 15 | 16 | 17 | 18 | 19 | 20 |
| 21 | 22 | 23 | 24 | 25 | 26 | 27 |
| 28 | 29 | 30 | 31 |
…休業日(現場調査・工事は一部対応)
![]()
【受付時間】9:30 - 17:30(営業日)
![]()
【受付時間】9:30 - 17:30(営業日)
オペレーションスタッフ
エクステリアプランナー有資格者の私たちにお任せください。
ショップ責任者
神(じん)
エクステリア プランナー
有資格者61名
1/3
1/3
今週のPick Upページ
![]()
ご利用頂いたお客様の口コミ・レビューを「お客様の声」として掲載しております。
全てのご感想を掲載しておりますので、エクスショップの評判としてご参考ください。
正式お見積りと一緒に提出させて頂いております「工事概略図面」もご覧頂けます。
商品や設置場所のご検討にお役立てください。
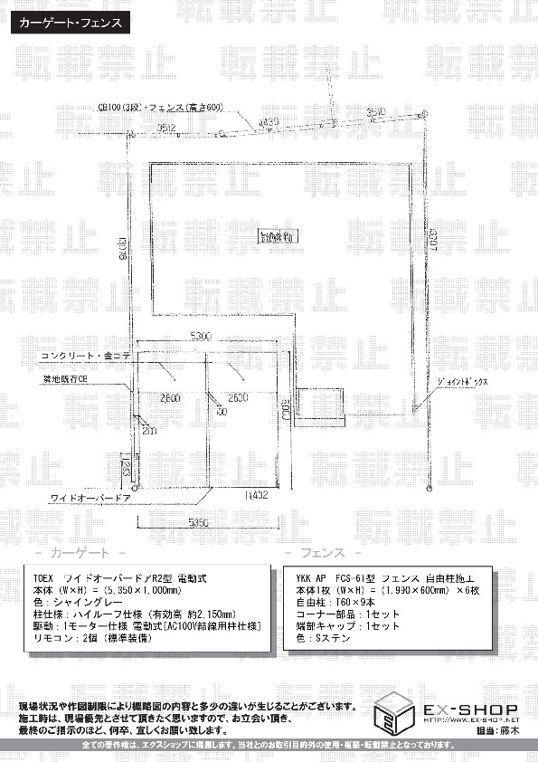
(写真No:3593231)
(フェンス・柵・塀、カーゲート)
| カラー | Sステン |
|---|---|
| サイズ | 幅 1,990mm 高さ 600mm |
| 工事方法 | 地域密着あんしん施工 |
(写真No:3593231)
金額、施工内容には大変満足だが、工事日程の打ち合わせに時間を要したのが残念。こちらからのメールに対するリプライは早かった。
カーゲートとフェンスの施工をご依頼頂きまして、誠に有難うございます。光り輝くワイドオーバードアと、FCS-61型 フェンスのリズム感のある仕上がりが美しいですね。日程調整にお時間を頂いてしまい、申し訳ございませんでした。今後は丁寧に、そして迅速に対応できますよう、スタッフ一同、日々尽力してまいります。この度のご利用、誠に有難うございました。今後また機会がございました際は、ぜひエクスショップにご用命ください。またのご利用をお待ち致しております。
当サイトは以下のセキュリティ機能や保護認定等を備えています。安心してお申し込みください
当サイトは256ビットSSL暗号化に対応しています。入力した個人情報は暗号化して送られますので、安心してご利用ください。
当社はJADMAの正会員です。同協会は法律で位置づけられた団体で、消費者の利益保護と業界の健全な発展の為に活動しています。
こちらの工事に使用しているエクステリア
![]()
イーネットフェンス 3F型

工事費・税込
47,500円〜
商品レビュー数
394件
イーネットフェンス 3F型は施工性に優れたスチール製のメッシュフェンスです。風速40m/s相当の耐風性能(YKKAP社基準)があり、防犯にも効果的です。本体カラーは外観の邪魔にならないプラチナステン、ホワイト、カームブラックの3色からお選びいただけます。
この商品の詳細へ
無料お見積り・現場調査・ご注文もこちら
こちらの工事に使用しているエクステリア
![]()
ワイドオーバードアS2型 電動式

工事費・税込
503,600円〜
商品レビュー数
38件
がオーバードアS2型の特徴。定番人気のオーバードア。開閉の動き出しと停止前のスピードを制御。安全性を考えたスムーズでなめらかな開閉を実現しました!
この商品の詳細へ
無料お見積り・現場調査・ご注文もこちら