各取扱メーカーの会社名、ロゴ及び商品名等は各社の商標または登録商標です。
| 日 | 月 | 火 | 水 | 木 | 金 | 土 |
|---|---|---|---|---|---|---|
| 1 | ||||||
| 2 | 3 | 4 | 5 | 6 | 7 | 8 |
| 9 | 10 | 11 | 12 | 13 | 14 | 15 |
| 16 | 17 | 18 | 19 | 20 | 21 | 22 |
| 23 | 24 | 25 | 26 | 27 | 28 | 29 |
| 30 |
| 日 | 月 | 火 | 水 | 木 | 金 | 土 |
|---|---|---|---|---|---|---|
| 1 | 2 | 3 | 4 | 5 | 6 | |
| 7 | 8 | 9 | 10 | 11 | 12 | 13 |
| 14 | 15 | 16 | 17 | 18 | 19 | 20 |
| 21 | 22 | 23 | 24 | 25 | 26 | 27 |
| 28 | 29 | 30 | 31 |
…休業日(現場調査・工事は一部対応)
![]()
【受付時間】9:30 - 17:30(営業日)
![]()
【受付時間】9:30 - 17:30(営業日)
オペレーションスタッフ
エクステリアプランナー有資格者の私たちにお任せください。
ショップ責任者
神(じん)
エクステリア プランナー
有資格者61名
1/3
1/3
今週のPick Upページ
![]()
ご利用頂いたお客様の口コミ・レビューを「お客様の声」として掲載しております。
全てのご感想を掲載しておりますので、エクスショップの評判としてご参考ください。
正式お見積りと一緒に提出させて頂いております「工事概略図面」もご覧頂けます。
商品や設置場所のご検討にお役立てください。
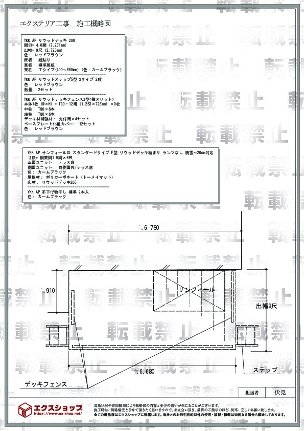
(写真No:19244511)
(テラス囲い・サンルーム、ウッドデッキ)
| サイズ | 間口 2,730mm 奥行 1,770mm |
|---|---|
| カラー | カームブラック |
| 屋根材 | ポリカーボネート(トーメイマット) |
| 工事方法 | 地域密着あんしん施工 |
(写真No:19244511)
(テラス囲い・サンルーム、ウッドデッキ)
| カラー | レッドブラウン |
|---|---|
| サイズ | 間口 7,251mm 出幅 2,720mm |
| 工事方法 | 地域密着あんしん施工 |
見積り変更に何度も対応して頂けて良かった。
この度はリウッドデッキ 200並びにサンフィールVの施工をご依頼頂きまして、誠に有り難うございます。弊社ではネット販売という顔の見えないお取引の中でお客様にご安心頂ける対応に日々努めておりますので、このようなお言葉を頂戴出来ますことを、大変嬉しく存じます。左右にステップが付き、フェンスで囲われた安全性の高いウッドデッキは、とても便利で安全にご利用頂けそうでございますね。さらにそこにテラス囲いがプラスされ、洗濯物干し場としてもご利用頂け、とても機能的で素敵なお仕上がりでございますね。お客様のセンスの光る素敵なお仕上がりにお写真を拝見し惚れ惚れと致しました。この度の施工によりお客様の生活がより良いものとなりますことを、社員一同心より願っております。今後もお客様の笑顔の為日々精進して参りますので、またエクステリアをご検討の際には是非エクスショップをご利用下さいますよう、宜しくお願い致します。
当サイトは以下のセキュリティ機能や保護認定等を備えています。安心してお申し込みください
当サイトは256ビットSSL暗号化に対応しています。入力した個人情報は暗号化して送られますので、安心してご利用ください。
当社はJADMAの正会員です。同協会は法律で位置づけられた団体で、消費者の利益保護と業界の健全な発展の為に活動しています。
こちらの工事に使用しているエクステリア
![]()
ソラリアテラス囲い F型 床納まり

工事費・税込
439,300円〜
商品レビュー数
17件
暮らしの変化に合せて、自由にお使いいただけるテラス囲いです。屋根材・屋根形状・カラーを選んでいただけるので、建物のデザインにも合わせやすくなっております。洗濯物干し・ガーデニングスペース・さらなるリビング空間と多種多様に使用でき、暮らしに彩りを添えてくれるもう一つの快晴空間です。
この商品の詳細へ
無料お見積り・現場調査・ご注文もこちら
こちらの工事に使用しているエクステリア
![]()
リウッドデッキ 200

工事費・税込
78,800円〜
商品レビュー数
6001件
リウッドデッキ 200は木粉とポリプロピレンを混合したリウッド(再生木)でできた人工木デッキです。硬度・耐水性・耐候性・防腐朽性の高さが特徴で、水濡れやシロアリ・菌類による腐食の心配がありません。目地幅は安全性と意匠性を考慮した3mm幅設定。※束石の手配は別途。
この商品の詳細へ
無料お見積り・現場調査・ご注文もこちら