各取扱メーカーの会社名、ロゴ及び商品名等は各社の商標または登録商標です。
| 日 | 月 | 火 | 水 | 木 | 金 | 土 |
|---|---|---|---|---|---|---|
| 1 | ||||||
| 2 | 3 | 4 | 5 | 6 | 7 | 8 |
| 9 | 10 | 11 | 12 | 13 | 14 | 15 |
| 16 | 17 | 18 | 19 | 20 | 21 | 22 |
| 23 | 24 | 25 | 26 | 27 | 28 | 29 |
| 30 |
| 日 | 月 | 火 | 水 | 木 | 金 | 土 |
|---|---|---|---|---|---|---|
| 1 | 2 | 3 | 4 | 5 | 6 | |
| 7 | 8 | 9 | 10 | 11 | 12 | 13 |
| 14 | 15 | 16 | 17 | 18 | 19 | 20 |
| 21 | 22 | 23 | 24 | 25 | 26 | 27 |
| 28 | 29 | 30 | 31 |
…休業日(現場調査・工事は一部対応)
![]()
【受付時間】9:30 - 17:30(営業日)
![]()
【受付時間】9:30 - 17:30(営業日)
オペレーションスタッフ
エクステリアプランナー有資格者の私たちにお任せください。
ショップ責任者
神(じん)
エクステリア プランナー
有資格者61名
1/3
1/3
今週のPick Upページ
![]()
ご利用頂いたお客様の口コミ・レビューを「お客様の声」として掲載しております。
全てのご感想を掲載しておりますので、エクスショップの評判としてご参考ください。
正式お見積りと一緒に提出させて頂いております「工事概略図面」もご覧頂けます。
商品や設置場所のご検討にお役立てください。
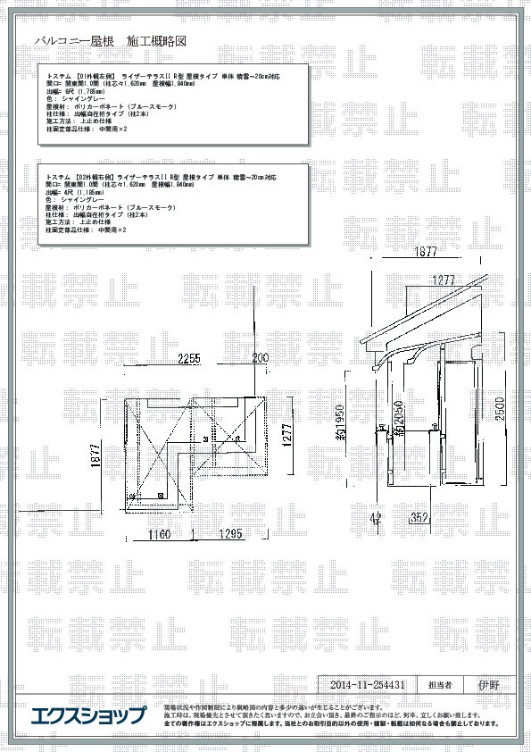
(写真No:25443121)
(バルコニー・ベランダ屋根、ストックヤード)
| カラー | シャイングレー |
|---|---|
| サイズ | 屋根幅 1,840mm 出幅 1,185mm |
| 柱仕様 | 出幅自在桁タイプ(柱2本) |
| 屋根材 | ポリカーボネート(ブルースモーク) |
| 工事方法 | メーカー責任施工 |
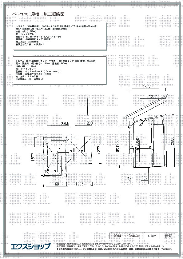
(写真No:25443121)
(バルコニー・ベランダ屋根、ストックヤード)
| カラー | シャイングレー |
|---|---|
| サイズ | 屋根幅 1,840mm 出幅 1,785mm |
| 柱仕様 | 出幅自在桁タイプ(柱2本) |
| 屋根材 | ポリカーボネート(ブルースモーク) |
| 工事方法 | メーカー責任施工 |
(写真No:25443121)
(バルコニー・ベランダ屋根、ストックヤード)
| カラー | シャイングレー |
|---|---|
| サイズ | 間口 6,405mm 出幅 793mm |
| 屋根材 | ポリカーボネート波板(クリアー) |
| 工事方法 | メーカー責任施工 |
安価でできてよかったです。
この度は フリーヤード オープンタイプ及びライザーテラスII R型 屋根タイプの施工をご依頼頂き、誠に有り難うございました。L字型のバルコニーに合わせて設置されたバルコニー屋根が綺麗に納まり、違和感のないお仕上がりでございますね。また、フリーヤードの設置により雨風を完全にシャットアウトできる空間も完成し、より快適にお過ごし頂けるものと存じます。今後も、格安のお値段での最高品質の提供にこだわって参りたいと存じますので、また機会がございましたら是非、弊社にご用命下さいますよう宜しくお願い申し上げます。
当サイトは以下のセキュリティ機能や保護認定等を備えています。安心してお申し込みください
当サイトは256ビットSSL暗号化に対応しています。入力した個人情報は暗号化して送られますので、安心してご利用ください。
当社はJADMAの正会員です。同協会は法律で位置づけられた団体で、消費者の利益保護と業界の健全な発展の為に活動しています。
こちらの工事に使用しているエクステリア
![]()
スピーネ R型 屋根タイプ 単体

工事費・税込
92,200円〜
商品レビュー数
421件
LIXILの新テラス屋根スピーネ。広い地域に対応ができる積雪〜20cmタイプです。雨や雪の入り込みを防ぎ、さらに視線も遮る目隠しスクリーンも取り付けられるテラスです。
この商品の詳細へ
無料お見積り・現場調査・ご注文もこちら
こちらの工事に使用しているエクステリア
![]()
スピーネストックヤードF型 波板タイプ スクリーン仕様

工事費・税込
123,000円〜
商品レビュー数
43件
物置と違い、勝手口と直接つなげて雨に濡れずに商品を出し入れできるスピーネストックヤード。囲い材を波板にして価格を安くしたタイプです。両サイドに壁が無いスクリーンタイプは通気性が良く、洗濯物を干すスペースとしても大活躍!屋根がフラットなので見た目もスッキリ!古新聞やゴミ、タイヤなど収納スペースとしておススメです。
この商品の詳細へ
無料お見積り・現場調査・ご注文もこちら