各取扱メーカーの会社名、ロゴ及び商品名等は各社の商標または登録商標です。
| 日 | 月 | 火 | 水 | 木 | 金 | 土 |
|---|---|---|---|---|---|---|
| 1 | 2 | |||||
| 3 | 4 | 5 | 6 | 7 | 8 | 9 |
| 10 | 11 | 12 | 13 | 14 | 15 | 16 |
| 17 | 18 | 19 | 20 | 21 | 22 | 23 |
| 24 | 25 | 26 | 27 | 28 | 29 | 30 |
| 31 |
| 日 | 月 | 火 | 水 | 木 | 金 | 土 |
|---|---|---|---|---|---|---|
| 1 | 2 | 3 | 4 | 5 | 6 | |
| 7 | 8 | 9 | 10 | 11 | 12 | 13 |
| 14 | 15 | 16 | 17 | 18 | 19 | 20 |
| 21 | 22 | 23 | 24 | 25 | 26 | 27 |
| 28 | 29 | 30 |
…休業日(現場調査・工事は一部対応)
![]()
【受付時間】9:30 - 17:30(営業日)
![]()
【受付時間】9:30 - 17:30(営業日)
オペレーションスタッフ
エクステリアプランナー有資格者の私たちにお任せください。
ショップ責任者
神(じん)
エクステリア プランナー
有資格者61名
1/3
1/3
今週のPick Upページ
![]()
ご利用頂いたお客様の口コミ・レビューを「お客様の声」として掲載しております。
全てのご感想を掲載しておりますので、エクスショップの評判としてご参考ください。
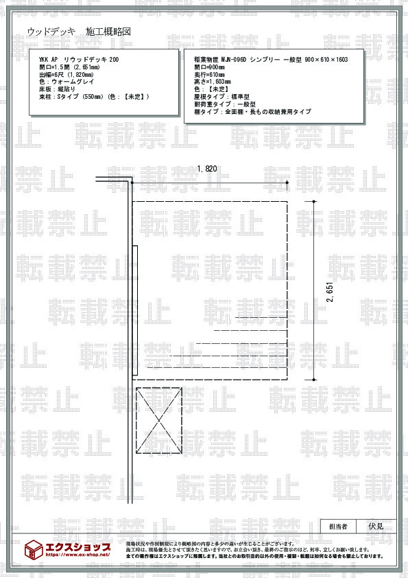
正式お見積りと一緒に提出させて頂いております「工事概略図面」もご覧頂けます。
商品や設置場所のご検討にお役立てください。
(写真No:22384425)
(写真No:22384425)
(物置・収納・屋外倉庫、ウッドデッキ)
| カラー | ウォームグレイ |
|---|---|
| サイズ | 間口 2,651mm 出幅 1,820mm |
| 工事方法 | 地域密着あんしん施工 |
電話対応、現場調査、工事施工ともに誠実な対応をして頂き、イメージ通りの完成で満足しています。
この度は、リウッドデッキ及びシンプリー一般型の施工ご依頼を頂き誠に有り難うございます。施工士も担当スタッフもお客様にご満足頂ける様、日々精進しておりますので、この様なお言葉を頂戴でき大変嬉しく存じます。ウォームグレイのおちついた色味がモダンなご自宅にマッチしており、素敵なお仕上がりでございます。程よい大きさの物置は、活躍する事間違いなしでございますね。今後も、お客様にご満足頂ける様、日々精進して参りますので、又機会がございましたら是非エクスショップをご利用下さいますよう、宜しくお願い致します。
当サイトは以下のセキュリティ機能や保護認定等を備えています。安心してお申し込みください
当サイトはSSL暗号化に対応しています。入力した個人情報は暗号化して送られますので、安心してご利用ください。
当社はJADMAの正会員です。同協会は法律で位置づけられた団体で、消費者の利益保護と業界の健全な発展の為に活動しています。
こちらの工事に使用しているエクステリア
![]()
シンプリー 一般型 900×615×1603

工事費・税込
83,400円~
商品レビュー数
41件
庭先に置くと便利な小型物置シンプリー。耐久性・収納性に優れ、新開発のプッシュロック錠も付いているので防犯性にも優れています。また、便利な吊り下げ穴が付いており使い方次第では様々なものが収納出来ます。 高さも5段階ありお客様のご都合に合わせてお選び頂けます。
この商品の詳細へ
無料お見積り・現場調査・ご注文もこちら
こちらの工事に使用しているエクステリア
![]()
リウッドデッキ S

工事費・税込
69,500円~
商品レビュー数
27件
リウッドデッキ S(旧商品200)は木粉とポリプロピレンを混合したリウッド(再生木)でできた人工木デッキです。硬度・耐水性・耐候性・防腐朽性の高さが特徴で、水濡れやシロアリ・菌類による腐食の心配がありません。目地幅は安全性と意匠性を考慮した3mm幅設定。※束石の手配は別途。
この商品の詳細へ
無料お見積り・現場調査・ご注文もこちら