各取扱メーカーの会社名、ロゴ及び商品名等は各社の商標または登録商標です。
| 日 | 月 | 火 | 水 | 木 | 金 | 土 |
|---|---|---|---|---|---|---|
| 1 | 2 | 3 | ||||
| 4 | 5 | 6 | 7 | 8 | 9 | 10 |
| 11 | 12 | 13 | 14 | 15 | 16 | 17 |
| 18 | 19 | 20 | 21 | 22 | 23 | 24 |
| 25 | 26 | 27 | 28 | 29 | 30 | 31 |
| 日 | 月 | 火 | 水 | 木 | 金 | 土 |
|---|---|---|---|---|---|---|
| 1 | 2 | 3 | 4 | 5 | 6 | 7 |
| 8 | 9 | 10 | 11 | 12 | 13 | 14 |
| 15 | 16 | 17 | 18 | 19 | 20 | 21 |
| 22 | 23 | 24 | 25 | 26 | 27 | 28 |
…休業日(現場調査・工事は一部対応)
![]()
【受付時間】9:30 - 17:30(営業日)
![]()
【受付時間】9:30 - 17:30(営業日)
オペレーションスタッフ
エクステリアプランナー有資格者の私たちにお任せください。
ショップ責任者
神(じん)
エクステリア プランナー
有資格者61名
1/3
1/3
今週のPick Upページ
![]()
ご利用頂いたお客様の口コミ・レビューを「お客様の声」として掲載しております。
全てのご感想を掲載しておりますので、エクスショップの評判としてご参考ください。
正式お見積りと一緒に提出させて頂いております「工事概略図面」もご覧頂けます。
商品や設置場所のご検討にお役立てください。
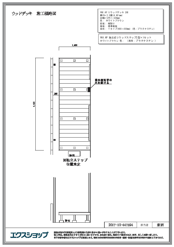
(写真No:44759441)
(写真No:44759441)
(フェンス・柵・塀、ウッドデッキ)
| カラー | ホワイトブラウン |
|---|---|
| サイズ | 間口 4,451mm 出幅 1,520mm |
| 工事方法 | 地域密着あんしん施工 |
地元工務店よりも、見積もり完了するまでスムーズで、値引き価格も高ったところです。担当頂く方方から見積もりや図面の確認を丁寧にして頂き、安心して頼めると思いました。
リウッドデッキ 200とミエーネフェンス 目隠しルーバータイプの施工をご依頼頂きまして、誠に有り難うございます。勝手口とフェンスとの間にお部屋と段差の無いウッドデッキが完成して、敷地を有効にご活用頂けるものと存じます。ルーバータイプのフェンスも綺麗に納まり、外部からの視線が遮られ、快適にお過ごし頂けるものと存じます。今後も、常に、お客様のご希望にかなった完成を目指し努力して参ります。また機会がございましたら、是非エクスショップにご用命頂きますよう、宜しくお願い致します。
当サイトは以下のセキュリティ機能や保護認定等を備えています。安心してお申し込みください
当サイトは256ビットSSL暗号化に対応しています。入力した個人情報は暗号化して送られますので、安心してご利用ください。
当社はJADMAの正会員です。同協会は法律で位置づけられた団体で、消費者の利益保護と業界の健全な発展の為に活動しています。
こちらの工事に使用しているエクステリア
![]()
ミエーネフェンス 目隠しルーバータイプ

工事費・税込
66,800円〜
商品レビュー数
1329件
ミエーネフェンス 目隠しルーバータイプは家の囲いにぴったりなエクスショップオリジナルブランドのアルミフェンスです。目隠し率100%の完全目隠しタイプで、プライバシーをしっかりと確保します。本体カラーは全5色とバリエーション豊富。
この商品の詳細へ
無料お見積り・現場調査・ご注文もこちら
こちらの工事に使用しているエクステリア
![]()
リウッドデッキ S

工事費・税込
69,500円〜
リウッドデッキ S(旧商品200)は木粉とポリプロピレンを混合したリウッド(再生木)でできた人工木デッキです。硬度・耐水性・耐候性・防腐朽性の高さが特徴で、水濡れやシロアリ・菌類による腐食の心配がありません。目地幅は安全性と意匠性を考慮した3mm幅設定。※束石の手配は別途。
この商品の詳細へ
無料お見積り・現場調査・ご注文もこちら