工事情報
| 工事対応エリア |
全国対応 |
|---|
商品について
| 形状 | 単体(柱2本)タイプ |
|---|---|
| 積雪対応 | 〜20cmまで対応 |
| 保証 | 安心ダブル保証 |
| キャンペーン | 対象商品 |
| 土間工事 | 対応 |
キャラメルチーク(木目調)
ステインウォールナット(木目調)
バニラウォールナット(木目調)
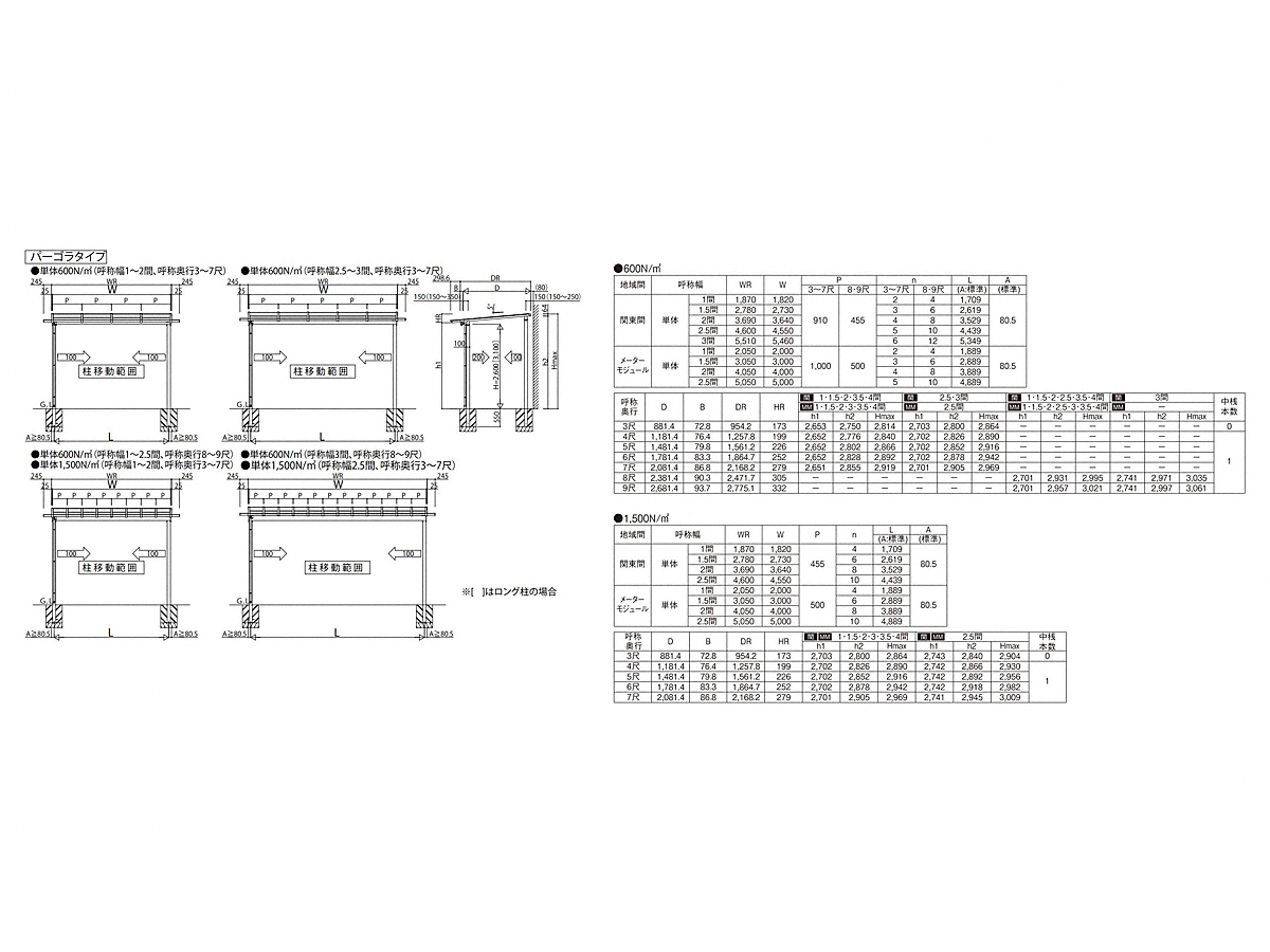
商品規格
| 規格間口 | 1870mm / 2050mm / 2780mm / 3050mm / 3690mm / 4050mm / 4600mm / 5050mm / 5510mm |
|---|---|
| 規格出幅 | 870mm / 1170mm / 1470mm / 1770mm / 2070mm / 2370mm / 2670mm |
| 柱タイプ | 柱奥行移動タイプ(柱4本) |
工事費込み価格
(税込)
円〜
[メーカーカタログ商品価格(税込): 423,720円〜1,379,070円]
総合評価5つ星のうち4.34.3
5つ星のうち3
三重県I.K. 様
2024年4月
かねてから気になっていた周辺の目線カットのためにフェンス工事を決めました。ネットショップということでしたが、商品見本など送っていただくことで、色については理解することが出来ました。実際につけてみると、庭のフェンスは結構、圧迫感もありますが、周辺の目線はカット出来たと思います。樹木の色は映えるようになりました。発注のミスはやはりショックが大きかったですし、春休み中、庭に部材やブルーシートが置かれていたのはストレスでした。施工担当者にサイズ変更が伝わっていなかったのは、やはり問題なので改善してほしいです。
5つ星のうち5
京都府I.T. 様
2023年7月
ウッドデッキとパーゴラ風の屋根ができて一部屋増えた感覚です。季節の良い時期にはバーベキューパーティーが楽しめると思います。
5つ星のうち5
大分県H.R. 様
2022年10月
テラス屋根をつけたことで、強い日差しを防ぐこともでき、雨の日もテラスに出られるようになりました。また、見た目もとても可愛らしく家全体の雰囲気も良くなりました。
日光、雨・風を防ぎバルコニーを快適に
お庭に屋内空間を拡張
セット購入でお値引きお得な価格で快適生活
快適なガレージには必須
お庭に憩いのスペースを作り出します
防犯、お家のドレスアップはこれで決まり
各取扱メーカーの会社名、ロゴ及び商品名等は各社の商標または登録商標です。
| 日 | 月 | 火 | 水 | 木 | 金 | 土 |
|---|---|---|---|---|---|---|
| 1 | 2 | 3 | 4 | 5 | 6 | |
| 7 | 8 | 9 | 10 | 11 | 12 | 13 |
| 14 | 15 | 16 | 17 | 18 | 19 | 20 |
| 21 | 22 | 23 | 24 | 25 | 26 | 27 |
| 28 | 29 | 30 | 31 |
| 日 | 月 | 火 | 水 | 木 | 金 | 土 |
|---|---|---|---|---|---|---|
| 1 | 2 | 3 | ||||
| 4 | 5 | 6 | 7 | 8 | 9 | 10 |
| 11 | 12 | 13 | 14 | 15 | 16 | 17 |
| 18 | 19 | 20 | 21 | 22 | 23 | 24 |
| 25 | 26 | 27 | 28 | 29 | 30 | 31 |
…休業日(現場調査・工事は一部対応)
![]()
【受付時間】9:30 - 17:30(営業日)
![]()
【受付時間】9:30 - 17:30(営業日)
オペレーションスタッフ
エクステリアプランナー有資格者の私たちにお任せください。
ショップ責任者
神(じん)
エクステリア プランナー
有資格者61名
1/3
木附
枡田
重富
吉澤
吉野
小東
池本
山田
佐藤
白崎
新西
伊野
次田
浅川
南
西山
小林
梨田
長谷川
藤田
阿重田
村上
植松
内田
久田
小野
平戸
中島
長石
水口
榮
山崎
清水
室谷
安田
水谷
酒井
神吉
日下部
山中
深田
田中
水田
西田
一氏
岡本
北
坂本
中嶋
岩野
伊藤
上中
高山
竹本
犬井
佐伯
谷川
原
丸山
塚田
松本
上内
島田
森
梅田
松山
山本
小林
倉地
山根
中原
河野
村上
土井
岩破
南
井上
三ツ股
小田
依藤
永禮
林
加藤
石藤
駒井
末吉
山本
芦野
樽井
野上
岡田
木村
池田
西村
藤澤
達川
奥原
那須
小西
森下
1/3
今週のPick Upページ

![]()
サザンテラス (パーゴラ仕様) 独立タイプ 単体
| カラー | |
|---|---|
| サイズ | -/-/- |
| - | - |
| - | - |
| - | - |
この商品のキーワード













