各取扱メーカーの会社名、ロゴ及び商品名等は各社の商標または登録商標です。
| 日 | 月 | 火 | 水 | 木 | 金 | 土 |
|---|---|---|---|---|---|---|
| 1 | 2 | |||||
| 3 | 4 | 5 | 6 | 7 | 8 | 9 |
| 10 | 11 | 12 | 13 | 14 | 15 | 16 |
| 17 | 18 | 19 | 20 | 21 | 22 | 23 |
| 24 | 25 | 26 | 27 | 28 | 29 | 30 |
| 31 |
| 日 | 月 | 火 | 水 | 木 | 金 | 土 |
|---|---|---|---|---|---|---|
| 1 | 2 | 3 | 4 | 5 | 6 | |
| 7 | 8 | 9 | 10 | 11 | 12 | 13 |
| 14 | 15 | 16 | 17 | 18 | 19 | 20 |
| 21 | 22 | 23 | 24 | 25 | 26 | 27 |
| 28 | 29 | 30 |
…休業日(現場調査・工事は一部対応)
![]()
【受付時間】9:30 - 17:30(営業日)
![]()
【受付時間】9:30 - 17:30(営業日)
オペレーションスタッフ
エクステリアプランナー有資格者の私たちにお任せください。
ショップ責任者
神(じん)
エクステリア プランナー
有資格者61名
1/3
1/3
今週のPick Upページ
![]()
ご利用頂いたお客様の口コミ・レビューを「お客様の声」として掲載しております。
全てのご感想を掲載しておりますので、エクスショップの評判としてご参考ください。
正式お見積りと一緒に提出させて頂いております「工事概略図面」もご覧頂けます。
商品や設置場所のご検討にお役立てください。
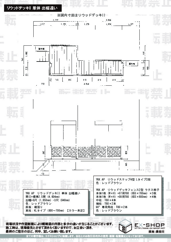
(写真No:6817369)
(ウッドデッキ)
| カラー | レッドブラウン |
|---|---|
| サイズ | 間口 4,604mm 出幅 1,850mm |
| 工事方法 | 地域密着あんしん施工 |
見積もりを依頼した時には具体的な依頼内容が固まっていなかったのですが、家まで来ていただき、アドバイスを頂きながら施工内容を決めていくことができ、とても満足のいく仕上がりになりました。また、色々なわがままにも迅速に対応して頂き、とても好感が持てました。
この度はリウッドデッキIIの施工をご依頼頂きまして、誠に有難うございます。オプションのステップと、ラチス格子のデッキフェンスも綺麗に納まり、高級感のあるお仕上がりでございますね。地域密着あんしん施工ならではの、柔軟なご提案により、お客様のご要望により近い内容で施工することが出来ましたこと、スタッフ一同大変嬉しく存じます。今後益々精進して参りますので、次回エクステリアの施工をご検討の際にも、弊社をご利用頂ければ幸いでございます。この度のご利用、誠に有難うございました。
当サイトは以下のセキュリティ機能や保護認定等を備えています。安心してお申し込みください
当サイトはSSL暗号化に対応しています。入力した個人情報は暗号化して送られますので、安心してご利用ください。
当社はJADMAの正会員です。同協会は法律で位置づけられた団体で、消費者の利益保護と業界の健全な発展の為に活動しています。
こちらの工事に使用しているエクステリア
![]()
リウッドデッキ S

工事費・税込
69,500円~
商品レビュー数
27件
リウッドデッキ S(旧商品200)は木粉とポリプロピレンを混合したリウッド(再生木)でできた人工木デッキです。硬度・耐水性・耐候性・防腐朽性の高さが特徴で、水濡れやシロアリ・菌類による腐食の心配がありません。目地幅は安全性と意匠性を考慮した3mm幅設定。※束石の手配は別途。
この商品の詳細へ
無料お見積り・現場調査・ご注文もこちら