各取扱メーカーの会社名、ロゴ及び商品名等は各社の商標または登録商標です。
| 日 | 月 | 火 | 水 | 木 | 金 | 土 |
|---|---|---|---|---|---|---|
| 1 | 2 | 3 | 4 | |||
| 5 | 6 | 7 | 8 | 9 | 10 | 11 |
| 12 | 13 | 14 | 15 | 16 | 17 | 18 |
| 19 | 20 | 21 | 22 | 23 | 24 | 25 |
| 26 | 27 | 28 | 29 | 30 | 31 |
| 日 | 月 | 火 | 水 | 木 | 金 | 土 |
|---|---|---|---|---|---|---|
| 1 | ||||||
| 2 | 3 | 4 | 5 | 6 | 7 | 8 |
| 9 | 10 | 11 | 12 | 13 | 14 | 15 |
| 16 | 17 | 18 | 19 | 20 | 21 | 22 |
| 23 | 24 | 25 | 26 | 27 | 28 | 29 |
| 30 |
…休業日(現場調査・工事は一部対応)
![]()
【受付時間】9:30 - 17:30(営業日)
![]()
【受付時間】9:30 - 17:30(営業日)
オペレーションスタッフ
エクステリアプランナー有資格者の私たちにお任せください。
ショップ責任者
神(じん)
エクステリア プランナー
有資格者61名
1/3
木附
枡田
重富
吉澤
吉野
小東
池本
山田
佐藤
白崎
新西
伊野
次田
浅川
南
西山
小林
梨田
長谷川
藤田
阿重田
村上
植松
内田
久田
小野
平戸
中島
長石
水口
榮
山崎
清水
室谷
安田
水谷
酒井
神吉
日下部
山中
深田
田中
板持
西田
一氏
水田
岡本
坂本
中嶋
岩野
伊藤
上中
高山
竹本
犬井
佐伯
谷川
原
丸山
北
塚田
松本
島田
森
梅田
松山
山本
小林
倉地
山根
中原
河野
村上
土井
岩破
南
井上
三ツ股
小田
依藤
永禮
林
加藤
石藤
駒井
末吉
山本
芦野
樽井
野上
岡田
木村
池田
西村
藤澤
達川
奥原
那須
上内
森下
小西
1/3
今週のPick Upページ
![]()
ご利用頂いたお客様の口コミ・レビューを「お客様の声」として掲載しております。
全てのご感想を掲載しておりますので、エクスショップの評判としてご参考ください。
正式お見積りと一緒に提出させて頂いております「工事概略図面」もご覧頂けます。
商品や設置場所のご検討にお役立てください。
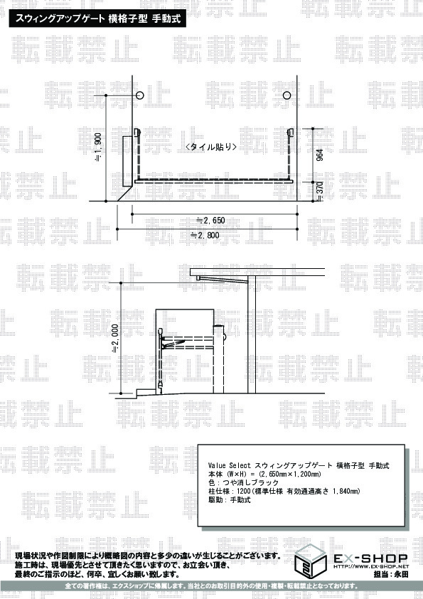
(写真No:8542385)
(カーゲート)
| カラー | つや消しブラック |
|---|---|
| サイズ | 全幅 2,650mm 高さ 1,200mm |
| 柱タイプ | 1200(標準仕様 有効通過高さ 1,840mm) |
| 工事方法 | 地域密着あんしん施工 |
工事の途中、思わぬトラブルもありましたが、直ぐに対処して頂き予定より半日遅れで無事工事完了できました。ただ工事が混み合っていたせいもあるのかなと思いますが、見積りを申し込んでから工事完了まで1か月かかり、急ぎの方やせっかちな方にはどうかと…?商品は非常に軽く扱いやすく質感もあり、とても満足しています。
この度はスウィングアップゲートの施工をご依頼頂き、誠に有難うございました。高級感溢れるご自宅の外観にマッチした、素敵な仕上がりでございますね。施工完了までお待たせしてしまい申し訳ございませんでした。今後、お客様の立場に立ち、迅速な対応が出来ますよう、弊社スタッフ、施工士共にスキルアップに努めて参ります。貴重なご意見有難うございました。また機会がございましたら、エクスショップをご利用頂けますよう、宜しくお願い致します。
当サイトは以下のセキュリティ機能や保護認定等を備えています。安心してお申し込みください
当サイトは256ビットSSL暗号化に対応しています。入力した個人情報は暗号化して送られますので、安心してご利用ください。
当社はJADMAの正会員です。同協会は法律で位置づけられた団体で、消費者の利益保護と業界の健全な発展の為に活動しています。
こちらの工事に使用しているエクステリア
![]()
スウィングアップゲート1型 横パネル 手動式

工事費・税込
182,200円〜
総合平均評価(星5つ評価)
4.69
商品レビュー数
35件
スウィングアップゲート1型 横パネル 手動式はエクスショップオリジナルブランドの手動操作の跳ね上げ式カーゲートです。特殊なバネ技術がスムーズで静かな動きを可能にします。扉のロックは操作性の高いワンタッチ仕様。本体カラーはステンカラー・つや消しブラックの2色展開です。※道路境界・扉本体間は364mm(標準高)、426mm(ハイルーフ)が必要です。
この商品の詳細へ
無料お見積り・現場調査・ご注文もこちら
この商品のレビュー
商品レビュー35件

大阪府 東大阪市 K.A.様
とても軽く開け閉めがらく。 かなり軽量的なので強度が少し心配はある。

神奈川県 横浜市 H.J.様
コストパフォーマンスが良く、大変おすすめの商品です

静岡県 富士宮市 H.H.様
以前設置していた跳ね上げ式ゲートとほとんど同じで、扉との色合いも良かった。少し高さに差が出てしまったので、調整出来ればもっと良かった。

岡山県 岡山市 O.T.様
デザインもスッキリして気に入っている、月に一度も乗らないので手動も苦にならない。毎日乗るとしても上げ下げは軽くて問題はないと思う。

石川県 かほく市 N.H.様
地形の条件から、門扉を下げた時に補助ストッパーが接地しないので、強風や積雪時破損や故障が危惧される。

長野県 千曲市 A.M.様
ゲートの編み目がもう少し細かく目隠しになれば良かった。

埼玉県 所沢市 I.R.様
扉のデザインもスッキリしており満足している。

神奈川県 高座郡寒川町 T.K.様
前の道路が交通量が多いので、孫が飛び出さないようにゲートを付けました。上げ下げもバネで軽いです。

茨城県 守谷市 O.M.様
設置前のは30年以上も利用してゲートが勝手に閉まるなど危ない状態でしたが、接地してもらったものは構造もしっかりしていて安心感があります。下見でいわれていた設置位置の違いも全く問題にはならなかったです。

岡山県 岡山市 F.S.様
商品には概ね満足しております。一つだけ要望を申し上げるならば、ゲートを支える支柱がゲートの幅よりもう少し外側に立っていたらスペースをもっと有効に使えるように思いました。

新潟県 三条市 H.M.様
軽く動かしやすい 下ろすのは私では届かないので、良い方法を考え中

長野県 松本市 H.J.様
従来の跳ね上げゲートより、縦幅が大きく 存在感があり、防犯上最適

岡山県 岡山市 K.H.様
以前のも手動式でしたが今回の方が、軽く使い勝手が良いです。

宮城県 仙台市 O.R.様
安定感があり、開閉も軽く、しっかりした商品でした。家族も使用し、喜んでいます。

大阪府 四條畷市 K.T.様
跳ね上げるのに強い力が要らないので、とても使いやすいと思います。

神奈川県 伊勢原市 O.T.様
安くて非常に使いやすくデザインも申し分ないです。

大分県 大分市 A.M.様
ゲートの色もカーポートや家にも良く合い良かったです。

神奈川県 横須賀市 Y.E.様
我が家の場合2台入庫可能なのでとても良いと思っています。

福岡県 福津市 Y.T.様
開け閉めししやすく て かなりつかいやすいです。外からも ロックしやすくできれば もっとよかったと思います。
関連するお客様の声

5つ星のうち5
神奈川県K.S. 様回答日:2017年5月
実は、予算の影響で伸縮ゲートの取り付けを考えていたのですが、便利さを重視し跳ね上げゲートに決めました。前回のカーポートの施工で、納得の出来る施工をして頂いたので、今回も不安なくお願いした次第です。お陰さまでスムーズで快適な車庫入れが出来る様になりました。ありがとうございました。次回はテラスの施工をお願いしようと考えております。

5つ星のうち5
千葉県M.T. 様回答日:2016年12月
防犯上の観点からもゲートを設置することを考えていました。設置後全体的に見栄えも良くなり防犯に関しても安心感があります。一点気になることはロックシステムが不十分だと思います。侵入者が勝手に解除出来ない様になっていれば良かったかなと感じています。

5つ星のうち5
京都府K.A. 様回答日:2014年2月
比較的、迅速に対応していただき大変、良かったと思っております。色々な方に電話対応していただきましたが、やはり今回の担当である方が一番、適格で確かな対応をしていただき安心感がありました。電話対応の印象は私のように初めて問い合わせするものにとっては非常に重要かと思います。

5つ星のうち5
神奈川県K.T. 様回答日:2012年11月
ネット経由と言う事で、見積もりを取るまでは不安も在りましたが、見積もり、施工して頂いた業者の方もとても親切で丁寧な施工をして頂きとても満足です。又、エクスショップの担当者様とは、直接お会いすることは出来ませんが、会えないからこそ電話、メールのご連絡は多く頂きとてもスムーズにお取引き頂けました。有難うございました。

5つ星のうち4
千葉県S.T. 様回答日:2011年10月
今回はカーゲートとカーポートをお願い致しましたが、本当は他の外構工事もお願いするつもりでおりました。しかし、最初に出てきた図面が私の伝えた要望と全く違ったので、上記のみお願いすることにしました。お願いをした部分につきましては、施工当日に来た職人さんも非常によくしていただき満足しています。

5つ星のうち5
福岡県F.K. 様回答日:2025年4月
庭に侵入する害獣(イノシシ)対策のため、玄関への通路入口にネットを張っていたので見栄えを考え、カーゲートを設置。家の庭のフェンスとマッチして見栄えと開閉がよくなった。ネット注文に不安があったが、メール、電話共に係の対応がすばらしく、問題なく設置完了しました。

5つ星のうち5
熊本県T.I. 様回答日:2024年5月
大事にしているバイクが雨ざらし、また防犯上も心配することが多かったのですが、商品の使用が便利なようにと、時間をしっかりとかけながら説明や意見を取り入れて頂きました。非常に狭小なスペースでしたので、切り詰め作業も大変だったと思います。施工後、雨も沢山降りましたが安心していられます。ありがとうございました。

5つ星のうち5
茨城県A.A. 様回答日:2024年4月
前回はテラスを、お願いしました。とても良く今回マタリピーターさせて頂きましたです防犯対策の為にカーゲート、メッシュフェンスを注文しました。ペットがいる為、ペットガード付きにしました。広々とドックランが完成しました。担当の方が相談し易い方に恵まれ施工も順調に、進みました。ペットが小型なので対策として、ネットを自作して気に入ってます。
関連するブログ記事
関連するよくあるご質問
カーゲートって何ですか?
【商品カテゴリ >カーゲート】(ご質問No.28915)
カーポートとカーゲートの交換をしたいのですが、どのような商品が最適か提案をいただきたく、調査と打合せをお願いいたします。
【商品カテゴリ >カーポート】(ご質問No.2223)
TOSTEM アルピタUR 片開き
カラー:ブロンズ 規格幅:4180 (mm) 規格高:1150 (mm)
形状タイプ:ノンレールタイプ
自家の家の車庫に家族で設置したいのですが、商品のみのご購入が出来ますか??
商品のみの値段が解れば、是非教えて下さい。
【商品カテゴリ >カーゲート】(ご質問No.2235)
カーブポートシグマU ワイド
シャレオRX門扉、カーゲート
カーブポートシグマとどう違うのですか?
それと屋根材ですが、ポリカですりガラス調の色は出来ますか?
熱線吸収アクアシャインポリカの色は?
いま新築中ですが、建築業者との打ち合わせは可能なのですか?
門扉とカーポート、シャレオのカーゲート考えてます。
現場でのアドバイス等もお願い出来るのでしょうか?
【商品カテゴリ >カーポート】(ご質問No.2268)
TOEX ワイドオーバードアR1型 ハイルーフ電動タイプ 5400x1000
キューブポートワイド ハイルーフタイプ 5400x5700
施工日数も教えてください。
【商品カテゴリ >カーゲート】(ご質問No.2269)
カーポートについてお尋ねします。
メーカー TOSTEM 商品名 スクエード DG遮光
スクエード DG採光
千葉県
上記カーポートにオプションがあります。ハイルーフ仕様、サイドパネル、縦連棟施行の意味が分かりません。また跳ね上げ式カーゲートが設置可能でしょうか。宜しくお願いします。
【商品カテゴリ >カーポート】(ご質問No.2323)
神戸市
現在自動カーゲートがついていますが、ゲートの幅を広くしたいと考えています。
一度現地を見てもらい作業できるか確認して欲しいです
【商品カテゴリ >カーゲート】(ご質問No.2375)
新日軽 エクジスフォー30-51-51 3000×10173 ポリカーボネート板 定価568,000円
カーゲート XA型 2872×1250 定価140,200円
MA型 2955×1120 定価85,000円
ポスト OM2型 定価35,000+3,000円
杉並区
商品のみの購入を予定しています。当方の工務店に施行を依頼する予定。
【商品カテゴリ >カーポート】(ご質問No.2455)
バルコニーを2階に新設。
その部分の窓をバルコニーに出入りできるように取り替え。
カーゲート新設。
など、今度中古住宅を購入するのですが実際にどのサイズが適当なのかまた、トータルでいくらになるのか実際に現調時に積算してほしいのですが可能でしょうか?
TOSTEM アルピタUM 片開き
カラー:ブロンズ 規格幅:3020 (mm) 規格高:1050 (mm)
形状タイプ:ノンレールタイプ
TOSTEM アクトステージB型 アクリル透明タイプ
カラー:オータムブラウン 規格幅:3650 (mm) 規格奥行:1485 (mm) 床材:グレイ 柱仕様:柱建て式
【商品カテゴリ >カーゲート】(ご質問No.2490)
施工場所は、埼玉県
三協アルミのスペースマンテン(カーゲート)UC/後づけガイドレールタイプで13S+21Mで親子両開き設置して欲しいのですが、現状、門扉のポールが両サイドに立ち、床面がタイル張りで傾斜が有ります。はつってから、セメントで水平にして頂いて施工して頂くと、どの位になるでしょうか?同じ物でしたら、メーカーは拘りません。
【商品カテゴリ >カーゲート】(ご質問No.2532)


















