各取扱メーカーの会社名、ロゴ及び商品名等は各社の商標または登録商標です。
| 日 | 月 | 火 | 水 | 木 | 金 | 土 |
|---|---|---|---|---|---|---|
| 1 | 2 | |||||
| 3 | 4 | 5 | 6 | 7 | 8 | 9 |
| 10 | 11 | 12 | 13 | 14 | 15 | 16 |
| 17 | 18 | 19 | 20 | 21 | 22 | 23 |
| 24 | 25 | 26 | 27 | 28 | 29 | 30 |
| 31 |
| 日 | 月 | 火 | 水 | 木 | 金 | 土 |
|---|---|---|---|---|---|---|
| 1 | 2 | 3 | 4 | 5 | 6 | |
| 7 | 8 | 9 | 10 | 11 | 12 | 13 |
| 14 | 15 | 16 | 17 | 18 | 19 | 20 |
| 21 | 22 | 23 | 24 | 25 | 26 | 27 |
| 28 | 29 | 30 |
…休業日(現場調査・工事は一部対応)
![]()
【受付時間】9:30 - 17:30(営業日)
![]()
【受付時間】9:30 - 17:30(営業日)
オペレーションスタッフ
エクステリアプランナー有資格者の私たちにお任せください。
ショップ責任者
神(じん)
エクステリア プランナー
有資格者61名
1/3
1/3
今週のPick Upページ
![]()
ご利用頂いたお客様の口コミ・レビューを「お客様の声」として掲載しております。
全てのご感想を掲載しておりますので、エクスショップの評判としてご参考ください。
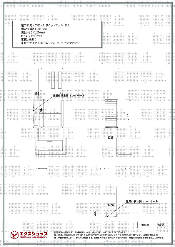
正式お見積りと一緒に提出させて頂いております「工事概略図面」もご覧頂けます。
商品や設置場所のご検討にお役立てください。
(写真No:19820411)
(ウッドデッキ)
| カラー | レッドブラウン |
|---|---|
| サイズ | 間口 2,651mm 出幅 1,220mm |
| 工事方法 | 地域密着あんしん施工 |
依頼メールから、施工完了までの間、連絡もしっかりやっていただきました。施工時も、周囲に気を配っていただくなど、とっても良かったです。また、ウッドデッキ施工2週間前に、物置を頼みましたが、すぐに手配して、同じ日に施工してもらい、本当に助かりました。
この度はリウッドデッキ 200並びにエスモ 一般型の施工をご依頼頂きまして、誠に有り難うございます。ご丁寧にお褒めのお言葉を頂戴致しまして、誠に光栄に存じます。リウッドは木粉とプラスチックを合わせた新素材で、長時間変色しにくい・腐りにくい・水はけがいい・ささくれがないなどの利点のある商品でございます。お気に召して頂き永くご愛用頂けましたら幸いでございます。今後もお客様のご期待を裏切ることの無いよう、なお一層の努力を重ねて参りますので、また機会がございましたらエクスショップをご用命下さいますよう、宜しくお願い致します。
当サイトは以下のセキュリティ機能や保護認定等を備えています。安心してお申し込みください
当サイトはSSL暗号化に対応しています。入力した個人情報は暗号化して送られますので、安心してご利用ください。
当社はJADMAの正会員です。同協会は法律で位置づけられた団体で、消費者の利益保護と業界の健全な発展の為に活動しています。
こちらの工事に使用しているエクステリア
![]()
リウッドデッキ S

工事費・税込
69,500円~
商品レビュー数
27件
リウッドデッキ S(旧商品200)は木粉とポリプロピレンを混合したリウッド(再生木)でできた人工木デッキです。硬度・耐水性・耐候性・防腐朽性の高さが特徴で、水濡れやシロアリ・菌類による腐食の心配がありません。目地幅は安全性と意匠性を考慮した3mm幅設定。※束石の手配は別途。
この商品の詳細へ
無料お見積り・現場調査・ご注文もこちら