快適なガレージには必須
お庭に機能的スペースを作り出します
日光、雨・風を防ぎバルコニーを快適に
ガレージの保全・防犯にカーポートと合わせて
お家の収納能力をアップ
ガレージ商品とコンビで高級感を演出
各取扱メーカーの会社名、ロゴ及び商品名等は各社の商標または登録商標です。
| 日 | 月 | 火 | 水 | 木 | 金 | 土 |
|---|---|---|---|---|---|---|
| 1 | ||||||
| 2 | 3 | 4 | 5 | 6 | 7 | 8 |
| 9 | 10 | 11 | 12 | 13 | 14 | 15 |
| 16 | 17 | 18 | 19 | 20 | 21 | 22 |
| 23 | 24 | 25 | 26 | 27 | 28 | 29 |
| 30 |
| 日 | 月 | 火 | 水 | 木 | 金 | 土 |
|---|---|---|---|---|---|---|
| 1 | 2 | 3 | 4 | 5 | 6 | |
| 7 | 8 | 9 | 10 | 11 | 12 | 13 |
| 14 | 15 | 16 | 17 | 18 | 19 | 20 |
| 21 | 22 | 23 | 24 | 25 | 26 | 27 |
| 28 | 29 | 30 | 31 |
…休業日(現場調査・工事は一部対応)
![]()
【受付時間】9:30 - 17:30(営業日)
![]()
【受付時間】9:30 - 17:30(営業日)
オペレーションスタッフ
エクステリアプランナー有資格者の私たちにお任せください。
ショップ責任者
神(じん)
エクステリア プランナー
有資格者61名
1/3
木附
枡田
重富
吉澤
吉野
小東
池本
山田
佐藤
白崎
新西
伊野
次田
浅川
南
西山
小林
梨田
長谷川
藤田
阿重田
村上
植松
内田
久田
小野
平戸
中島
長石
水口
榮
山崎
清水
室谷
安田
水谷
酒井
神吉
日下部
山中
深田
田中
水田
西田
一氏
岡本
北
坂本
中嶋
岩野
伊藤
上中
高山
竹本
犬井
佐伯
谷川
原
丸山
塚田
松本
上内
島田
森
梅田
松山
山本
小林
倉地
山根
中原
河野
村上
土井
岩破
南
井上
三ツ股
小田
依藤
永禮
林
加藤
石藤
駒井
末吉
山本
芦野
樽井
野上
岡田
木村
池田
西村
藤澤
達川
奥原
那須
小西
森下
1/3
今週のPick Upページ
![]()
ご利用頂いたお客様の口コミ・レビューを「お客様の声」として掲載しております。
全てのご感想を掲載しておりますので、エクスショップの評判としてご参考ください。
正式お見積りと一緒に提出させて頂いております「工事概略図面」もご覧頂けます。
商品や設置場所のご検討にお役立てください。
(写真No:19897411)
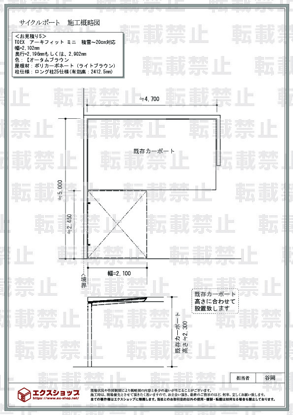
(サイクルポート・自転車置き場)
| カラー | オータムブラウン |
|---|---|
| サイズ | 幅 2,102mm 奥行 2,902mm |
| 屋根高等 | ロング柱25仕様(有効高:2412.5mm) |
| 屋根材等 | ポリカーボネート(ライトブラウン) |
| 工事方法 | 地域密着あんしん施工 |
申し込み後のメールでの迅速な連絡、見積もりから工事までの作業の方の態度、全て不安無く対応していただきました。施工日当日は、女房が立ち会いましたが、私のイメージどおりに完成し、満足しています。ありがとうございました。
この度は、アーキフィット ミニの施工をご依頼頂きまして、誠に有り難うございます。オータムブラウンのフレームに、ポリカーボネート(ライトブラウン)の屋根材が、スタイリッシュで素敵なお仕上がりでございますね。お客様にご満足頂けましたこと、大変嬉しく存じます。これからも、お客様の笑顔の為に、日々努力して参りたいと存じますので、また、機会がございましたら、是非エクスショップをご利用頂けますよう、宜しくお願い致します。
当サイトは以下のセキュリティ機能や保護認定等を備えています。安心してお申し込みください
当サイトは256ビットSSL暗号化に対応しています。入力した個人情報は暗号化して送られますので、安心してご利用ください。
当社はJADMAの正会員です。同協会は法律で位置づけられた団体で、消費者の利益保護と業界の健全な発展の為に活動しています。
こちらの工事に使用しているエクステリア
![]()
ネスカFミニ (フラットスタイル)

工事費・税込
124,400円〜
総合平均評価(星5つ評価)
4.74
商品レビュー数
436件
ネスカFミニ (フラットスタイル)は直線的なフラット屋根が特徴的なサイクルポート・駐輪場です。耐久面では基準風速Vo=36m/sの耐風性能・20cm相当の耐積雪性能を確保しています。収納可能台数は約3〜8台です(自転車の全幅を600mmとする)。
この商品の詳細へ
無料お見積り・現場調査・ご注文もこちら
この商品のレビュー
商品レビュー436件

兵庫県 神戸市 H.N.様
以前は簡易的なサイクルポートを設置していたのですが、しっかりと固定するタイプでは無かったため、強い風の日などは不安でしたし、何より自転車の出し入れがしにくく不便を感じていました。 自動車購入をきっかけにカーポート工事をお願いすることになり、合わせてサイクルポートも工事していただくことにしました。 勝手口が近いので屋根が邪魔にならないかなど不安でしたが、現場調査に来ていただいたときに相談し、向きや高さを決定。イメージ通りの仕上がりになり、自転車の出し入れもスムーズになって満足しています。

熊本県 上益城郡益城町 T.I.様
事前のご案内もありましたが、クリアマットのブルー色が強い気がします。 メーカーさんの問題ですが、クリアであれば、もう少しクリアに近いと良いと思います。 商品自体はデザインが良いと思います。

愛知県 愛西市 Y,A,様
いろいろわがままを言って、提案していただいた商品ですが満足しています。

福岡県 糸島市 K.E.様
スッキリな印象で付けてよかったです。 満足です。

神奈川県 横浜市 H.K.様
スマートな作りで幅が狭いので大丈夫かと思ったが、うまく収まったと思う。

千葉県 船橋市 K.Y.様
この商品はHPで人気となっていましたし、建物のカラーなどにも合って違和感がないので良かったです。

茨城県 牛久市 F.T.様
使用始めてから間も無いですが、自転車が雨風から守られるのは良かったです。

埼玉県 所沢市 T.T.様
車のリアゲート最高到達点よりも高く調整でに満足しています。

東京都 大田区 N.M.様
紫外線を防御してくれるオプションがあるのがいい。ただ雨を防いでくれるだけでなく日差しからも守ってくれるので、バイクのパーツの劣化を防げます。

埼玉県 蕨市 T.T.様
しっかり施工してもらい、見た目と機能にも満足している。

千葉県 野田市 F.M.様
ご近所のサイクルポートより立派で頑丈な風合いが気に入ってます。

東京都 杉並区 Y.T.様
とてもスタイリッシュで、外観とも合っています。

京都府 京都市 O.H.様
今後に車を停める事や家の窓位置の上辺りにしたかったので、高さ250にしました。

東京都 国分寺市 N.Y.様
フラット屋根でスタイリッシュで気に入っている。

東京都 中野区 I.K.様
現時点では、事前の予想通りの出来栄えで満足しています。

神奈川県 横浜市 K.A.様
まだ 取り付け後日が浅いので わかりませんが、これから梅雨に入っていけば、効果を実感出来ればと期待しています。
関連するお客様の声

5つ星のうち5
岡山県M.S. 様回答日:2012年11月
電話とメールの対応で安心してお願いすることができました。施工日もこちらの都合に合わせていただき助かりました。工事も取り付けのみで半日程ででき施工業者の方も希望の位置と屋根の高さにしてくださりイメージどおりのものができ満足しています。

5つ星のうち4
福岡県A.K. 様回答日:2011年7月
商品もイメージどおりで、施工もきちんとしていただき、満足しております。金額が安かったのも大変ありがたかったです。また、機会がありましたら、利用させていただきたいと思います。

5つ星のうち5
大阪府I.M. 様回答日:2013年5月
迅速な対応に、感謝しております。親切な方に作業して頂き、とても、うれしく思いました。ありがとうございました。

5つ星のうち5
栃木県K.T. 様回答日:2024年7月
今までマンションタイプの賃貸にしか住んだことがなかった為、サイクルポートや物置の必要性を感じたことがなかったのですが、雨に濡れていない自転車や物が散乱していない庭は気持ちがいいです。ウッドデッキはそこまで広くないのですが、庭仕事と部屋の同線が良くなり大変満足しています。

5つ星のうち5
熊本県T.I. 様回答日:2024年5月
大事にしているバイクが雨ざらし、また防犯上も心配することが多かったのですが、商品の使用が便利なようにと、時間をしっかりとかけながら説明や意見を取り入れて頂きました。非常に狭小なスペースでしたので、切り詰め作業も大変だったと思います。施工後、雨も沢山降りましたが安心していられます。ありがとうございました。

5つ星のうち5
千葉県K.Y. 様回答日:2024年4月
住み始めた4年前からサイクルポートを設置したかったのですが、きっと高額になるだろう、業者さんとのやりとりが面倒かも..と思いきれませんでしたが、今回子供達の自転車を新しくするので雨ざらしは..と思って購入しました。設置後、自然と自転車の置き方がきれいになったのと雨に濡れづらくなり快適です。

5つ星のうち5
東京都N.M. 様回答日:2024年3月
バイクの購入がきっかけです。ハーレーを野ざらしにしたくなかったので、サイクルポートをつけました。サイクルポートといってもエクステンドしてもらいほとんどカーポートと言っても遜色ないエリアをカバーしています。戸建てについている駐車場の前エリアが雨を防いでくれるようになりました。

5つ星のうち5
東京都Y.M. 様回答日:2023年3月
サイクルポートは従業員の自転車を置く目的と材料を置くスペースにもなるので設置しました。雨が降っても雨ざらしにならないので良かったです。ゲートは事務所が奥まった場所にあるため、無人の際の防犯目的で設置しました。やはりゲートがあると無いとでは安心感が違います。

5つ星のうち5
兵庫県Y.A. 様回答日:2024年11月
お隣が畑で大きい柿の木もあり、夏の終わりには蚊が多かったため、高めのフェンスを設置することにしました。工事もきちんと説明しながら進めて下さり、サイクルポートもフェンスも完璧な仕上がりで特にお値段が大満足でした!ありがとうございました!また何かありましたら利用させて頂きます。

5つ星のうち5
栃木県K.T. 様回答日:2024年7月
今までマンションタイプの賃貸にしか住んだことがなかった為、サイクルポートや物置の必要性を感じたことがなかったのですが、雨に濡れていない自転車や物が散乱していない庭は気持ちがいいです。ウッドデッキはそこまで広くないのですが、庭仕事と部屋の同線が良くなり大変満足しています。
関連するブログ記事










関連するよくあるご質問
サイクルポートって何ですか?
【商品カテゴリ >サイクルポート・自転車置き場】(ご質問No.28914)
リレーリアにて、門柱+サイクルポートのようなものの取り扱いはありますか?
【商品カテゴリ >サイクルポート・自転車置き場】(ご質問No.214)
サイクルポートに目安で自転車何台くらいとめられますか?
【商品カテゴリ >サイクルポート・自転車置き場】(ご質問No.720)
サイクルポートと一緒に土間コンクリートを打設できますか?
【商品カテゴリ >サイクルポート・自転車置き場】(ご質問No.721)
スクリーンの取付けについて、「前面のみ」や「側面のみ」の取付けはできますか?
【商品カテゴリ >サイクルポート・自転車置き場】(ご質問No.722)
前の大雪で当社の自転車置き場がつぶれました。
つきましては新しく作成を考えていますので、一度見に来ていただいて見積もりを作成していただければ幸いです。 よろしく願います。
【商品カテゴリ >サイクルポート・自転車置き場】(ご質問No.961)
自宅の駐車場に屋根を付けたい。
【商品カテゴリ >サイクルポート・自転車置き場】(ご質問No.1009)
プレシオスポートミニを検討しています。
柱の高さを短くして使用したいのですが、工事ではなく物販のみの対応はしていただけるのでしょうか?
対応していただける場合の納期と商品の入荷方法(輸送時チャーター便?それとも宅配便?)
など教えていただければ幸いです。
よろしくお願いいたします。
【商品カテゴリ >サイクルポート・自転車置き場】(ご質問No.1100)
タカショーのサイクルポート「アートポートミニ」(21-21、標準柱熱線カット屋根)の設置を考えているのですが、見積もりをお願いできますか?
【商品カテゴリ >サイクルポート・自転車置き場】(ご質問No.1140)
お世話になります。
自宅に設置する駐輪場部材の購入を検討していますが、
三協アルミ カムフィNex R 延長 幅1792mm × 奥行3621mm 標準柱 を購入した場合の納品時期について教えてください。
【商品カテゴリ >サイクルポート・自転車置き場】(ご質問No.1198)


















