各取扱メーカーの会社名、ロゴ及び商品名等は各社の商標または登録商標です。
| 日 | 月 | 火 | 水 | 木 | 金 | 土 |
|---|---|---|---|---|---|---|
| 1 | ||||||
| 2 | 3 | 4 | 5 | 6 | 7 | 8 |
| 9 | 10 | 11 | 12 | 13 | 14 | 15 |
| 16 | 17 | 18 | 19 | 20 | 21 | 22 |
| 23 | 24 | 25 | 26 | 27 | 28 | 29 |
| 30 |
| 日 | 月 | 火 | 水 | 木 | 金 | 土 |
|---|---|---|---|---|---|---|
| 1 | 2 | 3 | 4 | 5 | 6 | |
| 7 | 8 | 9 | 10 | 11 | 12 | 13 |
| 14 | 15 | 16 | 17 | 18 | 19 | 20 |
| 21 | 22 | 23 | 24 | 25 | 26 | 27 |
| 28 | 29 | 30 | 31 |
…休業日(現場調査・工事は一部対応)
![]()
【受付時間】9:30 - 17:30(営業日)
![]()
【受付時間】9:30 - 17:30(営業日)
オペレーションスタッフ
エクステリアプランナー有資格者の私たちにお任せください。
ショップ責任者
神(じん)
エクステリア プランナー
有資格者61名
1/3
1/3
今週のPick Upページ
![]()
ご利用頂いたお客様の口コミ・レビューを「お客様の声」として掲載しております。
全てのご感想を掲載しておりますので、エクスショップの評判としてご参考ください。
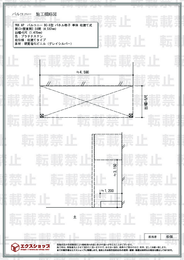
正式お見積りと一緒に提出させて頂いております「工事概略図面」もご覧頂けます。
商品や設置場所のご検討にお役立てください。
(写真No:21993024)
(バルコニー・ベランダ)
| カラー | プラチナステン |
|---|---|
| サイズ | 間口 4,567mm 出幅 1,470mm |
| 柱高 | 柱建てタイプ |
| 工事方法 | 地域密着あんしん施工 |
作業日の決定まで及び作業当日の作業の進め方も気持ち良いほどスピーディーだった。
スタッフの対応、施工内容にご満足のお声を頂き、誠に有り難うございます。上品なプラチナステンのバルコニーが綺麗に納まり、スタイリッシュなお仕上がりでございますね。耐候性に優れた樹脂製デッキ材を使用しておりますので、安心して、永く、ご愛用頂けるものと存じます。これからも、快適なお住まいづくりのパートナーとして、エクスショップをご利用して頂きますよう、宜しくお願い致します。またのご利用を、心よりお待ち申し上げております。
当サイトは以下のセキュリティ機能や保護認定等を備えています。安心してお申し込みください
当サイトは256ビットSSL暗号化に対応しています。入力した個人情報は暗号化して送られますので、安心してご利用ください。
当社はJADMAの正会員です。同協会は法律で位置づけられた団体で、消費者の利益保護と業界の健全な発展の為に活動しています。
こちらの工事に使用しているエクステリア
![]()
ルシアスバルコニー 柱建式 ポリカパネル 単体

工事費・税込
211,700円〜
デザインはもちろん、その機能性にも注目の「ルシアスバルコニー」。家に合わせたコーディネートができるようにデザインしているので、物件に合わせた商品を選ぶことができます。洗濯物干し場から、リラックススペースまで、あなたに合わせたバルコニーをお楽しみください。
この商品の詳細へ
無料お見積り・現場調査・ご注文もこちら